Poznań, Grunwald, Ławica, ul. H Modrzejewskiej
Poznań, Grunwald, Ławica, ul. H Modrzejewskiej
:format(jpg)/offers/offer/15317/main_image/sceneria_70de2a.jpg)
:format(jpg)/offers/offer/15317/main_image/sceneria_70de2a.jpg)
1 zdjęcie
Termin oddania
Gotowe
Powierzchnie
157 - 173/m2
Przedział pokoi
5
Kondygnacje
2
Budynki
4
Stand. wykończenia
Standard deweloperski podwyższony
Domy w inwestycji (4)
od 11 750 zł/m2
Przystanek Tramwajowy - 2050 m
Przystanek Autobusowy - 547 m
Dojazd do centrum: pokaż
W pobliżu 1 km od tej inwestycji znajdują się:
7 kawiarni i restauracji, 12 sklepów, 11 obiektów sportowych, 22 placówki medyczne, 6 placówek edukacyjnych, 5 placów zabaw
Postępy i zdjęcia z budowy
Zobacz na jakim etapie budowy jest ta inwestycja
Udogodnienia Inwestycji
Standard i bezpieczeństwo
- Standard deweloperski podwyższony
Przyroda w okolicy
- las
Szczegóły inwestycji
Realizacja inwestycji:
Liczba domów:
Liczba kondygnacji:
Wysokość pomieszczeń:
Standard wykończenia
standard deweloperski podwyższony
Rodzaj własności:
Garaże:
- miejsca postojowe naziemne
Przyroda:
Aktualna oferta
Dostępne domy:
Powierzchnie domów:
Ceny domów:
- kształtują się w zakresie od 1 843 105 do 2 035 218 zł
- koszt metra kwadratowego wynosi 11 750 zł/m².
Opis płatności:
Warunki rezerwacji:
Zabezpieczenie środków klienta:
Wysokość czynszu:
Opis inwestycji
Premiera nowych domów na os. Bajkowym w zabudowie szeregowej!
Zapoznaj się z projektem domów w kameralnej inwestycji Sceneria, która powstanie przy ul. H. Modrzejewskiej w Poznaniu w otulinie Lasku Marcelińskiego.
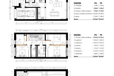
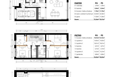
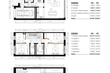
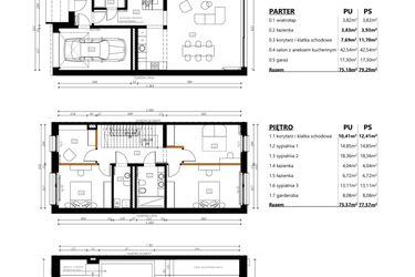
W I etapie proponujemy:
- 4 budynki, 8 lokali
- budynki są dwulokalowe w zabudowie szeregowej
- powierzchnia lokali od 157 m2 do 177 m2
- każdy lokal posiada garaż, dodatkowe miejsce postojowe przed budynkiem oraz taras na dachu
- do każdego domu przynależy ogród od 98 m2 do 295 m2
- całości dopełnia kilkudziesięciometrowy taras na dachu
Cena: 11 750 zł brutto/m2
Oferta bezpośrednio od Dewelopera, bez podatku PCC!
Cena obejmuje wysoki standard deweloperski m.in. z roletami zewnętrznymi, ogrzewaniem podłogowym w łazienkach czy klimatyzacją.
Termin realizacji: III kwartał 2025 roku
Już dziś umów się na spotkanie na terenie inwestycji Sceneria.
Zapraszamy do kontaktu z Biurem Sprzedaży
Inwestycja Sceneria znajduje się na Ławicy, ul. H Modrzejewskiej (6.1 km od centrum Poznania), została zrealizowana przez WFH S Sp. z o.o.
Inwestycja Sceneria została wybudowana i oddana do użytkowania w 3 kw. 2025 roku.
Cały projekt składa się z 8 nowych domów.
Aktualnie w inwestycji Sceneria w sprzedaży są 4 nowe domy o powierzchni od 157 do 173 metrów kwadratowych , w cenie od 1 843 105 zł.
Dla przyszłych mieszkańców Sceneria deweloper przewidział:
- miejsca postojowe naziemne
Lokalizacja inwestycji
Lokalizacja:
Na duża uwagę zasługuje świetna lokalizacja. Do Twojej dyspozycji w najbliższym sąsiedztwie jest szereg punktów-handlowo usługowych. Szybko dojedziesz także do centrum załatwić najważniejsze sprawy i równie szybko wrócisz, by cieszyć się życiem z dala od miejskiego zgiełku. Bezpośrednie sąsiedztwo Lasku Marcelińskiego pozwoli dostrzec Ci piękno natury o każdej porze roku.
- Gabinety lekarskie 500 m
- Sklepy spożywcze 1000 m
- Restauracja- 1200 m
- Przedszkola- 800m/1300 m
- Szkoła podstawowa- 1700 m
- Przystanek autobusowy- 850 m
- Galeria handlowa- 2,8 km
- Centrum- 15 min
- Lasek Marceliński- 50 m.
Grunwald to leżąca na zachodzie miasta dzielnica Poznania o powierzchni 36 km kw i populacji 125 tys. mieszkańców. Dzielnica zamyka się w ulicach Skórzewskiej, Bukowskiej, Kolejowej i Leszczyńskiej. Dzielnicę z południowego zachodu na północy wschód przedziela ul. Głogowska, za miastem przechodząca w drogę krajową E261. Na terenie Grunwaldu krzyżuje się z nią droga europejska E30. Dzielnica ma własną szkołę wyższą – to Wyższa Szkoła Bezpieczeństwa. Jest stąd również blisko do Portu Lotniczego Poznań-Ławica, który zaczyna się tuż za północną granicą. Dzielnica ma też dobry dostęp do opieki zdrowotnej dzięki dwóm szpitalom klinicznym, prywatnej lecznicy (Certus), 60 aptekom, 15 przychodniom i gabinetom lekarskim. Fani sportu docenią Arenę Poznań i stadion INEA a także Lasek Marceliński, idealny do uprawiania joggingu czy nordic walkingu. Na terenie dzielnicy są też dwa kina.
Komunikacja
Jak wygląda komunikacja w okolicy inwestycji Sceneria?
Na terenie Grunwaldu krzyżują się ze sobą droga krajowa E261 i droga europejska E30. W odległości ok. 50 m na północ zaczyna się Port Lotniczy Poznań-Ławica. Dodając do tego liczne tramwaje i autobusy kursujące po dzielnicy Grunwald, otrzymujemy świetnie skomunikowane nie tylko z pozostałymi dzielnicami miasta miejsce.
Przyszli mieszkańcy inwestycji Sceneria mogą korzystać z rozbudowanej sieci połączeń komunikacyjnych. W odległości 500 metrów od inwestycji Sceneria znajduje się najbliższy punkt komunikacyjny - Wieczorynki n/ż.
Edukacja
Czy w pobliżu inwestycji Sceneria znajdują się szkoły/przedszkola?
Mieszkańcy mogą korzystać z bogatej oferty edukacyjnej. W najbliższej okolicy inwestycji Sceneria znajduje się 6 placówek edukacyjnych. Najbliżej położone to: Przedszkole Sióstr Nazaretanek im. Najświętszej Rodziny w odległości 700 m.
Opieka medyczna
Dużym atutem inwestycji Sceneria jest bliskość ośrodków zdrowotnych. Dostęp do opieki medycznej zapewnią położone w pobliżu: Laser Dent: stomatologia w odległości 300 m.
Sklepy i usługi
Jak daleko jest do najbliższego sklepu?
Na infrastrukturę handlowo-usługową inwestycji Sceneria składa się wiele punktów. Nieopodal, w odległości 300 m znajduje się AB Mięso Wędliny, w odległości 600 m znajduje się Żabka.
Sport
Bliskość terenów rekreacyjnych oraz obiektów sportowych to mocna strona tej lokalizacji. W najbliższej okolicy inwestycji Sceneria w odległości 500 m znajduje się boisko / kort.
Adres biura sprzedaży:
ul. G. Potworowskiego 11, 60-212 PoznańGodziny otwarcia biura sprzedaży:
- Poniedziałek: 08:00 - 16:00
- Wtorek: 08:00 - 16:00
- Środa: 08:00 - 16:00
- Czwartek: 08:00 - 16:00
- Piątek: 08:00 - 16:00
WFH S Spółka z ograniczoną odpowiedzialnością





