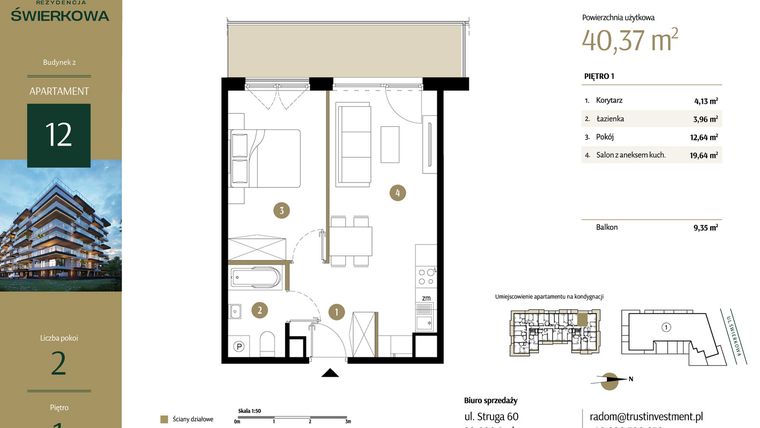
Mieszkanie na sprzedaż 2 pokoje o powierzchni 40,37 m² numer M.12
Inwestycja:
Rezydencja Świerkowa - etap IIDeweloper:
Trust Investment
Inwestycja:
Rezydencja Świerkowa - etap IIDeweloper:
Trust InvestmentRadom, Świerkowa 47
Radom, Świerkowa 47
Termin oddania
1 kw. 2028
Ilość pokoi
2 pokoje
Metraż
40,37 m²
Piętro
1 piętro
Strona świata
zachód
Powierzchnie dodatkowe
Balkon
Wysokość pomieszczeń
od 260 do 280 cm wysokości
Ilość poziomów
1 poziom
Oznaczenie oferty
M.12

Raport o deweloperze
Poznaj dewelopera bliżej! Pobierz raport, w którym znajdziesz kluczowe informacje o firmie, jej doświadczeniu, nagrodach oraz aktualnych i zrealizowanych inwestycjach.
Budynek i otoczenie
Miejsca postojowe | |
|---|---|
Komórki lokatorskie | dostępne (85) |
Standard wykończenia | standard deweloperski |
Realizacja inwestycji | rozpoczęcie budowy w 4 kw. 2025 roku, planowane oddanie do użytkowania w 1 kw. 2028 roku |
Udogodnienia | informacja u dewelopera |
Przyroda | informacja u dewelopera |
Charakterystyka energetyczna nieruchomości | informacja u dewelopera |
Rezerwacja i finanse
Rodzaj własności | Odrębna własność z własnością gruntu |
|---|---|
Wysokość czynszu | informacja u dewelopera |
Warunki rezerwacji | Informacja u dewelopera |
Zabezpieczenie środków | Informacja u dewelopera |
Zdjęcia z budowy
Zobacz na jakim etapie budowy jest ta inwestycja
Lokalizacja inwestycji
Stacja kolejowa - Radom Główny - 1703 m
Przystanek Autobusowy - 291 m
Dojazd do centrum: pokaż
W pobliżu 1 km od tej inwestycji znajdują się:
14 kawiarni i restauracji, 36 sklepów, 19 obiektów sportowych, 6 placówek medycznych, 14 placówek edukacyjnych, 21 placów zabaw
Przeczytaj więcej o lokalizacji
Radom usytuowany jest w centralnej Polsce, na Nizinie Mazowieckiej, nad rzeką Mleczną. Miasto to stanowi ważny ośrodek przemysłowo-usługowy. Zabudowa mieszkaniowa jest zróżnicowana: przeważają osiedla bloków z wielkiej płyty oraz skupiska domów jednorodzinnych. W Śródmieściu znajdują się zabytkowe kamienice oraz reprezentacyjna ulica Żeromskiego, zaś na osiedlach Idalin i Obozisko występują niskie budynki wielorodzinne. Gołębiów I i II oraz Ustronie to tereny industrialne otoczone blokowiskami. Wśród największych zakładów produkcyjnych znajdują się m.in.: Fabryka Broni Łucznik, Polska Grupa Zbrojeniowa S.A., Komandor S.A. czy Polski Tytoń. W mieście zlokalizowanych jest wiele hipermarketów, galerii handlowych i targowisk. Otoczone zielenią przestrzenie rekreacyjne to m.in Zalew Borki oraz liczne parki.
Opis oferty
Nowe 2-pokojowe mieszkanie na sprzedaż o powierzchni 40,37 m² znajduje się w nowo budowanej inwestycji deweloperskiej Rezydencja Świerkowa - etap II w Radomiu (3.1 km od centrum Radomia).
Inwestycja jest realizowana przez Trust Investment.
Cała inwestycja składa się z 1 budynku, w którym łącznie znajduje się 136 nowych mieszkań.
Na sprzedaż pozostaje 101 ofert o powierzchni od 25 do 72 m².
W budynku jest 8 kondygnacji naziemnych oraz 1 kondygnacja podziemna.
Inwestycja Rezydencja Świerkowa - etap II jest w trakcie budowy z planowanym na 1 kw. 2028 roku terminem oddania do użytkowania.
Nowe mieszkanie o oznaczeniu M.12 znajduje się na 1 piętrze i jest 1-poziomowe. Pomieszczenia mają od 260 do 280 centymetrów wysokości. W mieszkaniu znajdują się 2 pokoje.
Do mieszkania przewidziano możliwość zakupu komórki lokatorskiej, którą można zagospodarować na spiżarnię, warsztat czy składzik.
Okna w mieszkaniu wychodzą na zachód.
Zachodnia ekspozycja to gwarancja intensywnego popołudniowego światła, które nadaje wnętrzom przytulności i ciepła. Idealne dla miłośników słonecznych wieczorów, którzy pragną cieszyć się pięknymi zachodami słońca we własnym domu. Zachodnie światło podkreśla kolory i faktury w aranżacji wnętrz, tworząc atmosferę sprzyjającą relaksowi po długim dniu.
Dla przyszłych mieszkańców Rezydencja Świerkowa - etap II deweloper przewidział miejsca postojowe podziemne, miejsca postojowe naziemne.
Dzięki temu przyszli właściciele nie będą musieli poszukiwać wolnej przestrzeni parkingowej. Dodatkowo, miejsce postojowe w garażu podziemnym zabezpiecza przed niekorzystnymi warunkami atmosferycznymi.
Mieszkanie znajduje się w inwestycji Rezydencja Świerkowa - etap II, w której znajduje się w sprzedaży jeszcze 60 podobnych nowych mieszkań.
Trust Investment
Strona internetowa inwestycjiAdres biura sprzedaży:
Struga 60, 26-600 RadomGodziny otwarcia biura sprzedaży:
- Poniedziałek: 10:00 - 18:00
- Wtorek: 10:00 - 18:00
- Środa: 10:00 - 18:00
- Czwartek: 10:00 - 18:00
- Piątek: 10:00 - 18:00





