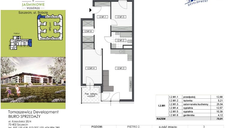
Mieszkanie na sprzedaż 3 pokoje o powierzchni 70,01 m² numer I2M1
Inwestycja:
Jaśminowe Wzgórze - etap IIDeweloper:
Tomaszewicz Development Sp. z o.o.
Inwestycja:
Jaśminowe Wzgórze - etap IIDeweloper:
Tomaszewicz Development Sp. z o.o.Szczecin, Północ, Stołczyn, ul. Bronisława Sobola
Szczecin, Północ, Stołczyn, ul. Bronisława Sobola
Promocje
Nieruchomość bez wkładu własnego
Wybrane mieszkania w tej inwestycji kupisz bez wkładu własnego
Szczegóły dostępne w biurze sprzedaży
Termin oddania
Gotowe
Ilość pokoi
3 pokoje
Metraż
70,01 m²
Piętro
2 piętro
Wysokość pomieszczeń
od 260 do 280 cm wysokości
Ilość poziomów
1 poziom
Oznaczenie oferty
I2M1

Raport o deweloperze
Poznaj dewelopera bliżej! Pobierz raport, w którym znajdziesz kluczowe informacje o firmie, jej doświadczeniu, nagrodach oraz aktualnych i zrealizowanych inwestycjach.
Budynek i otoczenie
Miejsca postojowe | |
|---|---|
Komórki lokatorskie | dostępne |
Standard wykończenia | standard deweloperski |
Realizacja inwestycji | rozpoczęcie budowy w 3 kw. 2021 roku, inwestycja została oddana do użytkowania w 1 kw. 2026 roku |
Udogodnienia | plac zabaw, monitoring, teren ogrodzony, internet, przystosowane dla niepełnosprawnych, TV kablowa, winda, patio / dziedziniec |
Przyroda | w okolicy inwestycji znajduje się park, las, rzeka, rezerwat przyrody |
Charakterystyka energetyczna nieruchomości |
|
Rezerwacja i finanse
Rodzaj własności | Odrębna własność z własnością gruntu |
|---|---|
Wysokość czynszu | informacja u dewelopera |
Warunki rezerwacji | Informacja u dewelopera |
Zabezpieczenie środków | Otwarty mieszkaniowy rachunek powierniczy |
Zdjęcia z budowy
Zobacz na jakim etapie budowy jest ta inwestycja
Lokalizacja inwestycji
Stacja kolejowa - Szczecin Stołczyn - 1829 m
Przystanek Tramwajowy - 1940 m
Przystanek Autobusowy - 223 m
Dojazd do centrum: pokaż
W pobliżu 1 km od tej inwestycji znajdują się:
3 kawiarnie i restauracje, 13 sklepów, 9 obiektów sportowych, 3 placówki medyczne, 6 placówek edukacyjnych, 8 placów zabaw
Przeczytaj więcej o lokalizacji
Jak wskazuje na to sama nazwa, Szczecin-Północ jest dzielnicą położoną w północnej części miasta. Składa się z 7 osiedli, a zamieszkuje ją ok. 53 700 osób. To dzielnica miasta dająca największy dostęp do przyrody, na co wpływ mają głównie rozległe tereny zielone nad Odrą i jeziorem Dąbie. Odległość od centrum jest tu gwarantem spokojnego życia, natomiast dobre połączenia komunikacyjne pozwalają na bezproblemowy dojazd do każdej części Szczecina. Niemniej jednak w okolicy nadodrzańskiej mieści się Skolwiński Park Przemysłowy i działają różnorakie firmy. Zabudowa jest typowa dla terenów podmiejskich z przewagą osiedli domów jedno- i wielorodzinnych, których skupiska znajdujemy w części leżącej na Wzgórzach Warszewskich. Dzielnica ma swoją galerię handlową i dostateczne zaplecze oświatowe oraz medyczne. Znajduje się tu m.in. centrum onkologiczne i 5 przychodni publicznych. W dzielnicy krzyżują się dwie drogi wojewódzkie. Jest tu 6 stacji kolejowych i zajezdnia tramwajowa, a regularne kursy linii autobusowych i tramwajowych zapewniają dobrą komunikację z centrum.
Opis oferty
https://tomaszewicz.pl/dokumenty-inwestycji/
Nowe 3-pokojowe mieszkanie na sprzedaż o powierzchni 70,01 m² znajduje się w nowo budowanej inwestycji deweloperskiej Jaśminowe Wzgórze - etap II na Stołczynie, ul. Bronisława Sobola (7.3 km od centrum Szczecina).
Inwestycja jest realizowana przez Tomaszewicz Development Sp. z o.o.
Cała inwestycja składa się z 1 budynku, w którym łącznie znajduje się 60 nowych mieszkań.
Na sprzedaż pozostaje 37 ofert o powierzchni od 45 do 120 m².
W budynku są 4 kondygnacje naziemne oraz 1 kondygnacja podziemna.
Inwestycja Jaśminowe Wzgórze - etap II została wybudowana i oddana do użytkowania w 1 kw. 2026 roku.
Nowe mieszkanie o oznaczeniu I2M1 znajduje się na 2 piętrze i jest 1-poziomowe. Pomieszczenia mają od 260 do 280 centymetrów wysokości. W mieszkaniu znajdują się 3 pokoje.
Dla przyszłych mieszkańców Jaśminowe Wzgórze - etap II deweloper przewidział miejsca postojowe podziemne, miejsca postojowe naziemne.
Dzięki temu przyszli właściciele nie będą musieli poszukiwać wolnej przestrzeni parkingowej. Dodatkowo, miejsce postojowe w garażu podziemnym zabezpiecza przed niekorzystnymi warunkami atmosferycznymi.
Opis Inwestycji
Okazyjna cena
Osiedle położone jest w prężnie rozwijającej się północnej dzielnicy Szczecina. W najbliższych latach miasto zrealizuje na jej terenie trzeci etap Trasy Północnej w kierunku Polic tj. połączenie jej z Szosą Polską. Łatwo dotrzeć do osiedla komunikacją miejską. Dojeżdżają tu wszystkie autobusy kursujące do Polic. W sąsiedztwie znajdują się przystanki autobusów nr 101 i 107. Samochodem z centrum dojedziemy do domu w 15 minut. W odległości około 1 km znajduje się Folwark Podkowa, gdzie można doświadczyć kontaktu z naturą, a także zobaczyć wiele gatunków rzadko spotykanych zwierząt i ptaków. Na terenie Folwarku znajduje się również stadnina koni, w której prowadzone są lekcje jazdy konnej. Nieco bliżej znajdują się Park leśny Kupały zwany również uroczyskiem oraz zespół przyrodniczo-krajobrazowy Wodozbiór. Są to urokliwe miejsca, idealne na spacery oraz wszelką aktywność na świeżym powietrzu
Mieszkanie znajduje się w inwestycji Jaśminowe Wzgórze - etap II, w której znajduje się w sprzedaży jeszcze 19 podobnych nowych mieszkań.
Tomaszewicz Development Sp. z o.o.
Strona internetowa inwestycjiAdres biura sprzedaży:
ul. Policka 51, 71-837 SzczecinGodziny otwarcia biura sprzedaży:
- Poniedziałek: 08:00 - 17:00
- Wtorek: 08:00 - 17:00
- Środa: 08:00 - 17:00
- Czwartek: 08:00 - 17:00
- Piątek: 08:00 - 17:00





