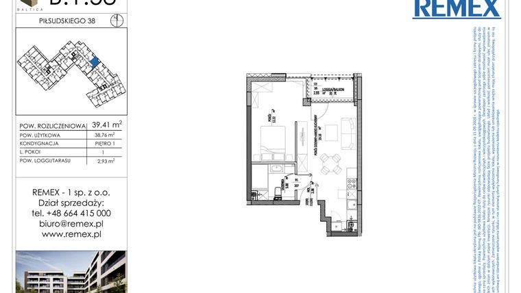
Mieszkanie na sprzedaż 1 pokój o powierzchni 38,76 m² numer B.1.58
Inwestycja:
Osiedle BALTICADeweloper:
Remex
Inwestycja:
Osiedle BALTICADeweloper:
RemexMińsk Mazowiecki, ul. Józefa Piłsudskiego 38
Mińsk Mazowiecki, ul. Józefa Piłsudskiego 38
Termin oddania
2 kw. 2026
Ilość pokoi
1 pokój
Metraż
38,76 m²
Piętro
1 piętro
Powierzchnie dodatkowe
Loggia
Kuchnia
otwarta kuchnia
Wysokość pomieszczeń
od 260 do 280 cm wysokości
Ilość poziomów
1 poziom
Oznaczenie oferty
B.1.58

Raport o deweloperze
Poznaj dewelopera bliżej! Pobierz raport, w którym znajdziesz kluczowe informacje o firmie, jej doświadczeniu, nagrodach oraz aktualnych i zrealizowanych inwestycjach.
Budynek i otoczenie
Miejsca postojowe | |
|---|---|
Komórki lokatorskie | dostępne: wielkość: 1,6 - 10,3 m2 |
Standard wykończenia | standard deweloperski Ogrzewanie miejskie |
Realizacja inwestycji | rozpoczęcie budowy w 2 kw. 2024 roku, planowane oddanie do użytkowania w 2 kw. 2026 roku |
Udogodnienia | monitoring, teren ogrodzony, usługi w budynku, winda, paczkomat |
Przyroda | informacja u dewelopera |
Charakterystyka energetyczna nieruchomości |
|
Rezerwacja i finanse
Rodzaj własności | Odrębna własność z własnością gruntu |
|---|---|
Wysokość czynszu | informacja u dewelopera |
Warunki rezerwacji | Informacja u dewelopera |
Zabezpieczenie środków | Otwarty mieszkaniowy rachunek powierniczy |
Zdjęcia z budowy
Zobacz na jakim etapie budowy jest ta inwestycja
Lokalizacja inwestycji
Stacja kolejowa - Mińsk Mazowiecki - 561 m
Przystanek Autobusowy - 119 m
Dojazd do centrum: pokaż
W pobliżu 1 km od tej inwestycji znajdują się:
26 kawiarni i restauracji, 43 sklepy, 22 obiekty sportowe, 10 placówek medycznych, 28 placówek edukacyjnych, 13 placów zabaw
Przeczytaj więcej o lokalizacji
Mińsk Mazowiecki to miasto we wschodniej części województwa mazowieckiego, położone w odległości 38 km od centrum Warszawy. Na obszarze o powierzchni ok. 13 km2 zamieszkuje prawie 40 tys. mieszkańców. W mieście dominuje niska zabudowa handlowo-usługowa i mieszkaniowa, na którą składają się bloki o 2 lub 4 kondygnacjach i domy jednorodzinne. Występuje tutaj zarówno dawne drewniane budownictwo, jak i socrealistyczne czy nowoczesne obiekty. Zabytkami są stylowe wille, kamienice i pałace, np. Pałac Dernałowiczów i Pałac Łubieńskich. W części południowej znajdują się zakłady przemysłowe, m.in. Fabryka Urządzeń Dźwigowych, Harper Hygienics i zakłady obuwia Bartek. Zieleń miejska to skwery i tereny leśno-parkowe, jak Park Dernałowiczów czy Leśnictwo Stankowizna, a także łąki i lasy należące do Mińskiego Obszaru Chronionego Krajobrazu.
Opis oferty
Nowe 1-pokojowe mieszkanie na sprzedaż o powierzchni 38,76 m² znajduje się w nowo budowanej inwestycji deweloperskiej Osiedle BALTICA w Mińsku Mazowieckim, ul. Józefa Piłsudskiego 38
Inwestycja jest realizowana przez Remex.
Cała inwestycja składa się z 1 budynku, w którym łącznie znajduje się 151 nowych mieszkań.
Na sprzedaż pozostają 64 oferty o powierzchni od 27 do 92 m².
W budynku jest 5 kondygnacji naziemnych oraz 1 kondygnacja podziemna.
Inwestycja Osiedle BALTICA jest w trakcie budowy z planowanym na 2 kw. 2026 roku terminem oddania do użytkowania.
Nowe mieszkanie o oznaczeniu B.1.58 znajduje się na 1 piętrze i jest 1-poziomowe. Pomieszczenia mają od 260 do 280 centymetrów wysokości. W mieszkaniu znajduje się 1 pokój.
Dla przyszłych mieszkańców Osiedle BALTICA deweloper przewidział miejsca postojowe podziemne.
Dzięki temu przyszli właściciele nie będą musieli poszukiwać wolnej przestrzeni parkingowej. Dodatkowo, miejsce postojowe w garażu podziemnym zabezpiecza przed niekorzystnymi warunkami atmosferycznymi.
Opis Inwestycji
Tereny zielone
Pow. dodatkowe
Inwestycja zlokalizowana w centrum Mińska Mazowieckiego przy ul. Piłsudskiego 38 z przyjazną przestrzenią miejską z licznymi lokalami usługowymi. Bliskość przedszkoli, szkół i punktów handlowych ułatwia codzienne obowiązki. Bardzo dobra komunikacja umożliwia sprawny kontakt z aglomeracją warszawską.
Budynek i mieszkania
Budynek zaprojektowany z dbałością o wygodę mieszkańców, przy użyciu materiałów wysokiej klasy. W ramach przedsięwzięcia powstanie łącznie 151 mieszkań w 4 piętrowych klatkach w każdej winda. Dla bezpieczeństwa mieszkańców teren osiedla będzie ogrodzony i monitorowany.
Na terenie osiedla planowane jest zamontowanie przesyłkomatów.
Mieszkania zostały zaprojektowane w sposób pozwalający na dość dużą dowolność aranżacji. Dodatkowo Inwestor zapewnił komórki lokatorskie i garaż podziemny. Większe mieszkania wyposażono w łazienki i WC, dla codziennego komfortu członków rodzinny.
Mieszkanie znajduje się w inwestycji Osiedle BALTICA, w której znajduje się w sprzedaży jeszcze 37 podobnych nowych mieszkań.
Remex
Adres biura sprzedaży:
ul. Grobelnego 2, 05-300 Mińsk MazowieckiGodziny otwarcia biura sprzedaży:
- Poniedziałek: 07:30 - 15:30
- Wtorek: 07:30 - 15:30
- Środa: 07:30 - 15:30
- Czwartek: 07:30 - 15:30
- Piątek: 07:30 - 15:30





