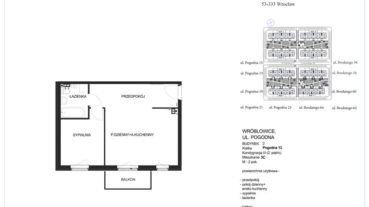
Mieszkanie na sprzedaż 2 pokoje o powierzchni 47,79 m² numer 2C - 3C
Inwestycja:
Zielona LutyniaDeweloper:
Platforma Mieszkaniowa
Inwestycja:
Zielona LutyniaDeweloper:
Platforma Mieszkaniowadolnośląskie, średzki, Wróblowice, ul. Pogodna
dolnośląskie, średzki, Wróblowice, ul. Pogodna
Termin oddania
Gotowe
Ilość pokoi
2 pokoje
Metraż
47,79 m²
Piętro
2 piętro
Kuchnia
otwarta kuchnia
Wysokość pomieszczeń
od 260 do 280 cm wysokości
Ilość poziomów
1 poziom
Oznaczenie oferty
2C - 3C

Raport o deweloperze
Poznaj dewelopera bliżej! Pobierz raport, w którym znajdziesz kluczowe informacje o firmie, jej doświadczeniu, nagrodach oraz aktualnych i zrealizowanych inwestycjach.
Budynek i otoczenie
Miejsca postojowe | |
|---|---|
Standard wykończenia | standard deweloperski |
Realizacja inwestycji | rozpoczęcie budowy w 2 kw. 2022 roku, inwestycja została oddana do użytkowania w 3 kw. 2024 roku |
Udogodnienia | plac zabaw |
Przyroda | informacja u dewelopera |
Charakterystyka energetyczna nieruchomości | informacja u dewelopera |
Rezerwacja i finanse
Rodzaj własności | Odrębna własność z własnością gruntu |
|---|---|
Wysokość czynszu | informacja u dewelopera |
Warunki rezerwacji | Informacja u dewelopera |
Zabezpieczenie środków | Informacja u dewelopera |
Zdjęcia z budowy
Zobacz na jakim etapie budowy jest ta inwestycja
Lokalizacja inwestycji
Przystanek Autobusowy - 498 m
Dojazd do centrum Wrocławia: pokaż
W pobliżu 1 km od tej inwestycji znajdują się:
2 kawiarnie i restauracje, 2 sklepy, 6 obiektów sportowych, 1 placówka medyczna, 10 placówek edukacyjnych, 3 place zabaw
Przeczytaj więcej o lokalizacji
Województwo dolnośląskie, jedno z 16 województw ze stolicą we Wrocławiu. Zostało utworzone w 1999 roku z ziem poprzednich województw wrocławskiego, legnickiego, jeleniogórskiego, wałbrzyskiego i części leszczyńskiego oraz kaliskiego. Województwo to jest położone na południowym zachodzie kraju, obejmując znaczną część historycznego Śląska (Dolny Śląsk) i wschodnie Łużyce Górne.
Opis oferty
Nowe 2-pokojowe mieszkanie na sprzedaż o powierzchni 47,79 m² znajduje się w nowo budowanej inwestycji deweloperskiej Zielona Lutynia we Wróblowicach, ul. Pogodna (1.3 km od Wrocławia).
Sprzedaż prowadzi Platforma Mieszkaniowa.
Cała inwestycja składa się z 8 budynków, w których łącznie znajduje się 288 nowych mieszkań.
Na sprzedaż pozostają 2 oferty o powierzchni od 47 do 48 m².
W budynkach są 3 kondygnacje naziemne. Budynek nie posiada kondygnacji podziemnych.
Inwestycja Zielona Lutynia została wybudowana i oddana do użytkowania w 3 kw. 2024 roku.
Nowe mieszkanie o oznaczeniu 2C - 3C znajduje się na 2 piętrze i jest 1-poziomowe. Pomieszczenia mają od 260 do 280 centymetrów wysokości. W mieszkaniu znajdują się 2 pokoje.
Dla przyszłych mieszkańców Zielona Lutynia deweloper przewidział miejsca postojowe naziemne.
Dzięki temu przyszli właściciele nie będą musieli poszukiwać wolnej przestrzeni parkingowej.
Opis Inwestycji
Kompleks ośmiu budynków wielorodzinnych, usytuowany przy ulicy Pogodnej we Wróblowicach. Łącznie znajdzie się tam 288 mieszkań. Budynek przewidziano w technologii prefabrykowanej oraz uzupełniająco w technologii tradycyjnej, mieszanej żelbetowo – murowanej. Ten rodzaj konstrukcji obiektów zapewnia wysoką jakość i wydajność. Dzięki nowoczesnej technologii staje się coraz bardziej zaawansowany, wykazując ogromny potencjał na rynku budowlanym.
Bliskość położonego nieopodal Lasu Ratyńskiego, gwarantuje, że na spacery z maluchami czy też wyprawy rowerowe nie trzeba będzie wybierać się w odległe rejony. W samej Lutynii znajduje się szkoła i sklep.
To więc doskonałe rozwiązanie dla tych, którzy nie chcąc wyprowadzać się daleko od miasta, marzą też o mieszkaniu w miejscu, w którym można wypocząć na łonie natury i napawać wzrok odprężającymi widokami. A jeśli najdzie Cię ochota, by wyskoczyć do centrum, błyskawicznie przedostaniesz się tam zarówno samochodem, jak i komunikacją miejską lub pociągiem.
Na osiedlu nie brakuje małej architektury (czyli choćby ławek), jest też dwa funkcjonalne plac zabaw i sporo zadbanej zieleni.
Mieszkanie znajduje się w inwestycji Zielona Lutynia, w której znajduje się w sprzedaży jeszcze 5 podobnych nowych mieszkań.





