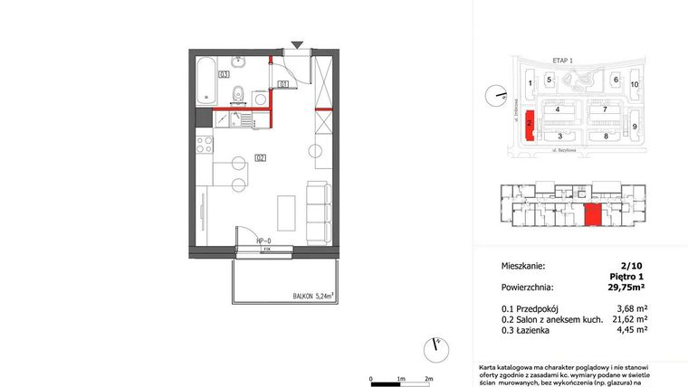
Mieszkanie na sprzedaż 1 pokój o powierzchni 29,75 m² numer 2/10
Inwestycja:
Słoneczny ZakątekDeweloper:
Platforma Mieszkaniowa
Inwestycja:
Słoneczny ZakątekDeweloper:
Platforma MieszkaniowaKąty Wrocławskie, ul. Józefa Mireckiego
Kąty Wrocławskie, ul. Józefa Mireckiego
Termin oddania
4 kw. 2026
Ilość pokoi
1 pokój
Metraż
29,75 m²
Piętro
1 piętro
Kuchnia
otwarta kuchnia
Wysokość pomieszczeń
od 260 do 280 cm wysokości
Ilość poziomów
1 poziom
Oznaczenie oferty
2/10

Raport o deweloperze
Poznaj dewelopera bliżej! Pobierz raport, w którym znajdziesz kluczowe informacje o firmie, jej doświadczeniu, nagrodach oraz aktualnych i zrealizowanych inwestycjach.
Budynek i otoczenie
Miejsca postojowe | |
|---|---|
Standard wykończenia | standard deweloperski |
Realizacja inwestycji | oddanie do użytkowania w 4 kw. 2026 roku |
Udogodnienia | patio / dziedziniec |
Przyroda | informacja u dewelopera |
Charakterystyka energetyczna nieruchomości | informacja u dewelopera |
Rezerwacja i finanse
Rodzaj własności | informacja u dewelopera |
|---|---|
Wysokość czynszu | informacja u dewelopera |
Warunki rezerwacji | Informacja u dewelopera |
Zabezpieczenie środków | Informacja u dewelopera |
Zdjęcia z budowy
Zobacz na jakim etapie budowy jest ta inwestycja
Lokalizacja inwestycji
Stacja kolejowa - Kąty Wrocławskie - 1367 m
Przystanek Autobusowy - 762 m
Dojazd do centrum Wrocławia: pokaż
W pobliżu 1 km od tej inwestycji znajdują się:
2 kawiarnie i restauracje, 7 sklepów, 10 obiektów sportowych, 2 placówki medyczne, 16 placówek edukacyjnych, 13 placów zabaw
Przeczytaj więcej o lokalizacji
Miasto Kąty Wrocławskie zajmuje powierzchnię ponad 6 km2 i usytuowane jest w województwie dolnośląskim, w odległości 22 km na południowy zachód od Wrocławia. Atutem lokalizacji są walory pejzażowe i rekreacyjne okolic: Park Krajobrazowy Doliny Bystrzycy, Adrenalina Park w dolinie Strzegomki, Ośrodek Rekreacyjno-Sportowy Wektory, a także zabytkowe kompleksy pałacowo-parkowe, np. Pałac w Krobielowicach z parkiem, stawem, polem golfowym, hotelem i restauracją. W mieście rozwijają się usługi i handel, zaś w jego zachodniej części powstają nowe zakłady produkcyjne. Zabudowę mieszkaniową dla ok. 6 tys. mieszkańców stanowią: domy wielorodzinne w części północnej, a w części południowej – jednorodzinne i szeregowe. Park Miejski oraz Gminny Ośrodek Kultury i Sportu to strefy rozrywki, wypoczynku i sportu.
Opis oferty
Nowe 1-pokojowe mieszkanie na sprzedaż o powierzchni 29,75 m² znajduje się w nowo wybudowanej inwestycji deweloperskiej Słoneczny Zakątek w Kątach Wrocławskich, ul. Józefa Mireckiego (9 km od Wrocławia).
Sprzedaż prowadzi Platforma Mieszkaniowa.
Cała inwestycja składa się z 5 budynków, w których łącznie znajduje się 118 nowych mieszkań.
Na sprzedaż pozostają 73 oferty o powierzchni od 30 do 75 m².
W budynkach są 4 kondygnacje naziemne oraz 1 kondygnacja podziemna.
Inwestycja Słoneczny Zakątek jest w trakcie budowy z planowanym na 4 kw. 2026 roku terminem oddania do użytkowania.
Nowe mieszkanie o oznaczeniu 2/10 znajduje się na 1 piętrze i jest 1-poziomowe. Pomieszczenia mają od 260 do 280 centymetrów wysokości. W mieszkaniu znajduje się 1 pokój.
Dla przyszłych mieszkańców Słoneczny Zakątek deweloper przewidział miejsca postojowe podziemne.
Dzięki temu przyszli właściciele nie będą musieli poszukiwać wolnej przestrzeni parkingowej. Dodatkowo, miejsce postojowe w garażu podziemnym zabezpiecza przed niekorzystnymi warunkami atmosferycznymi.
Opis Inwestycji
Słoneczny Zakątek to wyjątkowe miejsce tuż przy samej Dolinie Bystrzycy, z dostępem do wszystkich atutów Kątów Wrocławskich. Obecnie rozpoczynamy budowę nowych etapów osiedla, gdzie nasi Klienci będą mogli wybrać mieszkanie spośród szerokiej oferty lokali, od kawalerek, poprzez mieszkania 2- i 3-pokojowe, aż do apartamentów 4-pokojowych. Świetna lokalizacja przy ulicy Bazyliowej, zapewni Mieszkańcom wygodny i szybki dojazd do centrum.
• ogródki lub balkony
• duży teren rekreacyjny
• garaże podziemne
Mieszkanie znajduje się w inwestycji Słoneczny Zakątek, w której znajduje się w sprzedaży jeszcze 9 podobnych nowych mieszkań.





