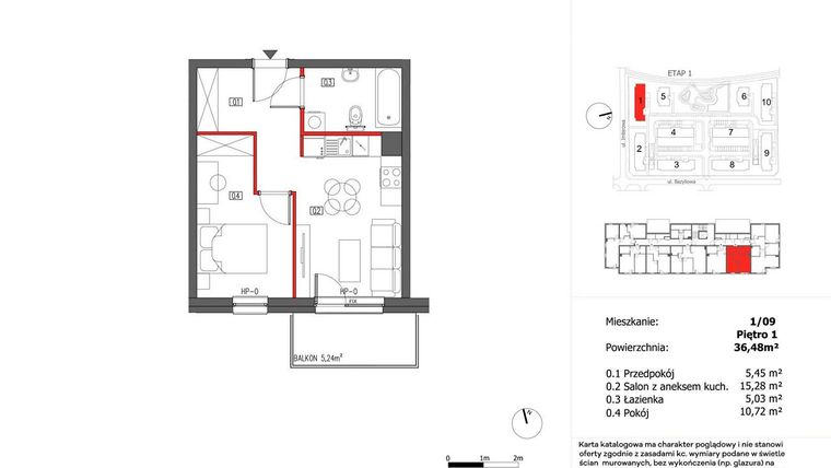
Mieszkanie na sprzedaż 2 pokoje o powierzchni 36,48 m² numer 1/9
Rezerwacja
Oferta archiwalna
Inwestycja:
Słoneczny ZakątekDeweloper:
Platforma Mieszkaniowa
Inwestycja:
Słoneczny ZakątekDeweloper:
Platforma MieszkaniowaKąty Wrocławskie, ul. Józefa Mireckiego
Kąty Wrocławskie, ul. Józefa Mireckiego
Uwaga
Ta nieruchomość jest nieaktywna. Informacje na jej temat pomagają nam jednak tworzyć wiarygodną bazę informacji na temat lokalnego rynku nieruchomości statystycznych portalu
Termin oddania
4 kw. 2026
Ilość pokoi
2 pokoje
Metraż
36,48 m²
Piętro
1 piętro
Kuchnia
otwarta kuchnia
Wysokość pomieszczeń
od 260 do 280 cm wysokości
Ilość poziomów
1 poziom
Oznaczenie oferty
1/9

Raport o deweloperze
Poznaj dewelopera bliżej! Pobierz raport, w którym znajdziesz kluczowe informacje o firmie, jej doświadczeniu, nagrodach oraz aktualnych i zrealizowanych inwestycjach.
Budynek i otoczenie
Miejsca postojowe | |
|---|---|
Standard wykończenia | standard deweloperski |
Realizacja inwestycji | oddanie do użytkowania w 4 kw. 2026 roku |
Udogodnienia | patio / dziedziniec |
Przyroda | informacja u dewelopera |
Charakterystyka energetyczna nieruchomości | informacja u dewelopera |
Rezerwacja i finanse
Rodzaj własności | informacja u dewelopera |
|---|---|
Wysokość czynszu | informacja u dewelopera |
Warunki rezerwacji | Informacja u dewelopera |
Zabezpieczenie środków | Informacja u dewelopera |
Lokalizacja inwestycji
Stacja kolejowa - Kąty Wrocławskie - 1367 m
Przystanek Autobusowy - 762 m
Dojazd do centrum Wrocławia: pokaż
W pobliżu 1 km od tej inwestycji znajdują się:
2 kawiarnie i restauracje, 7 sklepów, 10 obiektów sportowych, 2 placówki medyczne, 16 placówek edukacyjnych, 13 placów zabaw
Przeczytaj więcej o lokalizacji
Miasto Kąty Wrocławskie zajmuje powierzchnię ponad 6 km2 i usytuowane jest w województwie dolnośląskim, w odległości 22 km na południowy zachód od Wrocławia. Atutem lokalizacji są walory pejzażowe i rekreacyjne okolic: Park Krajobrazowy Doliny Bystrzycy, Adrenalina Park w dolinie Strzegomki, Ośrodek Rekreacyjno-Sportowy Wektory, a także zabytkowe kompleksy pałacowo-parkowe, np. Pałac w Krobielowicach z parkiem, stawem, polem golfowym, hotelem i restauracją. W mieście rozwijają się usługi i handel, zaś w jego zachodniej części powstają nowe zakłady produkcyjne. Zabudowę mieszkaniową dla ok. 6 tys. mieszkańców stanowią: domy wielorodzinne w części północnej, a w części południowej – jednorodzinne i szeregowe. Park Miejski oraz Gminny Ośrodek Kultury i Sportu to strefy rozrywki, wypoczynku i sportu.
Opis oferty
Nowe 2-pokojowe mieszkanie na sprzedaż o powierzchni 36,48 m² znajduje się w nowo wybudowanej inwestycji deweloperskiej Słoneczny Zakątek w Kątach Wrocławskich, ul. Józefa Mireckiego (9 km od Wrocławia).
Sprzedaż prowadzi Platforma Mieszkaniowa.
Cała inwestycja składa się z 5 budynków, w których łącznie znajduje się 118 nowych mieszkań.
Na sprzedaż pozostaje 86 ofert o powierzchni od 30 do 75 m².
W budynkach są 4 kondygnacje naziemne oraz 1 kondygnacja podziemna.
Inwestycja Słoneczny Zakątek jest w trakcie budowy z planowanym na 4 kw. 2026 roku terminem oddania do użytkowania.
Nowe mieszkanie o oznaczeniu 1/9 znajduje się na 1 piętrze i jest 1-poziomowe. Pomieszczenia mają od 260 do 280 centymetrów wysokości. W mieszkaniu znajdują się 2 pokoje.
Dla przyszłych mieszkańców Słoneczny Zakątek deweloper przewidział miejsca postojowe podziemne.
Dzięki temu przyszli właściciele nie będą musieli poszukiwać wolnej przestrzeni parkingowej. Dodatkowo, miejsce postojowe w garażu podziemnym zabezpiecza przed niekorzystnymi warunkami atmosferycznymi.
Opis Inwestycji
Słoneczny Zakątek to wyjątkowe miejsce tuż przy samej Dolinie Bystrzycy, z dostępem do wszystkich atutów Kątów Wrocławskich. Obecnie rozpoczynamy budowę nowych etapów osiedla, gdzie nasi Klienci będą mogli wybrać mieszkanie spośród szerokiej oferty lokali, od kawalerek, poprzez mieszkania 2- i 3-pokojowe, aż do apartamentów 4-pokojowych. Świetna lokalizacja przy ulicy Bazyliowej, zapewni Mieszkańcom wygodny i szybki dojazd do centrum.
• ogródki lub balkony
• duży teren rekreacyjny
• garaże podziemne
Mieszkanie znajduje się w inwestycji Słoneczny Zakątek, w której znajdują się w sprzedaży jeszcze 34 podobne nowe mieszkania.





