Apartament na sprzedaż 2 pokoje o powierzchni 42,84 m² numer A.4.8
Inwestycja:
RemediumDeweloper:
Platforma Mieszkaniowa
Inwestycja:
RemediumDeweloper:
Platforma MieszkaniowaGdańsk, Aniołki, ul. Mariana Smoluchowskiego
Gdańsk, Aniołki, ul. Mariana Smoluchowskiego
Termin oddania
Gotowe
Ilość pokoi
2 pokoje
Metraż
42,84 m²
Piętro
3 piętro
Strona świata
wschód, południe
Powierzchnie dodatkowe
Loggia
Kuchnia
otwarta kuchnia
Wysokość pomieszczeń
od 260 do 280 cm wysokości
Ilość poziomów
1 poziom
Oznaczenie oferty
A.4.8

Raport o deweloperze
Poznaj dewelopera bliżej! Pobierz raport, w którym znajdziesz kluczowe informacje o firmie, jej doświadczeniu, nagrodach oraz aktualnych i zrealizowanych inwestycjach.
Budynek i otoczenie
Miejsca postojowe | |
|---|---|
Standard wykończenia | wykończenie pod klucz |
Realizacja inwestycji | rozpoczęcie budowy w 3 kw. 2023 roku, inwestycja została oddana do użytkowania w 3 kw. 2025 roku |
Udogodnienia | monitoring, recepcja, usługi w budynku |
Przyroda | w okolicy inwestycji znajduje się morze, park |
Charakterystyka energetyczna nieruchomości |
|
Rezerwacja i finanse
Rodzaj własności | Odrębna własność z użytkowaniem wieczystym gruntu |
|---|---|
Wysokość czynszu | informacja u dewelopera |
Warunki rezerwacji | Informacja u dewelopera |
Zabezpieczenie środków | Informacja u dewelopera |
Zdjęcia z budowy
Zobacz na jakim etapie budowy jest ta inwestycja
Lokalizacja inwestycji
Stacja kolejowa - Gdańsk Politechnika - 687 m
Przystanek Tramwajowy - 157 m
Przystanek Autobusowy - 52 m
Dojazd do centrum: pokaż
W pobliżu 1 km od tej inwestycji znajdują się:
31 kawiarni i restauracji, 18 sklepów, 50 obiektów sportowych, 47 placówek medycznych, 22 placówki edukacyjne, 7 placów zabaw
Przeczytaj więcej o lokalizacji
Aniołki to niewielka dzielnica położona w środkowej części Gdańska o powierzchni 226 hektarów ograniczona od południa ul. Powstańców Warszawskich, od północy linią kolejową a od zachodu ul. Mariana Smoluchowskiego i zamieszkana przez 5 tys. mieszkańców. Aniołki dzieli Wielka Aleja, jedna z głównych arterii komunikacyjnych całego Trójmiasta. Na terenie tej cichej, zielonej dzielnicy znajduje się Uniwersyteckie Centrum Kliniczne, zabytkowy Park Steffensa i Stadion MOSiR. Tuż za północną granicą miasta znajduje się stacja SKM Gdańsk Stocznia a na wschodzie ogólnokrajowa stacja PKP Gdańsk Główny. Od zachodu z dzielnicą sąsiaduje Góra Szubieniczna z parkiem im. Traugutta, Wydziałem Zarządzania i Ekonomii Politechniki Gdańskiej, Gdańskim Uniwersytetem Medycznym i zabytkową cerkwią im. Św. Mikołaja. Na zabudowę Gdańska Aniołki składają się głównie bloki i nowoczesne osiedla.
Opis oferty
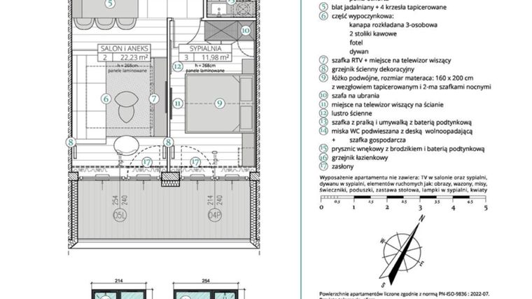
Apartament A.4.8 to gotowy produkt pod najem na 3. piętrze – 2 pokoje , 42,84 m² i duża, zadaszona loggia 8,33 m² . W praktyce to układ, który dobrze działa w kilku scenariuszach: w wynajmie dobowym zapewnia komfort do 4 osób (sypialnia + rozkładana sofa w salonie), a przy pobytach średnio- i długoterminowych stanowi wygodną bazę dla pary . Duże przeszklenia i widok na zieleń parku podnoszą standard pobytu i pomagają wyróżnić ofertę wśród konkurencji. Lokal jest wykończony, umeblowany i wyposażony , więc po zakupie można go od razu włączyć do najmu bez dodatkowych nakładów.
Funkcjonalny układ pod najem
Hol (4,05 m²)
szafa na ubrania, dekoracyjne lustro, siedzisko – wygodna strefa wejściowa z miejscem na odzież wierzchnią i bagaż.
Salon z aneksem (22,23 m²)
Strefa dzienna z kompletną zabudową kuchenną: wysoka lodówka w zabudowie, szafka stojąca z piekarnikiem i płytą grzewczą, szafka ścienna z okapem, szafki stojące z szufladami, szafka ze zlewozmywakiem i szufladą na kosze, zmywarka 45 cm w zabudowie, dodatkowa szafka stojąca z szufladami, zamykana szafka wisząca oraz półka otwarta. Stół z 4 tapicerowanymi krzesłami pełni funkcję miejsca do posiłków i pracy. Część wypoczynkowa obejmuje rozkładaną sofę 3-osobową, fotel, stoliki kawowe, dywan, szafkę RTV z miejscem na telewizor oraz dekoracyjny grzejnik ścienny. Duże przeszklenia dobrze doświetlają wnętrze i otwierają widok na zieleń.
Sypialnia (11,98 m²)
Łóżko podwójne 160 × 200 cm z tapicerowanym wezgłowiem, dwie szafki nocne, szafa na ubrania, lustro ścienne oraz miejsce na telewizor – układ wygodny przy pobytach średnich i długich.
Łazienka (4,58 m²)
Zabudowa z pralką i umywalką (bateria podtynkowa), podwieszana miska WC z deską wolnoopadającą i szafką gospodarczą, prysznic wnękowy z brodzikiem i baterią podtynkową oraz grzejnik łazienkowy.
Loggia (8,33 m²)
Duża, zadaszona loggia dostępna z części dziennej – dodatkowa strefa wypoczynku z widokiem na zieleń, szczególnie ceniona przy pobytach krótko- i długoterminowych.
Taki układ zapewnia właścicielowi elastyczność w prowadzeniu najmu : od najmu dobowego dla 3–4 osób po stabilny najem średnio- i długoterminowy dla pary, przy zachowaniu czytelnego podziału funkcji mieszkania.
Standard „pod klucz”
Apartament został wykończony „pod klucz” w standardzie inwestycji Remedium: panele laminowane w strefach mieszkalnych, gres w holu i łazience, kompletna zabudowa kuchenna z AGD w zabudowie, umeblowana strefa dzienna, wyposażona sypialnia, w pełni urządzona łazienka oraz zasłony. Zastosowano materiały i meble w standardzie obiektowym , odporne na intensywną eksploatację.
Remedium – budynek i marka
Remedium to gotowy budynek apartamentów inwestycyjnych na gdańskich Aniołkach, zrealizowany przez Domesta – lokalnego dewelopera z ponad 30-letnim doświadczeniem i nagrodą 5 gwiazdek w European Property Awards. Budynek został zaprojektowany specjalnie pod najem – posiada recepcję, parking i spełnia normy stawiane obiektom noclegowym.
Najem i lokalizacja
Położenie pomiędzy kampusami uczelni, kompleksem szpitali klinicznych a śródmieściem i terenami postoczniowymi zapewnia stabilny, całoroczny popyt na najem krótko-, średnio- i długoterminowy.
Podana cena lokalu to cena netto, należy do niej doliczyć 23%VAT - cena lokalu brutto 1 193 100 PLN.
Kontakt
Zapraszamy do obejrzenia apartamentu A.4.8 na żywo. Prosimy o wcześniejsze umówienie wizyty z biurem sprzedaży przy inwestycji Remedium.
Nowy 2-pokojowy apartament na sprzedaż o powierzchni 42,84 m² znajduje się w nowo budowanej inwestycji deweloperskiej Remedium w Aniołkach, ul. Mariana Smoluchowskiego (2.1 km od centrum Gdańska).
Sprzedaż prowadzi Platforma Mieszkaniowa.
Cała inwestycja składa się z 2 budynków, w których łącznie znajduje się 65 nowych apartamentów.
Na sprzedaż pozostaje 27 ofert o powierzchni od 37 do 63 m².
W budynkach są 4 kondygnacje naziemne oraz 1 kondygnacja podziemna.
Inwestycja Remedium została wybudowana i oddana do użytkowania w 3 kw. 2025 roku.
Nowy apartament o oznaczeniu A.4.8 znajduje się na 3 piętrze i jest 1-poziomowy. Pomieszczenia mają od 260 do 280 centymetrów wysokości. W apartamencie znajdują się 2 pokoje.
Okna w apartamencie wychodzą na wschód, południe.
Okna wychodzące na południe gwarantują maksymalną ilość naturalnego światła, co czyni wnętrza jasnymi i ciepłymi. Dodatkowo południowa ekspozycja pomaga obniżyć koszty ogrzewania w zimie. Okna na południe są idealne dla osób pragnących cieszyć się jasnym otoczeniem, które sprzyja dobremu samopoczuciu oraz pozytywnej energii.
Wschodnia orientacja zapewnia dostęp do łagodnego porannego światła, idealnego dla rozpoczęcia dnia pełnego energii. Wnętrza pozostają jasne, ale nieprzegrzane, co sprzyja utrzymaniu komfortowej temperatury. Przebywanie w pomieszczeniu z oknami na wschód inspiruje do działania i pozytywnie wpływa na poranny rytuał.
Dla przyszłych mieszkańców Remedium deweloper przewidział miejsca postojowe podziemne, miejsca postojowe naziemne.
Dzięki temu przyszli właściciele nie będą musieli poszukiwać wolnej przestrzeni parkingowej. Dodatkowo, miejsce postojowe w garażu podziemnym zabezpiecza przed niekorzystnymi warunkami atmosferycznymi.
Opis Inwestycji
Tereny zielone
Pow. dodatkowe
Remedium to wyjątkowy projekt położony w kameralnej i centralnie położonej dzielnicy Gdańska - Aniołki. Lokalizacja inwestycji jest gwarancją komfortu, sąsiedztwa natury i łatwego dostępu do wszelkich usług. Bliskość tętniącego życiem centrum Gdańska umożliwia korzystanie z bogatej oferty kulturalno-rozrywkowej i nowoczesnej strefy biznesowej. W bezpośrednim sąsiedztwie znajduje się Gdański Uniwersytet Medyczny, Politechnika Gdańska, Opera Bałtycka, Pływalnia oraz Multikino. Bogata siatka połączeń komunikacji miejskiej usprawnia poruszanie się po całym Trójmieście.
W ramach inwestycji powstaje 65 nowoczesnych apartamentów, wykończonych pod klucz w najwyższym standardzie oraz 3 lokale usługowe umieszczone na parterze budynku, z własnymi miejscami postojowymi. Jasne, przestronne wnętrza apartamentów posiadają przyjazny i domowy charakter. Wysoka jakość użytych materiałów gwarantuje trwałość i odporność produktów na zużycie. Mając na uwadze dbałość o przyrodę, zastosowane elementy wyposażenia i rozwiązania są ekologiczne oraz bezpieczne dla środowiska. Podniesienie poziomu bezpieczeństwa i dodatkowe zabezpieczenia mienia przyszłych mieszkańców zagwarantuje monitoring oraz recepcja budynku.
Budynek został wkomponowany w działkę w sposób umożliwiający stworzenie ustronnej strefy rekreacyjnej - przestrzeni, w której będzie można odpocząć, spędzić czas wolny na łonie natury, w spokojnym zakątku, w oddali od miejskiego zgiełku. Inwestycję charakteryzuje ponadczasowa architektura, która powstała z myślą o osobach ceniących wysoką jakość, precyzję wykończenia oraz niepowtarzalną estetykę. Harmonię i ład przestrzenny pozwalają zachować detale elewacji wprowadzające analogię do pobliskich budynków.
Apartament znajduje się w inwestycji Remedium, w której znajdują się w sprzedaży jeszcze 34 podobne nowe apartamenty.





