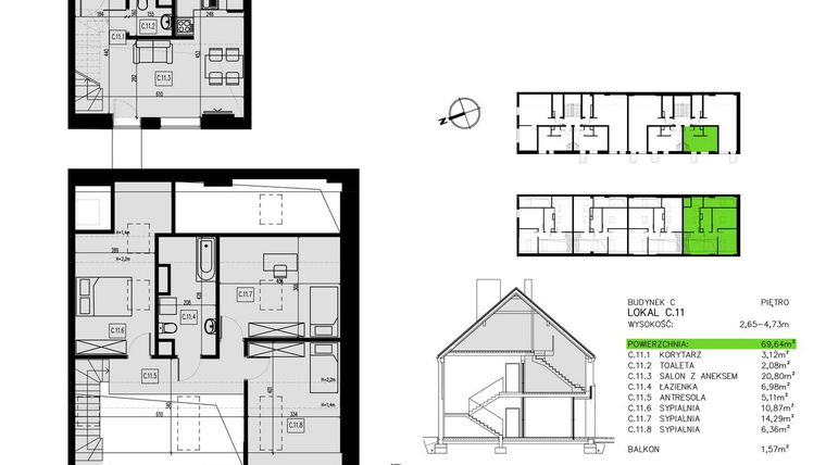
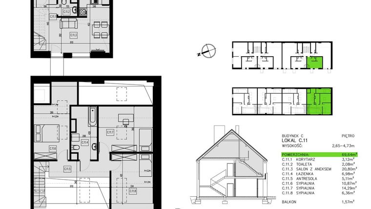
Mieszkanie na sprzedaż 4 pokoje o powierzchni 72,26 m² numer C.11
Inwestycja:
Pawia od NowaDeweloper:
Platforma Mieszkaniowa
Inwestycja:
Pawia od NowaDeweloper:
Platforma MieszkaniowaWrocław, Krzyki, Wojszyce, ul. Pawia
Wrocław, Krzyki, Wojszyce, ul. Pawia
Termin oddania
Gotowe
Ilość pokoi
4 pokoje
Metraż
72,26 m²
Piętro
1 piętro
Kuchnia
otwarta kuchnia
Wysokość pomieszczeń
od 260 do 280 cm wysokości
Ilość poziomów
1 poziom
Oznaczenie oferty
C.11

Raport o deweloperze
Poznaj dewelopera bliżej! Pobierz raport, w którym znajdziesz kluczowe informacje o firmie, jej doświadczeniu, nagrodach oraz aktualnych i zrealizowanych inwestycjach.
Budynek i otoczenie
Miejsca postojowe | |
|---|---|
Standard wykończenia | standard deweloperski |
Realizacja inwestycji | rozpoczęcie budowy w 1 kw. 2023 roku, inwestycja została oddana do użytkowania w 2 kw. 2024 roku |
Udogodnienia | informacja u dewelopera |
Przyroda | informacja u dewelopera |
Charakterystyka energetyczna nieruchomości | informacja u dewelopera |
Rezerwacja i finanse
Rodzaj własności | Odrębna własność z własnością gruntu |
|---|---|
Wysokość czynszu | informacja u dewelopera |
Warunki rezerwacji | Informacja u dewelopera |
Zabezpieczenie środków | Informacja u dewelopera |
Zdjęcia z budowy
Zobacz na jakim etapie budowy jest ta inwestycja
Lokalizacja inwestycji
Stacja kolejowa - Wrocław Wojszyce - 736 m
Przystanek Tramwajowy - 1437 m
Przystanek Autobusowy - 136 m
Dojazd do centrum: pokaż
W pobliżu 1 km od tej inwestycji znajdują się:
6 kawiarni i restauracji, 14 sklepów, 15 obiektów sportowych, 8 placówek medycznych, 15 placówek edukacyjnych, 39 placów zabaw
Przeczytaj więcej o lokalizacji
Krzyki to dawna dzielnica Wrocławia, znajduje się w południowej części miasta. Zajmuje ponad 54 km2 a na jej terenie mieszka prawie 170 tysięcy osób. Na zabudowę dzielnicy składają się zarówno duże osiedla mieszkaniowe, jak i domy jednorodzinne. Został tu wybudowany także najwyższy budynek w Polsce – Sky Tower. Znajduje się tu dużo zabytkowych willi i inne zabytki takie jak Wieża Ciśnień czy Stary Cmentarz Żydowski. Na Krzykach znajduje się Wrocławski Uniwersytet Ekonomiczny a także ponad 100 szkół elementarnych. Największym centrum handlowym jest Wroclavia o powierzchni 71 000 m2. W południowej części Krzyków znajduje się tor wyścigów konnych Partynice oraz Wrocławski Tatr Pantomimy. Dzielnica posiada połączenia autobusowe i tramwajowe – znajduje się tu 5 pętli tramwajowych. Dwie główne ulice Krzyków, które łączą je z centrum miasta to Powstańców Śląskich oraz Ślężna. Znajduje się tu także Wrocławski Dworzec Główny.
Opis oferty
Nowe 4-pokojowe mieszkanie na sprzedaż o powierzchni 72,26 m² znajduje się w nowo budowanej inwestycji deweloperskiej Pawia od Nowa na Wojszycach, ul. Pawia (4.8 km od centrum Wrocławia).
Sprzedaż prowadzi Platforma Mieszkaniowa.
Cała inwestycja składa się z 2 budynków, w których łącznie znajduje się 36 nowych mieszkań.
Na sprzedaż pozostaje 5 ofert o powierzchni od 43 do 73 m².
W budynkach są 3 kondygnacje naziemne. Budynek nie posiada kondygnacji podziemnych.
Inwestycja Pawia od Nowa została wybudowana i oddana do użytkowania w 2 kw. 2024 roku.
Nowe mieszkanie o oznaczeniu C.11 znajduje się na 1 piętrze i jest 1-poziomowe. Pomieszczenia mają od 260 do 280 centymetrów wysokości. W mieszkaniu znajdują się 4 pokoje.
Dla przyszłych mieszkańców Pawia od Nowa deweloper nie przewidział miejsc postojowych.
Opis Inwestycji
Okazyjna cena
GOTOWA INWESTYCJA "PAWIA OD NOWA"
Niepowtarzalny charakter inwestycji wynika z lokalizacji przy ulicy Pawiej, niegdysiejszej głównej ulicy wsi Wojszyce. Znajdujące się tutaj charakterystyczne zabudowania folwarczne pochodzące z pierwszych lat XX wieku są unikatowe na skalę światową. Inwestycja została zrealizowana we współpracy z konserwatorem zabytków, dzięki czemu zachowała ducha dawnych lat.
W trzech budynkach, z których każdy posiada własną historię i odpowiadającą jej architekturę, powstały łącznie 23 unikalne mieszkania oraz 5 lokali usługowych. Na terenie inwestycji powstał również parking naziemny, z miejscami postojowymi dedykowanymi mieszkańcom oraz klientom lokali użytkowych.
Mieszkanie znajduje się w inwestycji Pawia od Nowa, w której znajduje się w sprzedaży jeszcze 1 podobne nowe mieszkanie.





