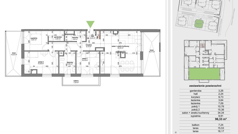
Mieszkanie na sprzedaż 4 pokoje o powierzchni 95,3 m² numer D.7.2
Inwestycja:
Park Przy StawachDeweloper:
Platforma Mieszkaniowa
Inwestycja:
Park Przy StawachDeweloper:
Platforma MieszkaniowaKatowice, Osiedle Paderewskiego-Muchowiec, ul. gen. Kazimierza Pułaskiego
Katowice, Osiedle Paderewskiego-Muchowiec, ul. gen. Kazimierza Pułaskiego
Termin oddania
Gotowe
Ilość pokoi
4 pokoje
Metraż
95,3 m²
Piętro
7 piętro
Powierzchnie dodatkowe
Balkon, Taras, Taras
Wysokość pomieszczeń
286 cm wysokości
Ilość poziomów
1 poziom
Oznaczenie oferty
D.7.2

Raport o deweloperze
Poznaj dewelopera bliżej! Pobierz raport, w którym znajdziesz kluczowe informacje o firmie, jej doświadczeniu, nagrodach oraz aktualnych i zrealizowanych inwestycjach.
Budynek i otoczenie
Miejsca postojowe | |
|---|---|
Komórki lokatorskie | dostępne (52): nieobowiązkowy zakup, od 1,6 do 4,81 m2 |
Standard wykończenia | standard deweloperski Ogrzewanie miejskie |
Realizacja inwestycji | rozpoczęcie budowy w 4 kw. 2021 roku, inwestycja została oddana do użytkowania w 2 kw. 2024 roku |
Udogodnienia | plac zabaw, winda |
Przyroda | w okolicy inwestycji znajduje się park, staw |
Charakterystyka energetyczna nieruchomości |
|
Rezerwacja i finanse
Rodzaj własności | Odrębna własność z własnością gruntu |
|---|---|
Wysokość czynszu | informacja u dewelopera |
Warunki rezerwacji | Informacja u dewelopera |
Zabezpieczenie środków | Otwarty mieszkaniowy rachunek powierniczy |
Zdjęcia z budowy
Zobacz na jakim etapie budowy jest ta inwestycja
Lokalizacja inwestycji
Stacja kolejowa - Katowice Zawodzie - 1584 m
Przystanek Tramwajowy - 1037 m
Przystanek Autobusowy - 268 m
Dojazd do centrum: pokaż
W pobliżu 1 km od tej inwestycji znajdują się:
29 kawiarni i restauracji, 29 sklepów, 28 obiektów sportowych, 15 placówek medycznych, 20 placówek edukacyjnych, 18 placów zabaw
Przeczytaj więcej o lokalizacji
Katowice to miasto w województwie śląskim o powierzchni 164 km kw i liczbie mieszkańców ponad 300 tys. osób. Zabudowa miasta to głównie powojenne bloki i typowe dla Śląska zabytkowe kamienice. Katowice dzielą się na dzielnice pogrupowane w zespoły dzielnic: zespół północny, śródmiejski, południowy, wschodni i zachodni. Miasto jest wojewódzkim centrum medycznym, z kilkunastoma szpitalami, w tym Centralnym Szpitalem Klinicznym im. Kornela Gibińskiego, Szpitalem Klinicznym im. Andrzeja Mieleckiego, Uniwersyteckim Centrum Okulistyki i Onkologii, Szpitalem Klinicznym nr 6 czy Górnośląskim Centrum Zdrowia Dziecka. Działają tu też liczne uniwersytety, takie jak Akademia Wychowania Fizycznego im. Jerzego Kukuczki, Akademia Sztuk Pięknych czy wydziały Politechniki Śląskiej.
Opis oferty
Nowe 4-pokojowe mieszkanie na sprzedaż o powierzchni 95,3 m² znajduje się w nowo budowanej inwestycji deweloperskiej Park Przy Stawach na Osiedlu Paderewskiego-Muchowca, ul. gen. Kazimierza Pułaskiego (2.1 km od centrum Katowic).
Sprzedaż prowadzi Platforma Mieszkaniowa.
Cała inwestycja składa się z 6 budynków, w których łącznie znajduje się 109 nowych mieszkań.
Na sprzedaż pozostaje 9 ofert o powierzchni od 25 do 95 m².
W budynkach jest od 8 do 9 kondygnacji naziemnych oraz 1 kondygnacja podziemna.
Inwestycja Park Przy Stawach została wybudowana i oddana do użytkowania w 2 kw. 2024 roku.
Nowe mieszkanie o oznaczeniu D.7.2 znajduje się na 7 piętrze i jest 1-poziomowe. Pomieszczenia mają 286 centymetrów wysokości. W mieszkaniu znajdują się 4 pokoje.
Do mieszkania przewidziano możliwość zakupu komórki lokatorskiej, którą można zagospodarować na spiżarnię, warsztat czy składzik.
Dla przyszłych mieszkańców Park Przy Stawach deweloper przewidział miejsca postojowe podziemne, miejsca postojowe naziemne.
Dzięki temu przyszli właściciele nie będą musieli poszukiwać wolnej przestrzeni parkingowej. Dodatkowo, miejsce postojowe w garażu podziemnym zabezpiecza przed niekorzystnymi warunkami atmosferycznymi.
Opis Inwestycji
Tereny zielone
Pow. dodatkowe
Inwestycja w najchętniej wybieranej dzielnicy Katowic. Zespół 6 budynków, od 6 do 8 pięter, bezpośrednio przy dolinie Trzech Stawów. Inwestycja dla osób ceniących sobie bliskość centrum i jednocześnie rozległych terenów zielonych. Ładna, ponadczasowa forma budynków, bezpretensjonalna architektura i wysoki standard to wyróżniki tej inwestycji. Inwestycja podzielona została na dwa etapy. Doskonała propozycja i dla inwestorów i dla osób szukających mieszkania dla siebie.
Ogrzewanie podłogowe, wysokości mieszkań - 2,78 cm., bardzo wysoka jakość.
Nowoczesne osiedle mieszkaniowe zlokalizowane tuż obok Doliny Trzech Stawów . Inwestycja to kompleks 6 budynków z bardzo zróżnicowaną ofertą mieszkań. Proste formy, ponadczasowa architektura i wyjątkowa lokalizacja - to miejsce, którego szukasz.
Mieszkanie znajduje się w inwestycji Park Przy Stawach, w której znajduje się w sprzedaży jeszcze 5 podobnych nowych mieszkań.





