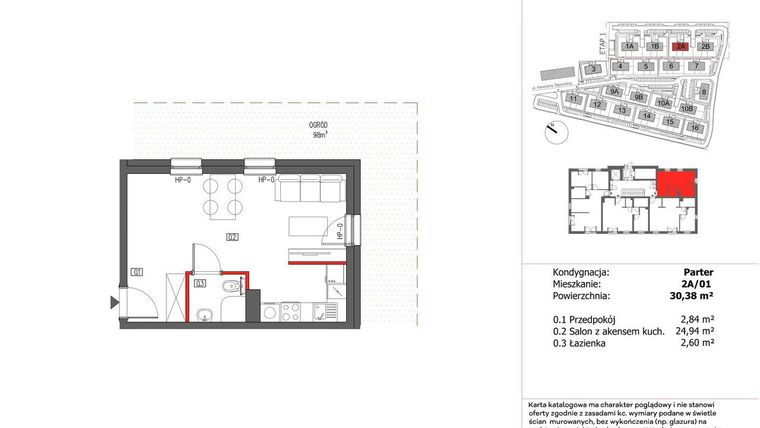
Mieszkanie na sprzedaż 1 pokój o powierzchni 30,38 m² numer 2A/01
Inwestycja:
Panorama ŚlężańskaDeweloper:
Platforma Mieszkaniowa
Inwestycja:
Panorama ŚlężańskaDeweloper:
Platforma MieszkaniowaSobótka, ul. Panoramy Ślężańskiej
Sobótka, ul. Panoramy Ślężańskiej
Termin oddania
4 kw. 2027
Ilość pokoi
1 pokój
Metraż
30,38 m²
Piętro
Parter
Strona świata
wschód, południe
Kuchnia
otwarta kuchnia
Wysokość pomieszczeń
od 260 do 280 cm wysokości
Ilość poziomów
1 poziom
Oznaczenie oferty
2A/01

Raport o deweloperze
Poznaj dewelopera bliżej! Pobierz raport, w którym znajdziesz kluczowe informacje o firmie, jej doświadczeniu, nagrodach oraz aktualnych i zrealizowanych inwestycjach.
Budynek i otoczenie
Miejsca postojowe | |
|---|---|
Komórki lokatorskie | dostępne |
Standard wykończenia | standard deweloperski |
Realizacja inwestycji | rozpoczęcie budowy w 4 kw. 2025 roku, planowane oddanie do użytkowania w 4 kw. 2027 roku |
Udogodnienia | winda, rowerownia, miejsce do ładowania samochodów elektrycznych |
Przyroda | informacja u dewelopera |
Charakterystyka energetyczna nieruchomości | informacja u dewelopera |
Rezerwacja i finanse
Rodzaj własności | Odrębna własność z własnością gruntu |
|---|---|
Wysokość czynszu | informacja u dewelopera |
Warunki rezerwacji | Informacja u dewelopera |
Zabezpieczenie środków | Informacja u dewelopera |
Zdjęcia z budowy
Zobacz na jakim etapie budowy jest ta inwestycja
Lokalizacja inwestycji
Stacja kolejowa - Sobótka - 1673 m
Przystanek Autobusowy - 1019 m
Dojazd do centrum Świdnicy: pokaż
W pobliżu 1 km od tej inwestycji znajdują się:
8 kawiarni i restauracji, 7 sklepów, 8 obiektów sportowych, 1 placówka medyczna, 4 placówki edukacyjne, 3 place zabaw
Przeczytaj więcej o lokalizacji
Sobótka to miasto położone nad Czarną Wodą, w województwie dolnośląskim i powiecie wrocławskim. Należy do jednego z najstarszych miast osadzonych na prawie niemieckim. Sąsiaduje z takimi miastami jak: Sulistrowice, Sulistrowiczki, Będkowice, które tworzą bazę turystyczną pobliskiego Wrocławia. Miasto podzielone jest na trzy części: Centrum, Górka oraz Zachodnia-Strzeblów. Na terenie miasta funkcjonują dwa publiczne przedszkola, dwie szkoły podstawowe oraz powiatowy Zespół Szkół. Miasto słynie z niezwykle urokliwych oraz historycznych zabytków. Do rejestru Narodowego Instytutu Dziedzictwa wpisały się takie zabytki jak m.in. rzeźby "lew romański" oraz "grzyb", zachowane z epoki średniowiecza. Do jednych z chętniej odwiedzanych miejsc, znajdujących się w bliskim sąsiedztwie miasta, należą: Rezerwat Archeologiczny w Będkowicach oraz Muzeum Ślężańskie. Sobótka to miasto, w którym intensywnie rozwija się agroturystyka, stanowiąca idealną bazę zarówno dla turystów, jak i mieszkańców miasta.
Opis oferty
Nowe 1-pokojowe mieszkanie na sprzedaż o powierzchni 30,38 m² znajduje się w nowo budowanej inwestycji deweloperskiej Panorama Ślężańska w Sobótce, ul. Panoramy Ślężańskiej (16.1 km od Świdnicy).
Sprzedaż prowadzi Platforma Mieszkaniowa.
Cała inwestycja składa się z 9 budynków, w których łącznie znajduje się 141 nowych mieszkań.
Na sprzedaż pozostaje 135 ofert o powierzchni od 30 do 79 m².
W budynkach są 4 kondygnacje naziemne oraz 1 kondygnacja podziemna.
Inwestycja Panorama Ślężańska jest w trakcie budowy z planowanym na 4 kw. 2027 roku terminem oddania do użytkowania.
Nowe mieszkanie o oznaczeniu 2A/01 znajduje się na parterze i jest 1-poziomowe. Pomieszczenia mają od 260 do 280 centymetrów wysokości. W mieszkaniu znajduje się 1 pokój.
Okna w mieszkaniu wychodzą na wschód, południe.
Okna wychodzące na południe gwarantują maksymalną ilość naturalnego światła, co czyni wnętrza jasnymi i ciepłymi. Dodatkowo południowa ekspozycja pomaga obniżyć koszty ogrzewania w zimie. Okna na południe są idealne dla osób pragnących cieszyć się jasnym otoczeniem, które sprzyja dobremu samopoczuciu oraz pozytywnej energii.
Wschodnia orientacja zapewnia dostęp do łagodnego porannego światła, idealnego dla rozpoczęcia dnia pełnego energii. Wnętrza pozostają jasne, ale nieprzegrzane, co sprzyja utrzymaniu komfortowej temperatury. Przebywanie w pomieszczeniu z oknami na wschód inspiruje do działania i pozytywnie wpływa na poranny rytuał.
Dla przyszłych mieszkańców Panorama Ślężańska deweloper przewidział miejsca postojowe podziemne, miejsca postojowe naziemne.
Dzięki temu przyszli właściciele nie będą musieli poszukiwać wolnej przestrzeni parkingowej. Dodatkowo, miejsce postojowe w garażu podziemnym zabezpiecza przed niekorzystnymi warunkami atmosferycznymi.
Opis Inwestycji
Tereny zielone
W ramach inwestycji, w pierwszym etapie powstanie dziewięć kameralnych budynków, a w każdym tylko po 15 lub 16 mieszkań. Główne atuty inwestycji to rozwinięta okoliczna infrastruktura, wspaniały widok na masyw góry Ślęży, mądrze przemyślane parkingi z możliwością ładowania aut elektrycznych oraz garaże, komórki lokatorskie i liczne rowerownie.
- zielona okolica, widok na góry
- garaże podziemne
- kameralne budynki
Mieszkanie znajduje się w inwestycji Panorama Ślężańska, w której znajdują się w sprzedaży jeszcze 23 podobne nowe mieszkania.





