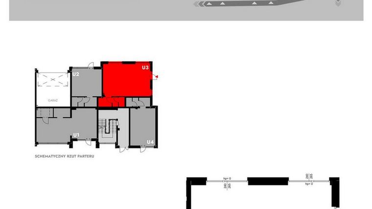
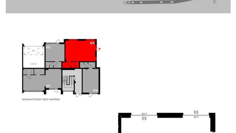
Lokal użytkowy na sprzedaż 1 pokój o powierzchni 49,92 m² numer Z6_U3
Inwestycja:
Osiedle Malarska etap IVDeweloper:
Platforma Mieszkaniowa
Inwestycja:
Osiedle Malarska etap IVDeweloper:
Platforma Mieszkaniowapoznański, Szczytniki, ul. Malarska
poznański, Szczytniki, ul. Malarska
Termin oddania
Gotowe
Ilość pokoi
1 pokój
Metraż
49,92 m²
Piętro
Parter
Wysokość pomieszczeń
od 260 do 280 cm wysokości
Ilość poziomów
1 poziom
Oznaczenie oferty
Z6_U3

Raport o deweloperze
Poznaj dewelopera bliżej! Pobierz raport, w którym znajdziesz kluczowe informacje o firmie, jej doświadczeniu, nagrodach oraz aktualnych i zrealizowanych inwestycjach.
Budynek i otoczenie
Miejsca postojowe | |
|---|---|
Standard wykończenia | standard deweloperski |
Realizacja inwestycji | rozpoczęcie budowy w 1 kw. 2022 roku, inwestycja została oddana do użytkowania w 4 kw. 2024 roku |
Udogodnienia | informacja u dewelopera |
Przyroda | informacja u dewelopera |
Charakterystyka energetyczna nieruchomości | informacja u dewelopera |
Rezerwacja i finanse
Rodzaj własności | Odrębna własność z własnością gruntu |
|---|---|
Wysokość czynszu | informacja u dewelopera |
Warunki rezerwacji | Informacja u dewelopera |
Zabezpieczenie środków | Informacja u dewelopera |
Zdjęcia z budowy
Zobacz na jakim etapie budowy jest ta inwestycja
Lokalizacja inwestycji
Przystanek Autobusowy - 911 m
Dojazd do centrum Poznania: pokaż
W pobliżu 1 km od tej inwestycji znajdują się:
4 sklepy
Przeczytaj więcej o lokalizacji
Powiat poznański znajduje się w centralnej części województwa wielkopolskiego i składa z 17 gmin okalających miasto Poznań. Na obszarze o powierzchni ok. 1900 km2 zamieszkuje ponad 344 tys. osób, toteż poznański jest najludniejszym powiatem w Polsce. Pod względem krajobrazowym powiat należy do Pojezierza Wielkopolskiego, a walorami pejzażu są: rzeka Warta wraz z dopływami, liczne jeziora, 11 rezerwatów przyrody oraz kompleksy leśne, min. Wielkopolski Park Narodowy, Rogaliński Park Krajobrazowy, Puszcza Zielonka i Park Krajobrazowy Promno. Przez powiat przebiegają ważne arterie jak: wschodnia i zachodnia obwodnica Poznania, autostrada A2 czy droga krajowa nr 92, dlatego zlokalizowanych jest tu wiele firm, hal magazynowych oraz zakładów produkcyjnych, a także 4 centra i 10 galerii handlowych. Dogodna lokalizacja w pobliżu Poznania oraz łatwy dojazd do miasta dzięki 29 połączeniom autobusowym sprawiają, że intensywnie rozwija się budownictwo mieszkaniowe – zwłaszcza jednorodzinne.
Opis oferty
Nowy lokal użytkowy na sprzedaż o powierzchni 49,92 m² znajduje się w nowo budowanej inwestycji deweloperskiej Osiedle Malarska etap IV w Szczytnikach, ul. Malarska (0.1 km od Poznania).
Sprzedaż prowadzi Platforma Mieszkaniowa.
Cała inwestycja składa się z 3 budynków, w których łącznie znajdują się 18 nowych lokali użytkowych.
Budynki posiadają 2 kondygnacje naziemne oraz nie posiada kondygnacji podziemnych.
Inwestycja Osiedle Malarska etap IV została wybudowana i oddana do użytkowania w 4 kw. 2024 roku.
Lokal użytkowy o oznaczeniu Z6_U3 znajduje się na parterze budynku, a wysokość pomieszczeń wynosi od 260 do 280 cm.
Dla przyszłych właścicieli deweloper nie przewidział miejsc postojowych.





