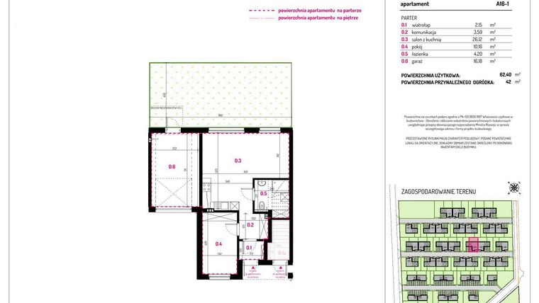
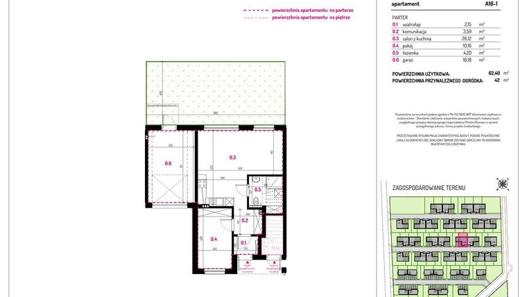
Mieszkanie na sprzedaż 3 pokoje o powierzchni 62,4 m² numer A16-1
Inwestycja:
Aleja Kwitnącej WiśniDeweloper:
Platforma Mieszkaniowa
Inwestycja:
Aleja Kwitnącej WiśniDeweloper:
Platforma MieszkaniowaSiechnice, ul. Cisowa 19/2
Siechnice, ul. Cisowa 19/2
Termin oddania
3 kw. 2026
Ilość pokoi
3 pokoje
Metraż
62,4 m²
Piętro
Parter
Kuchnia
otwarta kuchnia
Wysokość pomieszczeń
267 cm wysokości
Ilość poziomów
1 poziom
Oznaczenie oferty
A16-1

Raport o deweloperze
Poznaj dewelopera bliżej! Pobierz raport, w którym znajdziesz kluczowe informacje o firmie, jej doświadczeniu, nagrodach oraz aktualnych i zrealizowanych inwestycjach.
Budynek i otoczenie
Miejsca postojowe | |
|---|---|
Standard wykończenia | standard deweloperski |
Realizacja inwestycji | rozpoczęcie budowy w 1 kw. 2025 roku, planowane oddanie do użytkowania w 3 kw. 2026 roku |
Udogodnienia | plac zabaw |
Przyroda | informacja u dewelopera |
Charakterystyka energetyczna nieruchomości | informacja u dewelopera |
Rezerwacja i finanse
Rodzaj własności | Odrębna własność z własnością gruntu |
|---|---|
Wysokość czynszu | informacja u dewelopera |
Warunki rezerwacji | Informacja u dewelopera |
Zabezpieczenie środków | Informacja u dewelopera |
Zdjęcia z budowy
Zobacz na jakim etapie budowy jest ta inwestycja
Lokalizacja inwestycji
Stacja kolejowa - Święta Katarzyna - 1530 m
Przystanek Autobusowy - 210 m
Dojazd do centrum Wrocławia: pokaż
W pobliżu 1 km od tej inwestycji znajdują się:
2 kawiarnie i restauracje, 4 sklepy
Przeczytaj więcej o lokalizacji
Siechnice to niewielkie miasto nad rzeką Oławą w powiecie wrocławskim. Na obszarze o powierzchni ponad 15,5 km2 zamieszkuje prawie 6 tys. osób, a bazę mieszkaniową stanowią nowe budynki: czteropiętrowe bloki oraz domy jedno- i wielorodzinne. W Siechnicach zlokalizowana jest największa w Europie szklarnia ogrodnicza, a do zakładów produkcyjnych należą: Parker Hannifin oraz Deceuninck NV. Wewnątrz miasta znajdują się 2 parki, zaś na okoliczne walory przyrodnicze i rekreacyjne składają się: lasy siechnicko-kotowickie, doliny rzek oraz jeziora: Panieńskie, Dziewicze i Czarna Łacha z zapleczem biwakowym. W Siechnicach funkcjonują: Centrum Kultury, Biblioteka Miejska oraz Gminny Ośrodek Sportu i Rekreacji, który udostępnia hale i boiska sportowe.
Opis oferty
Nowe 3-pokojowe mieszkanie na sprzedaż o powierzchni 62,4 m² znajduje się w nowo budowanej inwestycji deweloperskiej Aleja Kwitnącej Wiśni w Siechnicach, ul. Cisowa 19/2 (3.7 km od Wrocławia).
Sprzedaż prowadzi Platforma Mieszkaniowa.
Cała inwestycja składa się z 53 budynków, w których łącznie znajduje się 197 nowych mieszkań.
Na sprzedaż pozostaje 156 ofert o powierzchni od 47 do 165 m².
W budynkach są 2 kondygnacje naziemne. Budynek nie posiada kondygnacji podziemnych.
Inwestycja Aleja Kwitnącej Wiśni jest w trakcie budowy z planowanym na 3 kw. 2026 roku terminem oddania do użytkowania.
Nowe mieszkanie o oznaczeniu A16-1 znajduje się na parterze i jest 1-poziomowe. Pomieszczenia mają 267 centymetrów wysokości. W mieszkaniu znajdują się 3 pokoje.
Dla przyszłych mieszkańców Aleja Kwitnącej Wiśni deweloper przewidział miejsca postojowe naziemne.
Dzięki temu przyszli właściciele nie będą musieli poszukiwać wolnej przestrzeni parkingowej.
Opis Inwestycji
Apartamenty przy Alejach Kwitnącej Wiśni
W malowniczej miejscowości Siechnice powstaje nowa inwestycja o nazwie Aleje Kwitnącej Wiśni. Założenie obejmuje budowę ponad 100 domów w zabudowie bliźniaczej dwulokalowej. Te eleganckie budynki zachwycają klasyczną architekturą, która doskonale wpisuje się w otaczający krajobraz. Każdy dom będzie posiadał ogród, idealny do relaksu i spędzania czasu na świeżym powietrzu. Dodatkowo, niektóre domy wyposażone są w balkony, co stwarza dodatkową przestrzeń do wypoczynku na świeżym powietrzu.
Zamieszkaj w oazie spokoju i wygody
Mieszkańcy będą mieli do dyspozycji garaże oraz indywidualne miejsca parkingowe, co zapewnia codzienny komfort. Na terenie inwestycji znajdzie się strefa relaksu oraz plac zabaw, co czyni to miejsce przyjaznym dla rodzin. W okolicy dostępna jest pełna infrastruktura, w tym szkoły, przedszkola oraz lokalne galerie handlowe, co znacząco ułatwia życie codzienne. Lokalne restauracje serwują pyszne dania, a tereny rekreacyjne zachęcają do aktywności na świeżym powietrzu. W bliskiej odległości znajduje się Błękitna Laguna, znana z możliwości relaksu oraz uprawiania sportów wodnych.
Mieszkanie znajduje się w inwestycji Aleja Kwitnącej Wiśni, w której znajduje się w sprzedaży jeszcze 150 podobnych nowych mieszkań.





