piaseczyński, Jazgarzewszczyzna, ul. Krzywa
piaseczyński, Jazgarzewszczyzna, ul. Krzywa
:format(jpg)/offers/offer/None/main_image/wille-przy-lesie_10536b.jpg)
:format(jpg)/offers/offer/None/main_image/wille-przy-lesie_10536b.jpg)
1 zdjęcie
Termin oddania
1 kw. 2027
Powierzchnie
142 - 143/m2
Przedział pokoi
6
Kondygnacje
3
Budynki
28
Stand. wykończenia
Standard deweloperski
Domy w inwestycji (6)
od 7 823 zł/m2
Sortuj
Stacja kolejowa - Miasto Las Zalesie - 1611 m
Przystanek Autobusowy - 419 m
Dojazd do centrum Warszawy: pokaż
W pobliżu 1 km od tej inwestycji znajdują się:
2 sklepy, 11 obiektów sportowych, 13 placówek edukacyjnych, 2 place zabaw
Zdjęcia z budowy
Zobacz na jakim etapie budowy jest ta inwestycja
Udogodnienia Inwestycji
Standard i bezpieczeństwo
- Standard deweloperski
Instalacje i energetyka
- pompa ciepła
Szczegóły inwestycji
Realizacja inwestycji:
Liczba domów:
Liczba kondygnacji:
Wysokość pomieszczeń:
Standard wykończenia
standard deweloperski
Rodzaj własności:
Garaże:
- miejsca postojowe naziemne
Przyroda:
Aktualna oferta
Dostępne domy:
Powierzchnie domów:
Ceny domów:
- kształtują się w zakresie od 1 119 000 do 1 139 000 zł
- koszt metra kwadratowego wynosi od 7 823 do 8 036 zł
Opis płatności:
Warunki rezerwacji:
Zabezpieczenie środków klienta:
Wysokość czynszu:
Opis inwestycji
Dom w sercu lasu
Wille przy Lesie to ekskluzywna inwestycja położona w malowniczej Jazgarzewszczyźnie. Tutaj, w sąsiedztwie lasu i parków, odnajdziesz spokój ducha. Osiedle składa się z 28 nowoczesnych, 6-pokojowych domów wolnostojących o powierzchni od 138 do 144 m². Zostało zaprojektowane z myślą o wymagających klientach — to miejsce dla tych, którzy naprawdę potrzebują przestrzeni. Przestronne, jasne wnętrza, prywatne ogrody sięgające nawet 336 m² oraz duże (do 16 m²) tarasy na dachu, z których roztacza się widok na otaczającą przyrodę, to definicja wygody i luksusu.
Wysokie pomieszczenia zapewniają niesamowite poczucie przestrzeni, a pompa ciepła oraz ekologiczne rozwiązania technologiczne odpowiadają na potrzeby współczesnych, świadomych ekologicznie klientów. Ogrzewanie podłogowe w całym domu gwarantuje komfort cieplny i minimalizuje zużycie energii.
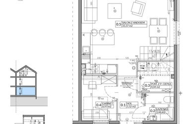
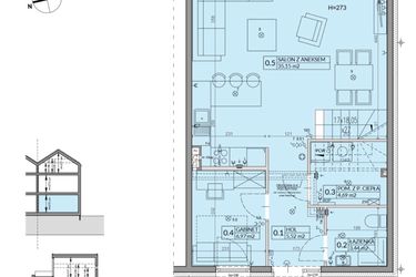
Każdy dom to trzy kondygnacje starannie zaprojektowanej przestrzeni, zapewniającej wygodę i prywatność. Na parterze dominuje przestronny salon połączony z aneksem kuchennym i jadalnią, który jest sercem domu, idealnym miejscem do wspólnych chwil i spotkań. Na tej kondygnacji znajduje się również kameralny gabinet do pracy w domu oraz łazienka dla gości. Piętro stanowi strefę prywatną — to łazienka i sypialnie, część z własną garderobą i drugą łazienką. Poddasze to wyjątkowa przestrzeń — doskonale doświetlony pokój z dużymi oknami i wyjściem na prywatny taras na dachu. To miejsce, które może pełnić funkcję drugiego salonu, pokoju gościnnego czy rekreacyjnego (np. siłowni).
Budynek charakteryzuje się prostymi, minimalistycznymi bryłami, które emanują elegancją i funkcjonalnością. Część z nich została pokryta białym tynkiem, podczas gdy inne wyróżniają się elewacją z okładziny w formie cegły klinkierowej, co nadaje im klasyczny, a jednocześnie nowoczesny charakter. Szarości dominują w oprawie budynków – od drzwi i balustrad na tarasie, przez okna, aż po pergole w strefie wejściowej. Dachy oraz część ścian na trzeciej kondygnacji również utrzymane są w odcieniu ciepłej szarości, co tworzy spójną i harmonijną kompozycję. Tarasy są zwrócone w różne strony, zapewniając mieszkańcom większą prywatność i intymność podczas rodzinnych posiłków czy wieczorów spędzonych w blasku zachodzącego słońca.
Wybierz się razem z nami na spacer 3D
https://youtu.be/39yRlnuTqxc?si=w_MN6rxOoARPVBZ-
Inwestycja Wille przy Lesie znajduje się w Jazgarzewszczyzna, ul. Krzywa (4.1 km od Warszawy), jest realizowana przez Novisa Development Sp. z o.o.
Inwestycja obecnie jest w trakcie budowy z planowanym na 1 kw. 2027 roku terminem oddania do użytkowania
Cały projekt składa się z 28 nowych domów.
Aktualnie w inwestycji Wille przy Lesie w sprzedaży jest 6 nowych domów o powierzchni od 142 do 143 metrów kwadratowych , w cenie od 1 119 000 zł.
Dla przyszłych mieszkańców Wille przy Lesie deweloper przewidział:
- miejsca postojowe naziemne
Lokalizacja inwestycji
Powiat piaseczyński znajduje się w środkowej części województwa mazowieckiego i należy do najbogatszych oraz najintensywniej rozwijających się powiatów w Polsce. W jego obrębie znajdują się miasta: Piaseczno, Konstancin-Jeziorna, Góra Kalwaria, Tarczyn oraz 223 wsie. Obszar o powierzchni 621 km2 przecinają liczne rzeki, m.in. Wisła, Jeziorka, Czarna, Utrata, a w ich dolinach występują łąki i torfowiska. Znaczne połacie terenu zajmują lasy, np. Chojnowskie, zaś pejzaż urozmaicają stawy, zalewy i wydmy. Warunki naturalne sprzyjają turystce i rekreacji, toteż w powiecie znajdują się liczne obiekty i kluby sportowe, tereny do jazdy konnej, kąpielisko Zalesie Górne oraz dobrze rozwinięta baza noclegowa i gastronomiczna. Dominuje niska zabudowa mieszkaniowa i usługowo-handlowa, a do obiektów zabytkowych należą m.in. Zamek w Czersku, wille i dwory. Ważne arterie to trasa E77 oraz drogi krajowe: nr 79 i nr 50. Do stolicy kursuje stąd 18 linii autobusowych warszawskiej komunikacji miejskiej.
Komunikacja
Jak wygląda komunikacja w okolicy inwestycji Wille przy Lesie?
Powiat piaseczyński posiada dogodne połączenie ze stolicą dzięki 18 liniom autobusowym warszawskiej komunikacji miejskiej. W obrębie powiatu kursują również autobusy PKS, busy i pociągi, zaś do ważniejszych arterii należą: trasa europejska E77 oraz drogi krajowe: nr 50 (Tranzytowa Obwodnica Warszawy) i nr 79 (Warszawa – Kraków – Bytom).
Przyszli mieszkańcy inwestycji Wille przy Lesie mogą korzystać z rozbudowanej sieci połączeń komunikacyjnych. W odległości 400 metrów od inwestycji Wille przy Lesie znajduje się najbliższy punkt komunikacyjny - Łoziska 01.
Edukacja
Czy w pobliżu inwestycji Wille przy Lesie znajdują się szkoły/przedszkola?
Mieszkańcy mogą korzystać z bogatej oferty edukacyjnej. W najbliższej okolicy inwestycji Wille przy Lesie znajduje się 13 placówek edukacyjnych. Najbliżej położone to: szkoła w odległości 300 m, przedszkole w odległości 400 m.
Sklepy i usługi
Jak daleko jest do najbliższego sklepu?
Na infrastrukturę handlowo-usługową inwestycji Wille przy Lesie składa się wiele punktów. Nieopodal, w odległości 800 m znajduje się Netto, w odległości 1000 m znajduje się Carrefour Express.
Sport
Bliskość terenów rekreacyjnych oraz obiektów sportowych to mocna strona tej lokalizacji. W najbliższej okolicy inwestycji Wille przy Lesie w odległości 200 m znajduje się boisko / kort, w odległości 500 m znajduje się basen.
Novisa Development Sp. z o.o.
Strona internetowa inwestycjiAdres biura sprzedaży:
ul. Ignacego Krasickiego 126, 05-500 Nowa WolaGodziny otwarcia biura sprzedaży:
- Poniedziałek: 10:00 - 18:00
- Wtorek: 10:00 - 18:00
- Środa: 10:00 - 18:00
- Czwartek: 10:00 - 18:00
- Piątek: 10:00 - 18:00
- Sobota: 10:00 - 15:00
Oferty, które mogą Cię zainteresować
Artykuły powiązane:
![[SONDA] Jakich promocji szukają klienci deweloperów?](https://thumbs.rynekpierwotny.pl/2fafa89d:9-_fZi6jnrIBq1G-4WqLMvPnymg/440x440/filters:upscale():format(jpg)/articles/gallery/image/8601/a005ae.jpg)
[SONDA] Jakich promocji szukają klienci deweloperów?
Deweloperzy kuszą promocjami, rabatami i różnymi „okazjami” dla osób szukających mieszkań. Które z nich jednak najbardziej przykuwają uwagę klientów? Największym powodzeniem wśród klientów cieszą się promocje związane przede wszystkim ceną. Są to wszelkiego rodzaju obniżki, ale także promocje w ramach...
26 czerwca 2017
Mikołaj Ostrowski
Polecane Lokalizacje
Inwestycje w pobliżu w Jazgarzewszczyzna
- Wille przy Lesie etap III (7 ofert)
- Wille przy Lesie etap II (1 oferta)
- Osiedle Kwiatów etap III (9 ofert)
- Osiedle Kwiatów etap II (1 oferta)
- Millenova (19 ofert)
- Lake Village etap V (14 ofert)
- Lake Village etap IV (1 oferta)
- Nove Piaseczno 2 etap E (7 ofert)
- Nove Piaseczno 2 etap G (11 ofert)
- Nove Piaseczno Grande (8 ofert)





