Dom na sprzedaż 4 pokoje o powierzchni 82,07 m² numer 32B
Rezerwacja
Inwestycja:
Nova Magdalenka 7 etap IV-VIDeweloper:
Novisa Development Sp. z o.o.
Inwestycja:
Nova Magdalenka 7 etap IV-VIDeweloper:
Novisa Development Sp. z o.o.pruszkowski, Słomin, ul. Janczewicka
pruszkowski, Słomin, ul. Janczewicka
Promocje
Nieruchomość bez wkładu własnego
Wybrane mieszkania w tej inwestycji możesz kupić bez wkładu własnego!
Skontaktuj się z naszym biurem sprzedaży i doradcą kredytowym.
Termin oddania
1 kw. 2027
Ilość pokoi
4 pokoje
Metraż
82,07 m²
Piętro
Parter
Strona świata
wschód, zachód, północ, południe
Powierzchnie dodatkowe
Ogródek
Wysokość pomieszczeń
od 260 do 280 cm wysokości
Ilość kondygnacji
2 poziomy
Oznaczenie oferty
32B

Raport o deweloperze
Poznaj dewelopera bliżej! Pobierz raport, w którym znajdziesz kluczowe informacje o firmie, jej doświadczeniu, nagrodach oraz aktualnych i zrealizowanych inwestycjach.
Budynek i otoczenie
Miejsca postojowe | |
|---|---|
Standard wykończenia | standard deweloperski |
Realizacja inwestycji | rozpoczęcie budowy w 2 kw. 2025 roku, planowane oddanie do użytkowania w 1 kw. 2027 roku |
Udogodnienia | informacja u dewelopera |
Przyroda | w okolicy inwestycji znajduje się park |
Charakterystyka energetyczna nieruchomości | informacja u dewelopera |
Rezerwacja i finanse
Rodzaj własności | Odrębna własność z własnością gruntu |
|---|---|
Wysokość czynszu | informacja u dewelopera |
Warunki rezerwacji | bezpłatna rezerwacja ustna na okres 3 dni roboczych |
Zabezpieczenie środków | Otwarty mieszkaniowy rachunek powierniczy |
Zdjęcia z budowy
Zobacz na jakim etapie budowy jest ta inwestycja
Lokalizacja inwestycji
Przystanek Autobusowy - 814 m
Dojazd do centrum Warszawy: pokaż
W pobliżu 1 km od tej inwestycji znajdują się:
1 sklep, 3 obiekty sportowe, 2 placówki edukacyjne, 3 place zabaw
Przeczytaj więcej o lokalizacji
Powiat pruszkowski to rejon usytuowany w środkowo-zachodniej części województwa mazowieckiego. Obszar powiatu o powierzchni ok. 246 km2 zajmują miasta: Pruszków, Piastów i Brwinów oraz gminy wiejskie: Michałowice, Nadarzyn i Raszyn. Zabudowa jest dość zróżnicowana: Brwinów to miasto-ogród z zabytkowymi willami i pałacami, w Pruszkowie występują domy jednorodzinne i niskie bloki, zaś w Piastowie – niskie bloki robotnicze i wielokondygnacyjne budynki. Tereny wiejskie to grunty orne i zabudowa jednorodzinna. Lasy, 3 rezerwaty przyrody oraz 11 parków tworzą zielony pejzaż okolicy. W gminach: Nadarzyn i Pruszków działa wiele zakładów produkcyjnych, w Piastowie rozwija się przemysł chemiczny, zaś w Jankach znajduje się, jedno z największych w Europie, centrów handlowych. Dojazd do Warszawy umożliwia komunikacja miejska kolejowa: SKM, Koleje Mazowieckie oraz WKD, a w przypadku Piastowa - strefowe linie autobusowe. Przez powiat przebiegają trasy: E67 i E77, droga ekspresowa S8, autostrada A2 oraz 3 drogi wojewódzkie.
Opis oferty
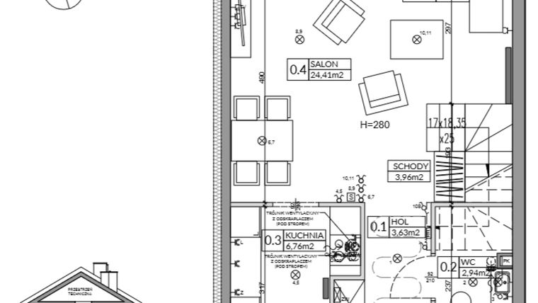
Ten dom to idealna opcja dla osób, które cenią prywatność – skrajne usytuowanie oznacza, że nie masz sąsiadów za ścianą z jednej strony. Ogród to przestrzeń do realizacji swoich marzeń o własnym warzywniaku, warsztacie czy altanie grillowej. Na parterze jest oddzielna kuchnia oraz a także WC i przestronny salon z aneksem kuchennym i jadalnią. Na piętrze znajdziesz łazienkę i trzy sypialnie – dla rodziców i dzieci - każda z nich zapewnia przestrzeń i intymność.
Nowy 4-pokojowy dom na sprzedaż o powierzchni 82,07 m² znajduje się w nowo budowanej inwestycji deweloperskiej Nova Magdalenka 7 etap IV-VI w Słominie, ul. Janczewicka (5.7 km od Warszawy).
Inwestycja jest realizowana przez Novisa Development Sp. z o.o.
Cała inwestycja składa się z 16 nowych domów.
Inwestycja Nova Magdalenka 7 etap IV-VI jest w trakcie budowy z planowanym na 1 kw. 2027 roku terminem oddania do użytkowania.
Nowy dom o oznaczeniu 32B , składa się z 2 kondygnacji bez poddasza, nie posiada podpiwniczenia. Wysokość pomieszczeń wynosi od 260 do 280 cm.
W domu numer 32B znajdują się się 4 pokoje.
Okna domu wychodzą na wschód, zachód, północ, południe.
Do domu przynależy ogródek o powierzchni 63 m².
Dla przyszłych mieszkańców Nova Magdalenka 7 etap IV-VI deweloper przewidział miejsca postojowe naziemne (42 miejsca)
Opis Inwestycji
Pow. dodatkowe
Nova Magdalenka 7 – dom w cenie mieszkania pod Warszawą
Nova Magdalenka 7 to kolejna edycja jednego z największych osiedli domów jednorodzinnych w Polsce – osiedla Nova Magdalenka w Słominie, położonego zaledwie 6 km od granicy Warszawy. To propozycja dla osób, które szukają domu z ogrodem pod Warszawą, ale nie chcą rezygnować z wygodnego dostępu do miasta. Inwestycja realizowana jest przez Novisa Development – lidera w budownictwie jednorodzinnym w Polsce i autora prawdopodobnie największego osiedla segmentów w aglomeracji warszawskiej.
Osiedle Nova Magdalenka 7 obejmuje 210 lokali w zabudowie szeregowej, bliźniaczej oraz wolnostojącej, o powierzchni od 65 do 125 m². Każdy dom został zaprojektowany z myślą o komforcie codziennego życia – z przemyślanym układem pomieszczeń i tradycyjnym podziałem stref, wysokością sufitów sięgającą 2,8 metra oraz dostępem do prywatnego ogrodu. Do każdego lokalu przynależą dwa miejsca postojowe naziemne, najczęściej zlokalizowane tuż przy wejściu, co znacząco podnosi wygodę użytkowania. To rozwiązanie stanowi realną alternatywę dla mieszkania w Warszawie – oferując więcej przestrzeni, prywatność i bezpośredni kontakt z zielenią w porównywalnym lub nawet niższym budżecie.
Lokalizacja inwestycji to jeden z jej największych atutów. Dzięki bliskości tras ekspresowych S7 i S8 mieszkańcy mogą dotrzeć do centrum Warszawy w około 25–30 minut, a jednocześnie zyskują wygodną bazę wypadową w kierunku południowej i zachodniej Polski. W pobliżu znajduje się także przystanek komunikacji miejskiej, który umożliwia szybki dojazd do węzła przesiadkowego P&R Al. Krakowska. To miejsce, które łączy spokojne życie poza miastem z dobrą komunikacją i dostępem do infrastruktury.
Nova Magdalenka 7 to spójna koncepcja nowoczesnego miasteczka. Na jego terenie i w najbliższym sąsiedztwie powstaje pełna infrastruktura, która pozwala mieszkańcom zaspokoić codzienne potrzeby bez konieczności dojazdu do Warszawy. Już we wrześniu 2026 roku rozpocznie działalność przedszkole Montessori zlokalizowane na osiedlu. Tuż obok powstaje park z placem zabaw i starannie zaprojektowaną zielenią, która stworzy przestrzeń do odpoczynku i spacerów. W bezpośrednim sąsiedztwie realizowany jest również Park Handlowy Nova Magdalenka, w którym znajdą się m.in. market, siłownia, piekarnia, barber, fryzjer czy pralnia, a część lokali usługowych pozostaje jeszcze otwarta na kolejne funkcje. Dodatkowym udogodnieniem jest bliskość sklepu Żabka oraz automatu paczkowego.
Architektura osiedla jest subtelna i nowoczesna, z dbałością o detale, które nadają całości eleganckiego charakteru. Charakterystyczne ryflowania przy oknach czy stolarka w kolorze dębu sprawiają, że zabudowa jest spójna, ale jednocześnie ma elementy wyróżniające. Duży nacisk położono również na części wspólne i zieleń – projektowane przez doświadczonego architekta krajobrazu, tak aby tworzyły funkcjonalną i przyjazną przestrzeń dla mieszkańców.
Novisa Development realizuje inwestycję w oparciu o autorski Zintegrowany Proces Budowy, który został wypracowany na bazie ponad 25 lat doświadczenia oraz tysięcy rozmów z klientami. Wszystkie etapy inwestycji są powtarzalne, dopracowane i realizowane przez własne zespoły – od projektu, przez wykonawstwo, aż po sprzedaż i obsługę klienta. Firma działa w modelu w pełni wewnętrznym, co przekłada się na wysoką jakość komunikacji i pełną kontrolę nad procesem. Po zakupie mieszkańcy mogą liczyć na realne wsparcie – deweloper posiada własne ekipy serwisowe i nie przerzuca odpowiedzialności na zewnętrznych wykonawców.
Istnieje możliwość zakupu domu z wykorzystaniem Rodzinnego Kredytu Mieszkaniowego. Dzięki temu rozwiązaniu wkład własny może wynosić około 30 000 zł, a jego brakująca część może zostać objęta gwarancją BGK. Program przewiduje również możliwość częściowej spłaty kredytu przez państwo w przypadku powiększenia rodziny, co w praktyce może oznaczać nawet 60 000 zł wsparcia. To realna szansa na rozpoczęcie życia we własnym, przestronnym domu z ogrodem bez konieczności angażowania dużych oszczędności na start.
Nova Magdalenka 7 to jedno z najpopularniejszych osiedli segmentów z ogródkami pod Warszawą – projekt, który łączy sprawdzoną jakość wykonania, funkcjonalność i rozwijającą się infrastrukturę. Jeśli chcesz sprawdzić, jak wygląda zakup konkretnego domu i dopasowanie finansowania do Twojej sytuacji, zostaw kontakt – przeprowadzimy Cię przez cały proces krok po kroku.
Dom znajduje się w inwestycji Nova Magdalenka 7 etap IV-VI, w której znajduje się w sprzedaży jeszcze 17 podobnych nowych domów.
Novisa Development Sp. z o.o.
Strona internetowa inwestycjiAdres biura sprzedaży:
ul. Brzeziny 6, 03-256 WarszawaGodziny otwarcia biura sprzedaży:
- Poniedziałek: 10:00 - 18:00
- Wtorek: 10:00 - 18:00
- Środa: 10:00 - 18:00
- Czwartek: 10:00 - 18:00
- Piątek: 10:00 - 18:00
- Sobota: 10:00 - 15:00
Artykuły powiązane:
![[SONDA] Jakich promocji szukają klienci deweloperów?](https://thumbs.rynekpierwotny.pl/2fafa89d:9-_fZi6jnrIBq1G-4WqLMvPnymg/440x440/filters:upscale():format(jpg)/articles/gallery/image/8601/a005ae.jpg)
Deweloperzy zdradzają, jakimi promocjami interesują się ich klienci
15 maja 2026
Mikołaj Ostrowski





