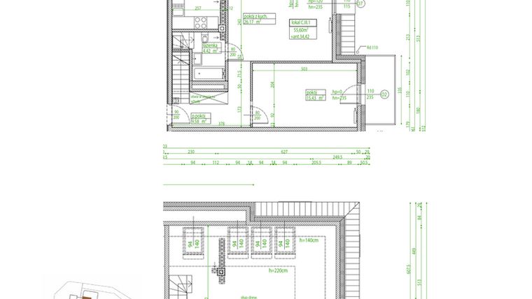
Mieszkanie na sprzedaż 4 pokoje o powierzchni 87,07 m² numer C.III.1
Inwestycja:
Villa RosenthalDeweloper:
INTER-ES Deweloper
Inwestycja:
Villa RosenthalDeweloper:
INTER-ES DeweloperWrocław, Psie Pole, Różanka, ul. Osobowicka 45
Wrocław, Psie Pole, Różanka, ul. Osobowicka 45
Termin oddania
Gotowe
Ilość pokoi
4 pokoje
Metraż
87,07 m²
Piętro
2 piętro
Powierzchnie dodatkowe
Balkon, Loggia, Taras
Wysokość pomieszczeń
od 260 do 280 cm wysokości
Ilość poziomów
2 poziomy
Oznaczenie oferty
C.III.1

Raport o deweloperze
Poznaj dewelopera bliżej! Pobierz raport, w którym znajdziesz kluczowe informacje o firmie, jej doświadczeniu, nagrodach oraz aktualnych i zrealizowanych inwestycjach.
Budynek i otoczenie
Miejsca postojowe | |
|---|---|
Komórki lokatorskie | dostępne |
Standard wykończenia | standard deweloperski |
Realizacja inwestycji | rozpoczęcie budowy w 2 kw. 2023 roku, inwestycja została oddana do użytkowania w 1 kw. 2026 roku |
Udogodnienia | plac zabaw, rowerownia, wózkarnia, monitoring |
Przyroda | w okolicy inwestycji znajduje się park |
Charakterystyka energetyczna nieruchomości | informacja u dewelopera |
Rezerwacja i finanse
Rodzaj własności | Odrębna własność z własnością gruntu |
|---|---|
Wysokość czynszu | informacja u dewelopera |
Warunki rezerwacji | Informacja u dewelopera |
Zabezpieczenie środków | Informacja u dewelopera |
Zdjęcia z budowy
Zobacz na jakim etapie budowy jest ta inwestycja
Lokalizacja inwestycji
Stacja kolejowa - Wrocław Różanka - 1142 m
Przystanek Tramwajowy - 58 m
Przystanek Autobusowy - 58 m
Dojazd do centrum: pokaż
W pobliżu 1 km od tej inwestycji znajdują się:
13 kawiarni i restauracji, 21 sklepów, 24 obiekty sportowe, 5 placówek medycznych, 21 placówek edukacyjnych, 15 placów zabaw
Przeczytaj więcej o lokalizacji
Nowo realizowana inwestycja zlokalizowana w cichej i spokojnej części Wrocławia w bezpośrednim sąsiedztwie Parku oraz rzeki Odry gwarantuje doskonałe warunki mieszkania oraz wypoczynku. Dodatkowym atutem jest bliska lokalizacja ścisłego centrum Wrocławia. W odległości około 1 km od inwestycji znajduje się Obwodnica Śródmiejska a niecałe 4 km Autostradowa Obwodnica Wrocławia co zapewnia doskonałą i szybką możliwość przemieszczenia się w dowolną część naszego miasta.
Psie Pole to wrocławskie osiedle rozciągające się w północnej części miasta. Zamieszkuje je ponad 93 tysiące mieszkańców, a jego obszar liczy prawie 100 km2. Zabudowę tworzą liczne osiedla domów jednorodzinnych i willi oraz osiedla mieszkaniowe. W południowej części osiedla Psie Pole znajduje się duży zespół przemysłowy. Na obrzeżach zaś osiedle otaczają tereny zielone w tym lasy: rędziński, osobowicki czy sołtysowicki. W centralnej części znajduje się siedziba Wyższej Szkoły Oficerskiej Wojsk Lądowych. Zachodnią część Psiego Pola ze wschodnią łączy największa arteria tego osiedla: ulica Jana Kasprowicza. Przebiega tędy również odcinek obwodnicy śródmiejskiej oraz droga E-67. Osiedle jest dobrze skomunikowane dzięki dogodnym połączeniom autobusowym i tramwajowym (w szczególności centrum z innymi ważnymi punktami Wrocławia).
Opis oferty
Nowe 4-pokojowe mieszkanie na sprzedaż o powierzchni 87,07 m² znajduje się w nowo budowanej inwestycji deweloperskiej Villa Rosenthal na Różance, ul. Osobowicka 45 (3.2 km od centrum Wrocławia).
Inwestycja jest realizowana przez INTER-ES Deweloper.
Cała inwestycja składa się z 4 budynków, w których łącznie znajdują się 52 nowe mieszkania.
Na sprzedaż pozostają 24 oferty o powierzchni od 44 do 90 m².
W budynkach są 4 kondygnacje naziemne oraz 1 kondygnacja podziemna.
Inwestycja Villa Rosenthal została wybudowana i oddana do użytkowania w 1 kw. 2026 roku.
Nowe mieszkanie o oznaczeniu C.III.1 znajduje się na 2 piętrze i jest 2-poziomowe. Pomieszczenia mają od 260 do 280 centymetrów wysokości. W mieszkaniu znajdują się 4 pokoje.
Dla przyszłych mieszkańców Villa Rosenthal deweloper przewidział miejsca postojowe podziemne, miejsca postojowe naziemne.
Dzięki temu przyszli właściciele nie będą musieli poszukiwać wolnej przestrzeni parkingowej. Dodatkowo, miejsce postojowe w garażu podziemnym zabezpiecza przed niekorzystnymi warunkami atmosferycznymi.
Opis Inwestycji
Okazyjna cena
Pow. dodatkowe
Mamy ogromną przyjemność ogłosić, że długi okres oczekiwania dobiegł końca i jesteśmy gotowi podzielić się z Wami wyjątkową inwestycją mieszkaniową we Wrocławiu! Jest to moment, na który wielu z Was czekało, i chcielibyśmy podziękować Wam za cierpliwość i wytrwałość.
Nasza nowa inwestycja mieszkaniowa to prawdziwa perełka na mapie Wrocławia. Położona w prestiżowej dzielnicy, z doskonałym dostępem do wszystkich ważnych udogodnień, ta inwestycja z pewnością spełni Wasze marzenia o wymarzonym mieszkaniu.
W centrum Wrocławia oraz malowniczych okolicach parku oraz rzeki Odry powstaje kameralne osiedle Villa Rosenthal. Lokalizacja inwestycji łączy cechy mieszkania w spokojnej, zielonej okolicy z dostępem do pełnej infrastruktury miejskiej. Budowa inwestycji rozpoczęła się w II kwartale 2023 roku, a zakończenie planowane jest na I kwartał 2026 r.
Nowoczesna architektura inspirowana willową zabudową wyróżnia się prostymi bryłami. Duże przeszklenia, jasna elewacja z subtelnymi zdobieniami drewnianymi wpływają na atrakcyjność inwestycji. Zwarta roślinność otaczająca osiedle stworzy wyjątkowo przyjazny, kameralny klimat, a o bezpieczeństwo mieszkańców zadba system monitoringu.
W ofercie dostępne są mieszkania zlokalizowane w niskiej dwupiętrowej zabudowie, łącznie na terenie inwestycji znajdują się cztery budynki. Powierzchnie rozpoczynają się od 30 metrów kwadratowych kończąc na dwupoziomowych 90-cio metrowych na ostatniej kondygnacji wraz z antresolą. Przestrzeń została zaprojektowana z myślą o rodzinach, pozostawiając możliwość indywidualnej aranżacji wnętrz.
Wszystkie mieszkania zlokalizowane na parterze będą dysponowały bezpośrednim dostępem do terenów zielonych (ogródków) przeznaczonych do wyłącznego korzystania.
Każdy budynek posiada jedną klatkę schodową, która prowadzi bezpośrednio do garażu podziemnego gdzie zlokalizowane będą miejsca parkingowe, komórki lokatorskie oraz rowerownia i wózkowania. Budynki nie posiadają wind, będzie ona zlokalizowana na zewnątrz i umożliwiała osobom niepełnosprawnym oraz korzystającym z wózków dla dzieci dostęp do garażu podziemnego.
Villa Rosenthal powstaje w cichej, zielonej części Wrocławia.
Lokalizacja w dzielnicy Różanka sprzyja aktywnemu wypoczynkowi i rekreacji. Miłośnicy joggingu i wycieczek rowerowych odkryją tu przestrzeń do rekreacji, a spragnieni równowagi i odpoczynku – odetchną od gwaru miasta. Stąd niedaleko jest do Śródmieścia, dojazd tramwajem do rynku zajmuje niecałe 10 minut.
W bezpośrednim sąsiedztwie inwestycji – około 25 m - znajduje się przystanek tramwajowy i autobusowy obsługujący linie 14, 129, 142 oraz K.
Mieszkanie znajduje się w inwestycji Villa Rosenthal, w której znajduje się w sprzedaży jeszcze 11 podobnych nowych mieszkań.
INTER-ES Deweloper
Strona internetowa inwestycjiAdres biura sprzedaży:
ul. Jedności Narodowej 194, 50-302 WrocławGodziny otwarcia biura sprzedaży:
- Poniedziałek: 08:00 - 17:00
- Wtorek: 08:00 - 17:00
- Środa: 08:00 - 17:00
- Czwartek: 08:00 - 17:00
- Piątek: 08:00 - 17:00





