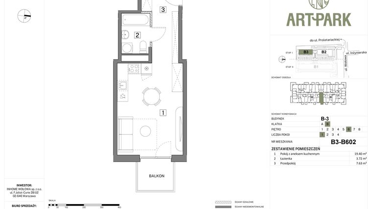
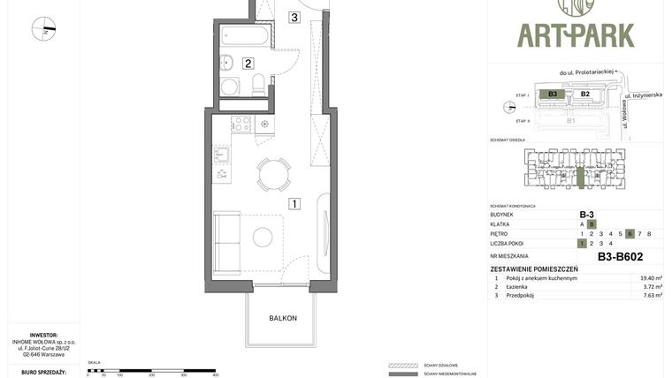
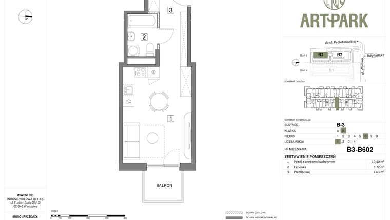
Mieszkanie na sprzedaż 1 pokój o powierzchni 30,75 m² numer B.3.B602
Inwestycja:
Inhome Osiedle ArtPark etap IDeweloper:
Inhome Deweloper
Inwestycja:
Inhome Osiedle ArtPark etap IDeweloper:
Inhome DeweloperŁódź, Polesie, Stare Polesie, ul. Wołowa
Łódź, Polesie, Stare Polesie, ul. Wołowa
Termin oddania
1 kw. 2027
Ilość pokoi
1 pokój
Metraż
30,75 m²
Piętro
6 piętro
Wysokość pomieszczeń
od 260 do 280 cm wysokości
Ilość poziomów
1 poziom
Oznaczenie oferty
B.3.B602

Raport o deweloperze
Poznaj dewelopera bliżej! Pobierz raport, w którym znajdziesz kluczowe informacje o firmie, jej doświadczeniu, nagrodach oraz aktualnych i zrealizowanych inwestycjach.
Budynek i otoczenie
Miejsca postojowe | |
|---|---|
Komórki lokatorskie | dostępne |
Standard wykończenia | standard deweloperski Ogrzewanie miejskie |
Realizacja inwestycji | rozpoczęcie budowy w 1 kw. 2025 roku, planowane oddanie do użytkowania w 1 kw. 2027 roku |
Udogodnienia | plac zabaw, monitoring, usługi w budynku, winda, paczkomat |
Przyroda | informacja u dewelopera |
Charakterystyka energetyczna nieruchomości | informacja u dewelopera |
Rezerwacja i finanse
Rodzaj własności | Odrębna własność z własnością gruntu |
|---|---|
Wysokość czynszu | informacja u dewelopera |
Warunki rezerwacji | umowa rezerwacyjna |
Zabezpieczenie środków | Otwarty mieszkaniowy rachunek powierniczy |
Zdjęcia z budowy
Zobacz na jakim etapie budowy jest ta inwestycja
Lokalizacja inwestycji
Stacja kolejowa - Łódź Kaliska - 1314 m
Przystanek Tramwajowy - 478 m
Przystanek Autobusowy - 120 m
Dojazd do centrum: pokaż
W pobliżu 1 km od tej inwestycji znajdują się:
34 kawiarnie i restauracje, 23 sklepy, 28 obiektów sportowych, 8 placówek medycznych, 18 placówek edukacyjnych, 14 placów zabaw
Przeczytaj więcej o lokalizacji
ArtPark znajduje się w doskonałej, centralnej lokalizacji w Łodzi przy ul. Wołowej, zaledwie 300 metrów od Parku Poniatowskiego pomiędzy dwoma popularnymi centrami handlowymi – Pasażem Łódzkim i Nową Sukcesją. Działka ArtPark tworzy wewnętrzną enklawę, oddzieloną od ulic, co pozwala osiągnąć efekt kameralności i spokoju.
Łódź Polesie to dzielnica Łodzi o powierzchni 46 km. kw., w której mieszka ok. 140 tys. osób. W centralnym obszarze dzielnicy położony jest Park im. J. Piłsudskiego, dworzec Łódź Kaliska i droga E75. Dzielnicę okala od wschodu rzeka Ner, od południa port lotniczy im. W. Reymonta a od północy ul. Szczecińska i Rąbieńska. Polesie dzieli się na osiedla Złotno, Zdrowie-Mania, Karolew-Retkinia Wschód, Osiedla im. Montwiłła-Mireckiego, Retkinia Zachód, Lublinek, Stare Polesie i Koziny. O jej przyjaznym mieszkańcom charakterze świadczy położony tu największy łódzki park, Ogród Botaniczny, las Lublinek i 5 supermarketów i liczne punkty usługowe. Do tego dochodzi ciekawa oferta szkół wyższych z kampusem Politechniki Łódzkiej na czele.
Opis oferty
Nowe 1-pokojowe mieszkanie na sprzedaż o powierzchni 30,75 m² znajduje się w nowo budowanej inwestycji deweloperskiej Inhome Osiedle ArtPark etap I w Starym Polesiu, ul. Wołowa (1.5 km od centrum Łodzi).
Inwestycja jest realizowana przez Inhome Deweloper.
Cała inwestycja składa się z 2 budynków, w których łącznie znajduje się 210 nowych mieszkań.
Na sprzedaż pozostają 154 oferty o powierzchni od 29 do 138 m².
W budynkach jest 9 kondygnacji naziemnych oraz 1 kondygnacja podziemna.
Inwestycja Inhome Osiedle ArtPark etap I jest w trakcie budowy z planowanym na 1 kw. 2027 roku terminem oddania do użytkowania.
Nowe mieszkanie o oznaczeniu B.3.B602 znajduje się na 6 piętrze i jest 1-poziomowe. Pomieszczenia mają od 260 do 280 centymetrów wysokości. W mieszkaniu znajduje się 1 pokój.
Dla przyszłych mieszkańców Inhome Osiedle ArtPark etap I deweloper przewidział miejsca postojowe podziemne, miejsca postojowe naziemne.
Dzięki temu przyszli właściciele nie będą musieli poszukiwać wolnej przestrzeni parkingowej. Dodatkowo, miejsce postojowe w garażu podziemnym zabezpiecza przed niekorzystnymi warunkami atmosferycznymi.
Opis Inwestycji
Okazyjna cena
Tereny zielone
ArtPark – nowe mieszkania tuż przy Parku Poniatowskiego
ArtPark to wyjątkowa inwestycja mieszkaniowa powstała z inspiracji naturą, sztuką i miejskim komfortem. Bliskość ponad 40-hektarowego Parku Poniatowskiego stworzyła idealne warunki do zaprojektowania miejsca, które łączy spokój zielonej enklawy z energią miasta. Zaledwie 2 minuty spaceru zadrzewioną ulicą Inżynierską dzielą mieszkańców od terenów dawnego „Ogrodu przy ulicy Pańskiej”.
Inwestycja obejmuje trzy nowoczesne, wielofunkcyjne budynki, usytuowane na obszarze ponad 1,6 hektara. Układ działki tworzy kameralną, wewnętrzną przestrzeń, oddzieloną od ruchliwych ulic, co zapewnia ciszę, prywatność i poczucie bezpieczeństwa. ArtPark to także konsekwentna realizacja idei integracji architektury z elementami sztuki – murale na elewacjach oraz rzeźby na terenie osiedla nadają mu unikalny charakter.
Komfortowe mieszkania zaprojektowane z myślą o codziennym życiu
Projektując mieszkania w ArtPark, postawiono na funkcjonalność, światło i przestrzeń. Duże przeszklenia, odpowiednie proporcje pomieszczeń oraz przestronne balkony i tarasy zapewniają wysoki komfort użytkowania. W ofercie znajdują się mieszkania o powierzchniach od 29 m² do 138 m² – od kompaktowych lokali jednopokojowych po przestronne, czteropokojowe mieszkania idealne dla rodzin.
Wszystkie budynki wyposażone są w windy, a pod nimi znajduje się hala garażowa, co gwarantuje wygodę na co dzień. Na terenie osiedla zaplanowano plac zabaw, strefę jogi i relaksu, a także dużą ilość zieleni z zachowanymi, wiekowymi drzewami, tworzącymi naturalną przestrzeń wypoczynku.
Dodatkowym atutem inwestycji są lokale usługowe, paczkomat oraz przedszkole, które znacząco ułatwia codzienne życie rodzinom z dziećmi.
Tuż przy parku, blisko centrum
ArtPark zlokalizowany jest przy ul. Wołowej, w sercu Łodzi, zaledwie 300 m od Parku Poniatowskiego, bardzo blisko centrum miasta. W bezpośrednim sąsiedztwie osiedla znajduje się pełna infrastruktura miejska, zapewniająca wygodę i oszczędność czasu.
Najważniejsze udogodnienia w okolicy:
Przystanek komunikacji miejskiej – 100 m
Centrum miasta – ok. 4 min autem, 18 min spacerem, 5 min rowerem
Park Poniatowskiego – 300 m
Szkoła podstawowa – 350 m
Supermarket – 300 m
Siłownia – 450 m
Centrum handlowo-rozrywkowe – 700 m
Kino – 700 km
Restauracje – 400 m
Figloraj dla dzieci – 700 m
Uczelnia – 990 m
Basen - 900 m
ArtPark to idealne miejsce dla osób, które cenią bliskość natury, miejskie udogodnienia i wysoką jakość architektury. To przestrzeń, w której komfort codziennego życia spotyka się ze sztuką, zielenią i spokojem – bez rezygnacji z centrum miasta.
Mieszkanie znajduje się w inwestycji Inhome Osiedle ArtPark etap I, w której znajduje się w sprzedaży jeszcze 14 podobnych nowych mieszkań.





