Mieszkanie na sprzedaż 1 pokój o powierzchni 41,21 m² numer 4.M.06
Inwestycja:
Incepti Gaj 2Deweloper:
Incepti Development S.A.
Inwestycja:
Incepti Gaj 2Deweloper:
Incepti Development S.A.Wrocław, Krzyki, Gaj, ul. Żegiestowska
Wrocław, Krzyki, Gaj, ul. Żegiestowska
Termin oddania
3 kw. 2027
Ilość pokoi
1 pokój
Metraż
41,21 m²
Piętro
3 piętro
Strona świata
wschód
Powierzchnie dodatkowe
Balkon
Kuchnia
otwarta kuchnia
Wysokość pomieszczeń
od 260 do 280 cm wysokości
Ilość poziomów
1 poziom
Oznaczenie oferty
4.M.06

Raport o deweloperze
Poznaj dewelopera bliżej! Pobierz raport, w którym znajdziesz kluczowe informacje o firmie, jej doświadczeniu, nagrodach oraz aktualnych i zrealizowanych inwestycjach.
Budynek i otoczenie
Miejsca postojowe | |
|---|---|
Standard wykończenia | standard deweloperski |
Realizacja inwestycji | oddanie do użytkowania w 3 kw. 2027 roku |
Udogodnienia | usługi w budynku, winda, plac zabaw, inteligentny dom |
Przyroda | w okolicy inwestycji znajduje się park |
Charakterystyka energetyczna nieruchomości | informacja u dewelopera |
Rezerwacja i finanse
Rodzaj własności | informacja u dewelopera |
|---|---|
Wysokość czynszu | informacja u dewelopera |
Warunki rezerwacji | Informacja u dewelopera |
Zabezpieczenie środków | Informacja u dewelopera |
Zdjęcia z budowy
Zobacz na jakim etapie budowy jest ta inwestycja
Lokalizacja inwestycji
Stacja kolejowa - Wrocław Wojszyce - 1457 m
Przystanek Tramwajowy - 533 m
Przystanek Autobusowy - 176 m
Dojazd do centrum: pokaż
W pobliżu 1 km od tej inwestycji znajdują się:
62 kawiarnie i restauracje, 70 sklepów, 67 obiektów sportowych, 38 placówek medycznych, 60 placówek edukacyjnych, 75 placów zabaw
Przeczytaj więcej o lokalizacji
Krzyki to dawna dzielnica Wrocławia, znajduje się w południowej części miasta. Zajmuje ponad 54 km2 a na jej terenie mieszka prawie 170 tysięcy osób. Na zabudowę dzielnicy składają się zarówno duże osiedla mieszkaniowe, jak i domy jednorodzinne. Został tu wybudowany także najwyższy budynek w Polsce – Sky Tower. Znajduje się tu dużo zabytkowych willi i inne zabytki takie jak Wieża Ciśnień czy Stary Cmentarz Żydowski. Na Krzykach znajduje się Wrocławski Uniwersytet Ekonomiczny a także ponad 100 szkół elementarnych. Największym centrum handlowym jest Wroclavia o powierzchni 71 000 m2. W południowej części Krzyków znajduje się tor wyścigów konnych Partynice oraz Wrocławski Tatr Pantomimy. Dzielnica posiada połączenia autobusowe i tramwajowe – znajduje się tu 5 pętli tramwajowych. Dwie główne ulice Krzyków, które łączą je z centrum miasta to Powstańców Śląskich oraz Ślężna. Znajduje się tu także Wrocławski Dworzec Główny.
Opis oferty
Nowe 1-pokojowe mieszkanie na sprzedaż o powierzchni 41,21 m² znajduje się w nowo wybudowanej inwestycji deweloperskiej Incepti Gaj 2 na Gaju, ul. Żegiestowska (2.9 km od centrum Wrocławia).
Inwestycja została zrealizowana przez Incepti Development S.A.
Cała inwestycja składa się z 1 budynku, w którym łącznie znajdują się 134 nowe mieszkania.
Na sprzedaż pozostają 94 oferty o powierzchni od 28 do 175 m².
W budynku jest od 2 do 7 kondygnacji naziemnych oraz 1 kondygnacja podziemna.
Inwestycja Incepti Gaj 2 jest w trakcie budowy z planowanym na 3 kw. 2027 roku terminem oddania do użytkowania.
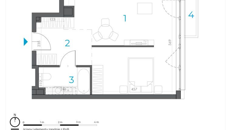
Nowe mieszkanie o oznaczeniu 4.M.06 znajduje się na 3 piętrze i jest 1-poziomowe. Pomieszczenia mają od 260 do 280 centymetrów wysokości. W mieszkaniu znajduje się 1 pokój.
Okna w mieszkaniu wychodzą na wschód.
Wschodnia orientacja zapewnia dostęp do łagodnego porannego światła, idealnego dla rozpoczęcia dnia pełnego energii. Wnętrza pozostają jasne, ale nieprzegrzane, co sprzyja utrzymaniu komfortowej temperatury. Przebywanie w pomieszczeniu z oknami na wschód inspiruje do działania i pozytywnie wpływa na poranny rytuał.
Dla przyszłych mieszkańców Incepti Gaj 2 deweloper przewidział miejsca postojowe podziemne.
Dzięki temu przyszli właściciele nie będą musieli poszukiwać wolnej przestrzeni parkingowej. Dodatkowo, miejsce postojowe w garażu podziemnym zabezpiecza przed niekorzystnymi warunkami atmosferycznymi.
Opis Inwestycji
Tereny zielone
Pow. dodatkowe
Tu zaczyna się Twój Wrocław
Incepti Gaj 2 to nowoczesna inwestycja mieszkaniowa, która powstaje przy ul. Żegiestowskiej 5 we Wrocławiu, w prestiżowej dzielnicy Krzyki. Projekt obejmuje nowoczesny, siedmiokondygnacyjny budynek charakteryzujący się kaskadową bryłą, został zaprojektowany z myślą o komforcie i funkcjonalności. W inwestycji zaplanowano 134 mieszkania o zróżnicowanych metrażach, dopasowanych do potrzeb singli, par i rodzin, a także lokale biurowe przeznaczone dla działalności gospodarczej. Do dyspozycji mieszkańców przewidziano podziemny parking, trzy windy zapewniające wygodę na co dzień oraz plac zabaw. Incepti Gaj 2 to idealne połączenie nowoczesnej architektury, miejskiego stylu życia i komfortu codziennego użytkowania w doskonałej lokalizacji, jaką jest wrocławskie osiedle Gaj.
Nowocześnie. Blisko. Komfortowo.
Incepti Gaj 2 to nowoczesna inwestycja mieszkaniowa zlokalizowana przy ul. Żegiestowskiej 5, w spokojnej, zielonej i doskonale skomunikowanej części wrocławskiego osiedla Gaj. Siedmiokondygnacyjny budynek o kaskadowej bryle wyróżnia się współczesną architekturą i funkcjonalnymi układami mieszkań od kompaktowych kawalerek po przestronne lokale dwupokojowe i zróżnicowane powierzchniowo mieszkania 4 i 5 pokojowe, aż do bardzo dużych mieszkań wielopokojowych. To idealny wybór zarówno dla osób poszukujących pierwszego własnego mieszkania, jak i dla inwestorów planujących zakup pod wynajem. Duża część inwestycji to mieszkania 3- i 4-pokojowe skierowane do rodzin lub osób szukających większych mieszkań z kilkoma sypialniami, które w przyszłości staną się pokojami dla dzieci lub miejscem pracy z domu.
Lokalizacja inwestycji zapewnia pełen komfort codziennego życia. W sąsiedztwie znajdują się przystanki komunikacji miejskiej, liczne sklepy, punkty usługowe, szkoły oraz liczne zielone tereny rekreacyjne w tym park Skowroni, Park Andersa oraz Park Południowy.
Incepti Gaj 2 to inwestycja, która łączy nowoczesny styl życia z komfortem i funkcjonalnością, tworząc doskonałe miejsce do zamieszkania oraz inwestowania.
Mieszkanie znajduje się w inwestycji Incepti Gaj 2, w której znajduje się w sprzedaży jeszcze 14 podobnych nowych mieszkań.
Incepti Development S.A.
Strona internetowa inwestycjiAdres biura sprzedaży:
ul. Żegiestowska 7A 50-542 WrocławGodziny otwarcia biura sprzedaży:
- Poniedziałek: 09:00 - 17:00
- Wtorek: 09:00 - 17:00
- Środa: 09:00 - 17:00
- Czwartek: 09:00 - 17:00
- Piątek: 09:00 - 17:00
Artykuły powiązane:
:format(jpg)/articles/gallery/image/9813/e54c4c.jpg)
Czy warto zamieszkać na peryferiach Wrocławia?
Jakie są zalety mieszkania na peryferiach? Sprawdźcie ofertę mieszkań od deweloperów na peryferiach Wrocławia! We Wrocławiu ceny nowych mieszkań w samym centrum lub stosunkowo blisko Rynku potrafią sięgać nawet 8 tys. złotych za metr kwadratowy. Średnia cena na rynku deweloperskim...
30 października 2019
Bartosz Moch





