Mieszkanie na sprzedaż 2 pokoje o powierzchni 43,84 m² numer 20
Inwestycja:
Osiedle OdNowa K5
Inwestycja:
Osiedle OdNowa K5Kwidzyn, ul. Toruńska
Kwidzyn, ul. Toruńska
Termin oddania
4 kw. 2026
Ilość pokoi
2 pokoje
Metraż
43,84 m²
Piętro
Parter
Powierzchnie dodatkowe
Balkon
Kuchnia
otwarta kuchnia
Wysokość pomieszczeń
od 260 do 280 cm wysokości
Ilość poziomów
1 poziom
Oznaczenie oferty
20

Raport o deweloperze
Poznaj dewelopera bliżej! Pobierz raport, w którym znajdziesz kluczowe informacje o firmie, jej doświadczeniu, nagrodach oraz aktualnych i zrealizowanych inwestycjach.
Budynek i otoczenie
Miejsca postojowe | |
|---|---|
Komórki lokatorskie | dostępne |
Standard wykończenia | standard deweloperski |
Realizacja inwestycji | rozpoczęcie budowy w 2 kw. 2025 roku, planowane oddanie do użytkowania w 4 kw. 2026 roku |
Udogodnienia | plac zabaw, winda, wózkarnia |
Przyroda | informacja u dewelopera |
Charakterystyka energetyczna nieruchomości | informacja u dewelopera |
Rezerwacja i finanse
Rodzaj własności | Odrębna własność z własnością gruntu |
|---|---|
Wysokość czynszu | informacja u dewelopera |
Warunki rezerwacji | Informacja u dewelopera |
Zabezpieczenie środków | Informacja u dewelopera |
Zdjęcia z budowy
Zobacz na jakim etapie budowy jest ta inwestycja
Lokalizacja inwestycji
Stacja kolejowa - Kwidzyn - 1135 m
Przystanek Autobusowy - 107 m
Dojazd do centrum Grudziądza: pokaż
W pobliżu 1 km od tej inwestycji znajdują się:
5 kawiarni i restauracji, 9 sklepów, 23 obiekty sportowe, 6 placówek medycznych, 8 placówek edukacyjnych, 6 placów zabaw
Przeczytaj więcej o lokalizacji
Kwidzyn to miasto położone w województwie pomorskim. Leży nad rzeką Liwą, prawym dopływem Nogatu. Zajmuje 21,54 km2 powierzchni, którą zamieszkuje ok. 22 tysięcy osób. Występuje tutaj podział na szesnaście dzielnic, a do jednych z popularniejszych należą: Stare Miasto, Radosna, Zacisze, Bema. Miasto usytuowane jest w sąsiedztwie kompleksu leśnego Miłosna, na który składają się atrakcyjne tereny do uprawiania turystyki pieszej, rowerowej, a także konnej. Ponadto na terenie lasów znajduje się rezerwat przyrody “Kwidzyńskie Ostnice”. Dodatkowo Kwidzyn jest ważnym ośrodkiem życia kulturowego oraz rozrywkowego w regionie. Na jego terenie odbywają się regularnie różnego rodzaju wydarzenia m.in. koncerty, festyny, imprezy sportowo-rekreacyjne oraz imprezy plenerowe w okresie wakacyjnym. Do dyspozycji mieszkańców są liczne biblioteki, kino, jak i również scena teatralna. Kwidzyn zapewnia dostęp do ośrodków sportowo-rekreacyjnych takich, jak: hale sportowe, stadion, czy kryty basen. Na turystów czeka atrakcja w postaci wieży widokowej, z której można podziwiać panoramę miasta. Warto wspomnieć o zapleczu edukacyjnym, jakie oferuje Kwidzyn. Funkcjonują tutaj przedszkola, szkoły podstawowe, szkoły średnie, a dla osób pragnących pogłębić swoją wiedzę dedykowane są szkoły językowe, Szkoła Muzyczna I stopnia, Centrum Edukacji Ekologicznej, a także inne szkoły wyższe.
Opis oferty
Nowe 2-pokojowe mieszkanie na sprzedaż o powierzchni 43,84 m² znajduje się w nowo budowanej inwestycji deweloperskiej Osiedle OdNowa K5 w Kwidzynie, ul. Toruńska (22.9 km od Grudziądza).
Inwestycja jest realizowana przez Iławskie Przedsiębiorstwo Budowlane "IPB" Sp. z o.o.
Cała inwestycja składa się z 1 budynku, w którym łącznie znajduje się 56 nowych mieszkań.
Na sprzedaż pozostaje 40 ofert o powierzchni od 35 do 63 m².
W budynku są 4 kondygnacje naziemne oraz 1 kondygnacja podziemna.
Inwestycja Osiedle OdNowa K5 jest w trakcie budowy z planowanym na 4 kw. 2026 roku terminem oddania do użytkowania.
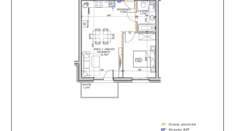
Nowe mieszkanie o oznaczeniu 20 znajduje się na parterze i jest 1-poziomowe. Pomieszczenia mają od 260 do 280 centymetrów wysokości. W mieszkaniu znajdują się 2 pokoje.
Dla przyszłych mieszkańców Osiedle OdNowa K5 deweloper przewidział miejsca postojowe naziemne.
Dzięki temu przyszli właściciele nie będą musieli poszukiwać wolnej przestrzeni parkingowej.
Opis Inwestycji
Pow. dodatkowe
OdNowa to nowe osiedle, które znajduje się w atrakcyjnej dzielnicy mieszkaniowej Kwidzyna, u zbiegu ulic Toruńskiej, Południowej i Łużyckiej. Położone blisko centrum miasta, z dobrym dostępem do miejskiej infrastruktury, gwarantuje jego mieszkańcom wygodę i komfort życia. Zaś dogodny dojazd do centrum pozwala w krótkim czasie znaleźć się w sercu miasta. To idealne miejsce do wypoczynku i rekreacji, zarówno dla singli, jak i rodzin z dziećmi.
DLA MIŁOŚNIKÓW REKREACJI
Dla miłośników rekreacji i czasu na świeżym powietrzu położenie osiedla Od Nowa stanowi idealny punkt wypadowy zarówno na krótkie spacery, jak i dłuższe wyprawy piesze i rowerowe. Nieopodal znajduje się fragment Wiślanej Trasy Rowerowej Euro Velo 9.
Tu ścieżka rowerowa wiedzie po nasypie dawnej kolei wąskotorowej. Niedawno odnowiona, oświetlona i co najważniejsze bezpieczna. Z kolei Kwidzyńskie Centrum Sportu i Rekreacji wraz z basenem oddalone jest zaledwie o 3 minuty drogi samochodem.
Mieszkanie znajduje się w inwestycji Osiedle OdNowa K5, w której znajduje się w sprzedaży jeszcze 13 podobnych nowych mieszkań.
Iławskie Przedsiębiorstwo Budowlane "IPB" Sp. z o.o.
Strona internetowa inwestycjiAdres biura sprzedaży:
ul. Toruńska/Łużycka KwidzynGodziny otwarcia biura sprzedaży:
- Poniedziałek: 10:00 - 16:00
- Czwartek: 09:00 - 14:00
Biuro otwarte: 22–23.12 i 29–30.12
Biuro zamknięte: 24–28.12 i 31.12-7.01





