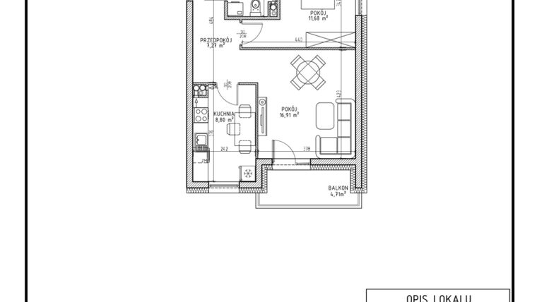
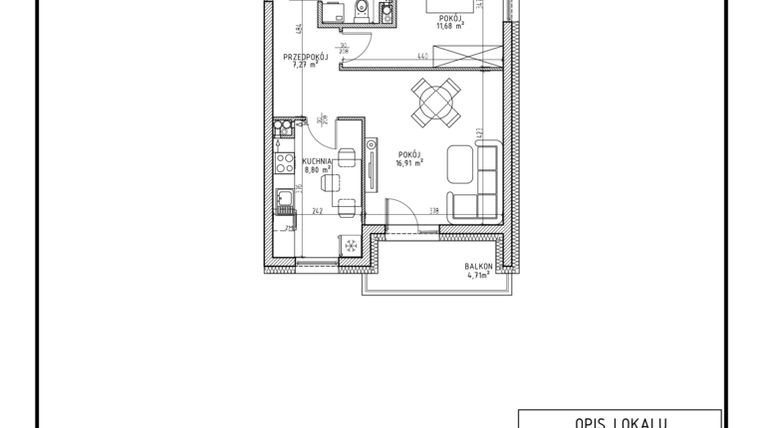
Mieszkanie na sprzedaż 2 pokoje o powierzchni 48,71 m² numer M8
Inwestycja:
Osiedle Foresto etap 2
Inwestycja:
Osiedle Foresto etap 2Grudziądz, ul. ks. dr Władysława Łęgi
Grudziądz, ul. ks. dr Władysława Łęgi
Termin oddania
1 kw. 2027
Ilość pokoi
2 pokoje
Metraż
48,71 m²
Piętro
Parter
Kuchnia
otwarta kuchnia
Wysokość pomieszczeń
od 260 do 280 cm wysokości
Ilość poziomów
1 poziom
Oznaczenie oferty
M8

Raport o deweloperze
Poznaj dewelopera bliżej! Pobierz raport, w którym znajdziesz kluczowe informacje o firmie, jej doświadczeniu, nagrodach oraz aktualnych i zrealizowanych inwestycjach.
Budynek i otoczenie
Miejsca postojowe | |
|---|---|
Komórki lokatorskie | dostępne |
Standard wykończenia | standard deweloperski Ogrzewanie miejskie |
Realizacja inwestycji | rozpoczęcie budowy w 4 kw. 2025 roku, planowane oddanie do użytkowania w 1 kw. 2027 roku |
Udogodnienia | plac zabaw, monitoring, teren ogrodzony |
Przyroda | w okolicy inwestycji znajduje się las |
Charakterystyka energetyczna nieruchomości | informacja u dewelopera |
Rezerwacja i finanse
Rodzaj własności | Odrębna własność z własnością gruntu |
|---|---|
Wysokość czynszu | informacja u dewelopera |
Warunki rezerwacji | Informacja u dewelopera |
Zabezpieczenie środków | Otwarty mieszkaniowy rachunek powierniczy |
Zdjęcia z budowy
Zobacz na jakim etapie budowy jest ta inwestycja
Lokalizacja inwestycji
Stacja kolejowa - Grudziądz Rządz - 1119 m
Przystanek Tramwajowy - 346 m
Przystanek Autobusowy - 341 m
Dojazd do centrum: pokaż
W pobliżu 1 km od tej inwestycji znajdują się:
4 kawiarnie i restauracje, 11 sklepów, 15 obiektów sportowych, 1 placówka medyczna, 8 placówek edukacyjnych, 29 placów zabaw
Przeczytaj więcej o lokalizacji
Grudziądz to historyczne miasto położone w województwie kujawsko-pomorskim przy prawym brzegu Wisły. To niewielkie miasto posiada bardzo rozwinięty system komunikacji miejskiej. Autobusy i tramwaje obsługiwane przez MZK Grudziądz umożliwiają podróże na obszarze całego miasta. Grudziądz to także rozwijający się przemysł zdominowany przez branżę elektromaszynową, lekką, budowlaną i spożywczą. Wyjątkowo atrakcyjna lokalizacja u zbiegu ważnych polskich szlaków komunikacyjnych przyczynia się do ciągłego wzrostu potencjału gospodarczego tej okolicy. Pomorska Specjalna Strefa Ekonomiczna umożliwia przedsiębiorcom zwolnienie z podatku dochodowego, co przyczynia się do mniejszych kosztów związanych z prowadzeniem działalności. Architektura Grudziądza to charakterystyczne spichlerze z przełomu XVI-XVIII w. Budynki dumnie zdobią panoramę zachodnich granic, stanowiąc tym samym wizytówkę miasta. Doskonale zachowane fragmenty murów, gotyckie i barokowe kościoły, militarna cytadela urozmaicają piesze spacery i przyciągają do miasta turystów z różnych stron Polski. Dla miłośników rowerowych lub pieszych wędrówek w Grudziądzu przygotowano liczne trasy i szlaki. Tężnia solankowa w kształcie piramidy to alternatywa dla osób, które potrzebują odzyskać równowagę i spokój ducha. W bliskim otoczeniu miasta znajduje się jezioro Rudnickie, które w upalne dni jest idealnym miejscem wypoczynku.
Opis oferty
Nowe 2-pokojowe mieszkanie na sprzedaż o powierzchni 48,71 m² znajduje się w nowo budowanej inwestycji deweloperskiej Osiedle Foresto etap 2 w Grudziądzu, ul. ks. dr Władysława Łęgi (4.2 km od centrum Grudziądza).
Inwestycja jest realizowana przez Iławskie Przedsiębiorstwo Budowlane "IPB" Sp. z o.o.
Cała inwestycja składa się z 1 budynku, w którym łącznie znajduje się 50 nowych mieszkań.
Na sprzedaż pozostaje 45 ofert o powierzchni od 41 do 64 m².
W budynku jest 5 kondygnacji naziemnych oraz 1 kondygnacja podziemna.
Inwestycja Osiedle Foresto etap 2 jest w trakcie budowy z planowanym na 1 kw. 2027 roku terminem oddania do użytkowania.
Nowe mieszkanie o oznaczeniu M8 znajduje się na parterze i jest 1-poziomowe. Pomieszczenia mają od 260 do 280 centymetrów wysokości. W mieszkaniu znajdują się 2 pokoje.
Dla przyszłych mieszkańców Osiedle Foresto etap 2 deweloper przewidział miejsca postojowe podziemne, miejsca postojowe naziemne.
Dzięki temu przyszli właściciele nie będą musieli poszukiwać wolnej przestrzeni parkingowej. Dodatkowo, miejsce postojowe w garażu podziemnym zabezpiecza przed niekorzystnymi warunkami atmosferycznymi.
Opis Inwestycji
FORESTO – Komfort i Bezpieczeństwo
Projektując FORESTO myśleliśmy przede wszystkim o tym, jak podnieść komfort codziennego życia, zapewniając Tobie i Twoim bliskim bezpieczeństwo oraz oszczędności w użytkowaniu mieszkania.
Kompleks FORESTO powstaje w klimatycznej części Grudziądza. Dzielnica Rządz to wyjątkowe miejsce, dlatego właśnie tutaj postanowiliśmy wybudować zespół 6 nowoczesnych kameralnych budynków mieszkalnych. Spokój i relaks zapewni mieszkańcom zielone otoczenie. Okolica obfituje w piękne zielone tereny, sprzyjające aktywnemu wypoczynkowi. Doskonałym celem pieszych wędrówek mogą okazać się pobliskie lasy a spacer wzdłuż Wisły będzie idealnym pomysłem na udany wieczór. To właśnie w tej lokalizacji powstanie nowoczesne i spokojne miejsce, w którym dobrze się żyje i odpoczywa.
FORESTO to mieszkania w podwyższonym standardzie „deweloperski plus”. Osiedle jest zamknięte, wyposażone w monitoring, wzmocnione drzwi do mieszkań i bezpieczny plac zabaw dla dzieci. Energooszczędne trzyszybowe okna oraz cichobieżne windy klasy energetycznej A to niższe koszty utrzymania a tym samym dbałość o środowisko. Udogodnienia dla zmotoryzowanych w postaci indywidualnych garaży, prywatnych zewnętrznych miejsc parkingowych i stojaków na rowery. Dodatkowy komfort – wentylacja mechaniczna niskociśnieniowa w mieszkaniach i wyciągowa w częściach wspólnych oraz pomieszczeniach gospodarczych.
FORESTO to idealne miejsce dla rodzin, par i singli. W kameralnej 5-kondygnacyjnej zabudowie znajdziesz duży wybór mieszkań 2- i 3-pokojowych o powierzchni od 44 do 64 m². Każde mieszkanie posiada loggię/balkon zapewniające prywatność oraz komórkę lokatorską.
Ponadczasowy design i funkcjonalność
Osiedle FORESTO to ponadczasowa architektura i unikatowy design.
Idąc z duchem czasu, zaprojektowaliśmy budynki z jasnymi i nowoczesnymi elewacjami. Szczyty wszystkich sześciu budynków zostaną ozdobione dużymi grafikami drzew. Zarówno kolorystyka elewacji, jak i motywy drzew, to nawiązanie do nazwy FORESTO – las i logotypu inwestycji.
Z kolei nazwy poszczególnych budynków będą nawiązywać do kolorystyki lasu w różnych porach roku, tj. BIANCO (biały), NERO (czarny), GRIGIO (szary), MARRONE (brąz), VERDE (zielony), ROSSO (czerwony).
Oprócz unikalnego oznakowania elewacji, inwestycję wyróżnia również elegancki wygląd części wspólnych.
Przestrzeń wspólna kompleksu mieszkaniowego FORESTO to esencja nowoczesnej elegancji i unikalnego designu, inspirowanego pięknem natury. Każdy detal został starannie przemyślany, aby stworzyć harmonijną przestrzeń, która zachwyca estetyką i funkcjonalnością.
Ściany zdobią subtelne grafiki przedstawiające drzewa, wprowadzając do wnętrz atmosferę spokoju i bliskości z naturą. Te artystyczne akcenty idealnie współgrają z nowoczesnymi płytkami w odcieniach szarości, które nadają wnętrzom elegancki i wyrafinowany charakter.
Łącząc naturę z nowoczesnym designem, FORESTO oferuje swoim mieszkańcom przestrzeń, która inspiruje i staje się wizytówką całego osiedla.
Mieszkanie znajduje się w inwestycji Osiedle Foresto etap 2, w której znajduje się w sprzedaży jeszcze 26 podobnych nowych mieszkań.
Iławskie Przedsiębiorstwo Budowlane "IPB" Sp. z o.o.
Strona internetowa inwestycjiAdres biura sprzedaży:
ul. ks. dr Władysława Łęgi, GrudziądzGodziny otwarcia biura sprzedaży:
- Poniedziałek: 09:00 - 14:00
- Środa: 10:00 - 18:00





