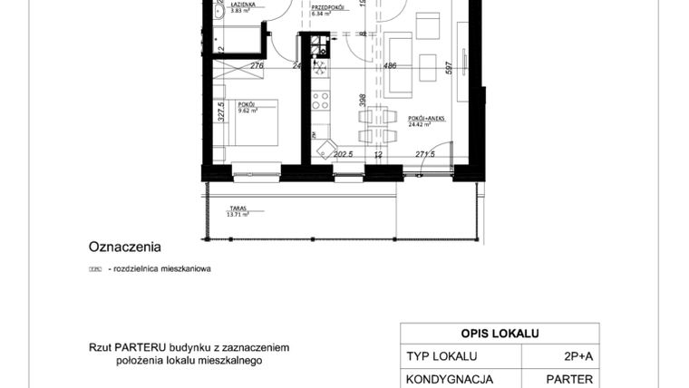
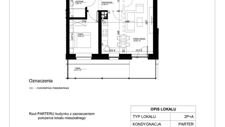
Mieszkanie na sprzedaż 2 pokoje o powierzchni 44,21 m² numer 3
Inwestycja:
Esperanto Park etap II
Inwestycja:
Esperanto Park etap IIOlsztyn, Podleśna, ul. Ludwika Zamenhofa
Olsztyn, Podleśna, ul. Ludwika Zamenhofa
Oddanie
3 kw. 2026
Ilość pokoi
2 pokoje
Metraż
44,21 m²
Piętro
Parter
Dodatkowe
Taras, Ogródek
Kuchnia
otwarta kuchnia
Wysokość
250 cm wysokości
Poziomy
1 poziom
Oznaczenie oferty
3

Raport o deweloperze
Poznaj dewelopera bliżej! Pobierz raport, w którym znajdziesz kluczowe informacje o firmie, jej doświadczeniu, nagrodach oraz aktualnych i zrealizowanych inwestycjach.
Budynek i otoczenie
Miejsca postojowe | |
|---|---|
Standard wykończenia | standard deweloperski Ogrzewanie miejskie |
Realizacja inwestycji | rozpoczęcie budowy w 1 kw. 2024 roku, planowane oddanie do użytkowania w 3 kw. 2026 roku |
Udogodnienia | plac zabaw, teren ogrodzony, winda |
Przyroda | informacja u dewelopera |
Charakterystyka energetyczna nieruchomości | informacja u dewelopera |
Rezerwacja i finanse
Rodzaj własności | Odrębna własność z użytkowaniem wieczystym gruntu |
|---|---|
Wysokość czynszu | informacja u dewelopera |
Warunki rezerwacji | Informacja u dewelopera |
Zabezpieczenie środków | Otwarty mieszkaniowy rachunek powierniczy |
Postępy i zdjęcia z budowy
Zobacz na jakim etapie budowy jest ta inwestycja
Lokalizacja inwestycji
Stacja kolejowa - Olsztyn Główny - 515 m
Przystanek Tramwajowy - 750 m
Przystanek Autobusowy - 194 m
Dojazd do centrum: pokaż
W pobliżu 1 km od tej inwestycji znajdują się:
19 kawiarni i restauracji, 39 sklepów, 12 obiektów sportowych, 8 placówek medycznych, 22 placówki edukacyjne, 14 placów zabaw
Przeczytaj więcej o lokalizacji
Olsztyn jest stolicą województwa warmińsko-mazurskiego. Znajduje się w nim siedziba władz ziemskiego powiatu olsztyńskiego, kurii archidiecezji warmińskiej i luterańskiej diecezji mazurskiej. Podzielone jest na kilkadziesiąt osiedli - jednostek pomocniczych gminy, które są najniższym, pomocniczym szczeblem samorządu miejskiego. Ich działanie obejmuje załatwianie spraw publicznych o zasięgu lokalnym. Około 30 procent powierzchni całego miasta zajmują lasy. Ponad połowa z tego to zwarty kompleks Lasu Miejskiego, który pełni głównie funkcje terenów rekreacyjno-wypoczynkowych oraz turystyczno-krajoznawczych.
Opis oferty
Nowe 2-pokojowe mieszkanie na sprzedaż o powierzchni 44,21 m² znajduje się w nowo budowanej inwestycji deweloperskiej Esperanto Park etap II na Podleśnej, ul. Ludwika Zamenhofa (2 km od centrum Olsztyna).
Inwestycja jest realizowana przez Iławskie Przedsiębiorstwo Budowlane "IPB" Sp. z o.o.
Cała inwestycja składa się z 1 budynku, w którym łącznie znajduje się 37 nowych mieszkań.
Na sprzedaż pozostaje 20 ofert o powierzchni od 32 do 63 m².
W budynku jest 7 kondygnacji naziemnych oraz 1 kondygnacja podziemna.
Inwestycja Esperanto Park etap II jest w trakcie budowy z planowanym na 3 kw. 2026 roku terminem oddania do użytkowania.
Nowe mieszkanie o oznaczeniu 3 znajduje się na parterze i jest 1-poziomowe. Pomieszczenia mają 250 centymetrów wysokości. W mieszkaniu znajdują się 2 pokoje.
Dla przyszłych mieszkańców Esperanto Park etap II deweloper przewidział miejsca postojowe podziemne.
Dzięki temu przyszli właściciele nie będą musieli poszukiwać wolnej przestrzeni parkingowej. Dodatkowo, miejsce postojowe w garażu podziemnym zabezpiecza przed niekorzystnymi warunkami atmosferycznymi.
Opis Inwestycji
Pow. dodatkowe
Z szacunku do historii i z myślą o Twojej przyszłości
ESPERANTO PARK to jedna z naszych najnowszych propozycji deweloperskich w Olsztynie zlokalizowana na Osiedlu Podleśna przy ul. Zamenhofa. Przeglądając karty historii zainspirowała nas postać Ludwika Zamenhofa.
Ludwik Łazarz Zamenhof, właściwie Eliezer Lewi Samenhof, to polski lekarz okulista żydowskiego pochodzenia, inicjator uniwersalnego języka esperanto, ośmiokrotnie nominowany do Pokojowej Nagrody Nobla. Był on przekonany, iż główną przyczyną nieporozumień i sporów między ludźmi jest bariera językowa. Jeden, wspólny język miał służyć rozwiązaniu tych problemów. Esperanto to język nadziei stworzony w pragnieniu zjednoczenia ludzi.
W nawiązaniu do idei Zamenhofa, nasz kompleks mieszkaniowy ESPERANTO PARK dedykujemy Państwu z myślą o budowaniu wspólnoty mieszkaniowej opartej na idei dobrego sąsiedztwa.
Osiedle Esperanto Park to:
- kompleks 4 budynków wielorodzinnych B1-B4 (IV etapy realizacji),
- 7-kondygnacyjna zabudowa,
- nowoczesna, ponadczasowa architektura i elewacje w jasnych pastelowych kolorach,
- ok. 220 funkcjonalnych mieszkań z balkonami lub ogródkami,
- miejsca postojowe w podziemnych halach garażowych,
- zewnętrzne miejsca postojowe,
- komórki lokatorskie,
- windy,
- plac zabaw dla najmłodszych.
Mieszkanie znajduje się w inwestycji Esperanto Park etap II, w której znajdują się w sprzedaży jeszcze 3 podobne nowe mieszkania.
Iławskie Przedsiębiorstwo Budowlane "IPB" Sp. z o.o.
Strona internetowa inwestycjiAdres biura sprzedaży:
Al.Obronców Tobruku 15 lok.5, 10-092 OlsztynGodziny otwarcia biura sprzedaży:
- Poniedziałek: 09:00 - 17:00
- Wtorek: 08:00 - 16:00
- Środa: 08:00 - 16:00
- Czwartek: 08:00 - 16:00
- Piątek: 07:00 - 15:00
Biuro otwarte: 22–23.12 i 29–30.12
Biuro zamknięte: 24–28.12 i 31.12-7.01





