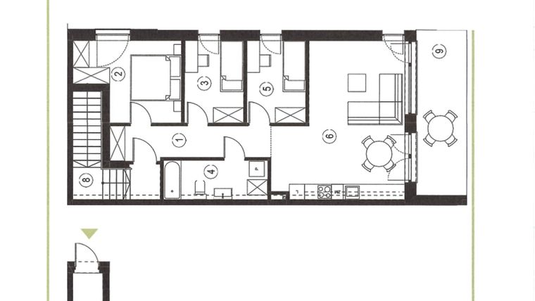
Mieszkanie na sprzedaż 4 pokoje o powierzchni 79,16 m² numer 26_2
Promocja
Inwestycja:
Apartamenty SielankaDeweloper:
ICL Estate
Inwestycja:
Apartamenty SielankaDeweloper:
ICL EstateMikołów, Sielanka
Mikołów, Sielanka
Termin oddania
Gotowe
Ilość pokoi
4 pokoje
Metraż
79,16 m²
Piętro
1 piętro
Kuchnia
otwarta kuchnia
Wysokość pomieszczeń
od 260 do 280 cm wysokości
Ilość poziomów
1 poziom
Oznaczenie oferty
26_2

Raport o deweloperze
Poznaj dewelopera bliżej! Pobierz raport, w którym znajdziesz kluczowe informacje o firmie, jej doświadczeniu, nagrodach oraz aktualnych i zrealizowanych inwestycjach.
Budynek i otoczenie
Miejsca postojowe | |
|---|---|
Standard wykończenia | standard deweloperski podwyższony Ogrzewanie pompa ciepła |
Realizacja inwestycji | rozpoczęcie budowy w 3 kw. 2022 roku, inwestycja została oddana do użytkowania w 4 kw. 2024 roku |
Udogodnienia | teren ogrodzony, pompa ciepła |
Przyroda | w okolicy inwestycji znajduje się las |
Charakterystyka energetyczna nieruchomości | informacja u dewelopera |
Rezerwacja i finanse
Rodzaj własności | Odrębna własność z własnością gruntu |
|---|---|
Wysokość czynszu | informacja u dewelopera |
Warunki rezerwacji | Informacja u dewelopera |
Zabezpieczenie środków | Zamknięty mieszkaniowy rachunek powierniczy |
Zdjęcia z budowy
Zobacz na jakim etapie budowy jest ta inwestycja
Lokalizacja inwestycji
Stacja kolejowa - Mikołów - 2932 m
Przystanek Autobusowy - 95 m
Dojazd do centrum: pokaż
W pobliżu 1 km od tej inwestycji znajdują się:
1 kawiarnia lub restauracja, 3 obiekty sportowe, 2 place zabaw
Przeczytaj więcej o lokalizacji
Mikołów to miasto położone w południowej Polsce, w województwie śląskim. Jego powierzchnia zajmuje 79,21 km2, a liczba mieszkańców wynosi ok. 41 tysięcy. Położony jest na Wyżynie Śląskiej. Graniczy bezpośrednio z Katowicami, Tychami, gminą Wyry, Łaziskami Górnymi i Orzeszem oraz Rudą Śląską. Rynek Główny to najchętniej odwiedzane miejsce zarówno przez mieszkańców, jak i turystów. Mikołów jest jednym z nielicznych miast górnośląskich z tak dobrze zachowaną starówką z rynkiem w centralnym punkcie. W mieście odbywają się również cykliczne wydarzenia, jak Mikołowskie Dni Muzyki, plenery malarskie “Impresje Mikołowskie” oraz Dni Mikołowa. W mieście funkcjonuje: 12 przedszkoli, 11 szkół podstawowych oraz 7 szkół średnich.
Opis oferty
Nowe 4-pokojowe mieszkanie na sprzedaż o powierzchni 79,16 m² znajduje się w nowo budowanej inwestycji deweloperskiej Apartamenty Sielanka w Mikołowie (2.7 km od centrum Mikołowa).
Inwestycja jest realizowana przez ICL Estate.
Cała inwestycja składa się z 7 budynków, w których łącznie znajduje się 45 nowych mieszkań.
Na sprzedaż pozostaje 26 ofert o powierzchni od 59 do 80 m².
W budynkach są 2 kondygnacje naziemne. Budynek nie posiada kondygnacji podziemnych.
Inwestycja Apartamenty Sielanka została wybudowana i oddana do użytkowania w 4 kw. 2024 roku.
Nowe mieszkanie o oznaczeniu 26_2 znajduje się na 1 piętrze i jest 1-poziomowe. Pomieszczenia mają od 260 do 280 centymetrów wysokości. W mieszkaniu znajdują się 4 pokoje.
Dla przyszłych mieszkańców Apartamenty Sielanka deweloper przewidział miejsca postojowe naziemne.
Dzięki temu przyszli właściciele nie będą musieli poszukiwać wolnej przestrzeni parkingowej.
Opis Inwestycji
Otocz się pięknem natury!
W naszej ofercie znajdują się apartamenty z przestronnym balkonem, które tworzą funkcjonalną przestrzeń oraz apartamenty z przestrzennym ogródkiem oferujące bliskość natury i strefę dla relaksu. W ofercie znajduję się również możliwość wykupienia miejsca parkingowego.
Nasze apartamenty wyróżniają się nowoczesnymi rozwiązaniami, zadbaliśmy o każdy detal, dbając o wygodę i bezpieczeństwo mieszkańców. Uporządkowana architektura cieszy oko oraz zieleń dominująca w przestrzeni inwestycji tworzy komfortowe warunki do wypoczynku.
Położenie osiedla przy największych śląskich obszarach leśnych pozwala na aktywny wypoczynek bez obawy o zanieczyszczenia z odpadów przemysłowych.
Nasze apartamenty to gwarancja komfortu i bezpieczeństwa. Przestrzeń dla siebie znajdują tu osoby, które marzą o wygodnym i funkcjonalnym domu. Cały teren jest ogrodzony i wyposażony w szlaban, co zapewnia pełną kontrolę dostępu i spokój jego mieszkańców. Jako zamknięte osiedle, oferuje prywatność i poczucie wyjątkowej przestrzeni tylko dla Ciebie i Twoich najbliższych. To idealna propozycja zarówno dla rodzin, młodych małżonków, jak i osób żyjących w pojedynkę, które pragną rozpocząć nowy etap w życiu w wyjątkowym miejscu.
Dbamy o najwyższą jakość zarządzania – osiedlem opiekuje się profesjonalny zarządca, który zajmie się wszystkimi aspektami funkcjonowania tego miejsca. Dzięki temu, kupując u nas, nie musisz się martwić o zarządzanie – możesz cieszyć się swoim nowym domem bez żadnych dodatkowych obowiązków.
Apartamenty energooszczędne Sielanka umożliwiają osiągniecie minimalnych kosztów eksploatacji, z uwagi na to, że budowane są przy pomocy jakościowych materiałów. Apartamenty wyposażone są w pompy ciepła. Naszym priorytetem jest zadowolenie klienta, dlatego oferujemy nasze apartamenty w podwyższonym standardzie deweloperskim. Gwarantujemy bezpieczeństwo w postaci zamkniętego rachunku powierniczego w banku mBanku oraz występuje u nas
5-letnia rękojmia na budynek.
Mieszkanie znajduje się w inwestycji Apartamenty Sielanka, w której znajduje się w sprzedaży jeszcze 16 podobnych nowych mieszkań.
ICL Estate
Strona internetowa inwestycjiAdres biura sprzedaży:
ul. Sokolska 78-80, 40-087 KatowiceGodziny otwarcia biura sprzedaży:
- Poniedziałek: 09:00 - 17:00
- Wtorek: 09:00 - 17:00
- Środa: 09:00 - 17:00
- Czwartek: 09:00 - 17:00
- Piątek: 09:00 - 17:00





