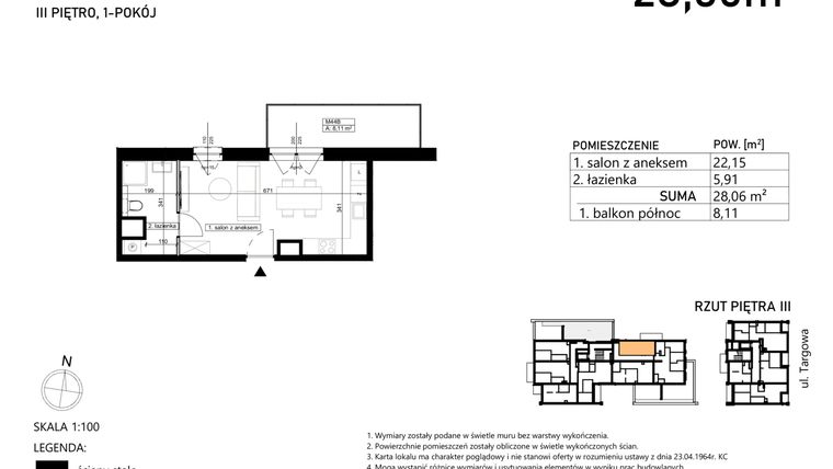
Mieszkanie na sprzedaż 1 pokój o powierzchni 28,06 m² numer M44
Inwestycja:
FinezjaDeweloper:
House Factory
Inwestycja:
FinezjaDeweloper:
House FactoryŁódź, Widzew, Stary Widzew, ul. Targowa 49
Łódź, Widzew, Stary Widzew, ul. Targowa 49
Termin oddania
4 kw. 2026
Ilość pokoi
1 pokój
Metraż
28,06 m²
Piętro
3 piętro
Powierzchnie dodatkowe
Balkon
Kuchnia
otwarta kuchnia
Wysokość pomieszczeń
od 260 do 280 cm wysokości
Ilość poziomów
1 poziom
Oznaczenie oferty
M44

Raport o deweloperze
Poznaj dewelopera bliżej! Pobierz raport, w którym znajdziesz kluczowe informacje o firmie, jej doświadczeniu, nagrodach oraz aktualnych i zrealizowanych inwestycjach.
Budynek i otoczenie
Miejsca postojowe | |
|---|---|
Komórki lokatorskie | dostępne |
Standard wykończenia | standard deweloperski |
Realizacja inwestycji | oddanie do użytkowania w 4 kw. 2026 roku |
Udogodnienia | teren ogrodzony, usługi w budynku, winda, rowerownia, wózkarnia |
Przyroda | w okolicy inwestycji znajduje się park |
Charakterystyka energetyczna nieruchomości | informacja u dewelopera |
Rezerwacja i finanse
Rodzaj własności | informacja u dewelopera |
|---|---|
Wysokość czynszu | informacja u dewelopera |
Warunki rezerwacji | Informacja u dewelopera |
Zabezpieczenie środków | Otwarty mieszkaniowy rachunek powierniczy |
Zdjęcia z budowy
Zobacz na jakim etapie budowy jest ta inwestycja
Lokalizacja inwestycji
Stacja kolejowa - Łódź Fabryczna - 1077 m
Przystanek Tramwajowy - 151 m
Przystanek Autobusowy - 159 m
Dojazd do centrum: pokaż
W pobliżu 1 km od tej inwestycji znajdują się:
83 kawiarnie i restauracje, 45 sklepów, 39 obiektów sportowych, 30 placówek medycznych, 63 placówki edukacyjne, 35 placów zabaw
Przeczytaj więcej o lokalizacji
Widzew jest największą dzielnicą Łodzi i ma powierzchnię ok. 91 km², a liczba jego mieszkańców wynosi ok. 140 000. Gęstość zaludnienia jest niska, gdyż na obrzeżach Widzewa znajduje się sporo terenów zielonych – pól, lasów, nieużytków. Poza tym dominuje zabudowa przemysłowa i duże osiedla mieszkaniowe (złożone z bloków i wieżowców). Dzielnica leży na terenie dawnej wsi Widzew, która przez lata stopniowo była inkorporowana do granic miasta. Najbardziej uprzemysłowioną część wsi przyłączono do Łodzi już w 1906 roku, a kolejne wcielenia miały miejsce w 1915 i 1946 roku. Także dawna wieś Widzew jest w całości częścią Łodzi od zakończenia II wojny światowej, natomiast jako osobna dzielnica funkcjonuje od 1954 roku. Od tego czasu jej powierzchnia kilkukrotnie rozszerzała się o nowe tereny.
Opis oferty
Nowe 1-pokojowe mieszkanie na sprzedaż o powierzchni 28,06 m² znajduje się w nowo wybudowanej inwestycji deweloperskiej Finezja na Starym Widzewie, ul. Targowa 49 (1.1 km od centrum Łodzi).
Sprzedaż prowadzi House Factory.
Cała inwestycja składa się z 1 budynku, w którym łącznie znajduje się 60 nowych mieszkań.
Na sprzedaż pozostają 43 oferty o powierzchni od 27 do 86 m².
W budynku jest 6 kondygnacji naziemnych oraz 1 kondygnacja podziemna.
Inwestycja Finezja jest w trakcie budowy z planowanym na 4 kw. 2026 roku terminem oddania do użytkowania.
Nowe mieszkanie o oznaczeniu M44 znajduje się na 3 piętrze i jest 1-poziomowe. Pomieszczenia mają od 260 do 280 centymetrów wysokości. W mieszkaniu znajduje się 1 pokój.
Dla przyszłych mieszkańców Finezja deweloper przewidział miejsca postojowe podziemne.
Dzięki temu przyszli właściciele nie będą musieli poszukiwać wolnej przestrzeni parkingowej. Dodatkowo, miejsce postojowe w garażu podziemnym zabezpiecza przed niekorzystnymi warunkami atmosferycznymi.
Opis Inwestycji
Tereny zielone
Pow. dodatkowe
Inwestycja Finezja przy ul. Targowej 49 usytuowana jest w samym sercu miasta, gdzie historia spotyka się z nowoczesnością. Lokalizacja, która pozwala jednocześnie cieszyć się zaletami centrum takimi jak nowoczesne kawiarnie, kultowe miejsca jak Księży Młyn, dynamiczne centra kultury, a jednocześnie, dosłownie na wyciągnięcie ręki, zielony azyl, jakim jest Park Źródliska. To adres dla tych, którzy chcą mieszkać aktywnie, wygodnie, w otoczeniu nowoczesnego stylu dopełnionego spokojem kameralnej i zielonej okolicy.
Apartamenty położone w najbardziej klimatycznej części Łodzi. Finezja sąsiaduje z miejscami, które budują tożsamość miasta:
Park źródliska, Łódzka Filmówka, Księży Młyn, Monopolis, oraz słynna ulica Piotrkowska.
Z jednej strony mamy łatwy dostęp do miejskich udogodnień m.in.: zakupów, gastronomii, rozrywki (Galeria Łódzka lub Monopolis do których możemy się dostać podczas 5 minutowego spaceru)
Z drugiej jednak strony bezpośrednie sąsiedztwo zieleni i przestrzeni rekreacyjnej. Okna we frontowej części inwestycji wychodzą bezpośrednio na Park Źródliska, który jest jednym z najstarszych i z pewnością najbardziej romantycznych parków w Łodzi.
Atuty Finezji:
• Styl i jakość: Inwestycja łączy historyczny klimat i modernistyczne wykończenia. kamienica we współczesnym wydaniu. Stylowe wnętrza, szlachetne detale i miejski charakter
• Dostępność różnych metraży: W ofercie apartamenty 1-, 2-, 3- i 4-pokojowe, w zakresie od około 27 m2 do 86 m2 z własnymi ogródkami, balkonami i dużymi tarasami.
• Lokalizacja praktycznie w samym parku: Pomimo ścisłego centrum miasta, inwestycja zlokalizowana jest praktycznie w samym Parku Źródliska, z ogromną ilością bezpłatnych miejsc parkingowych, co w dzisiejszych czasach stanowi niebywałą przewagę konkurencyjną
• Dla komfortu mieszkańców przewidziano przestronny garaż podziemny z 61 miejscami postojowymi.
• Doskonała komunikacja i infrastruktura: W obrębie kilku minut pieszo znajdują się szkoły, restauracje, galerie, uczelnie.
• Bliskość Filmówki, gdzie powyższa uczelnia to jedno z najbardziej prestiżowych miejsc kształcenia w Polsce w dziedzinie filmu, telewizji i teatru
Mieszkanie znajduje się w inwestycji Finezja, w której znajduje się w sprzedaży jeszcze 18 podobnych nowych mieszkań.
House Factory
Strona internetowa inwestycjiAdres biura sprzedaży:
Piotrkowska 24Godziny otwarcia biura sprzedaży:
- Poniedziałek: 09:00 - 20:00
- Wtorek: 09:00 - 20:00
- Środa: 09:00 - 20:00
- Czwartek: 09:00 - 20:00
- Piątek: 09:00 - 20:00





