Dom na sprzedaż 3 pokoje o powierzchni 108,64 m² numer 1318
Inwestycja:
Domy w zamku Montemar - 44815514Deweloper:
Homiia
Inwestycja:
Domy w zamku Montemar - 44815514Deweloper:
HomiiaAlgorfa, Castillo de Montemar
Algorfa, Castillo de Montemar
Termin oddania
Gotowe
Ilość pokoi
3 pokoje
Metraż
108,64 m²
Powierzchnie dodatkowe
Taras
Kuchnia
otwarta kuchnia
Wysokość pomieszczeń
270 cm wysokości
Ilość kondygnacji
2 poziomy
Oznaczenie oferty
1318
Odległość od lotniska
56 km
Odległość od morza
13 km
Budynek i otoczenie
Miejsca postojowe | |
|---|---|
Standard wykończenia | wykończenie pod klucz |
Realizacja inwestycji | rozpoczęcie budowy w 1 kw. 2025 roku, inwestycja została oddana do użytkowania w 1 kw. 2026 roku |
Udogodnienia | ochrona całodobowa, basen |
Przyroda | w okolicy inwestycji znajduje się morze |
Charakterystyka energetyczna nieruchomości | informacja u dewelopera |
Rezerwacja i finanse
Rodzaj własności | Odrębna własność z własnością gruntu |
|---|---|
Wysokość czynszu | informacja u dewelopera |
Warunki rezerwacji | Informacja u dewelopera |
Zabezpieczenie środków | Otwarty mieszkaniowy rachunek powierniczy i gwarancję bankową |
Zdjęcia z budowy
Zobacz na jakim etapie budowy jest ta inwestycja
Lokalizacja inwestycji
Opis oferty
Nowy 3-pokojowy dom szeregowy na sprzedaż o powierzchni 108,64 m² znajduje się w nowo budowanej inwestycji deweloperskiej Domy w zamku Montemar - 44815514 w Algorfa (0.7 km od centrum Algorfa).
Sprzedaż prowadzi Homiia.
Cała inwestycja składa się z 4 nowych domów.
Inwestycja Domy w zamku Montemar - 44815514 została wybudowana i oddana do użytkowania w 1 kw. 2026 roku.
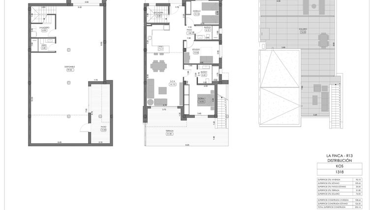
Nowy dom szeregowy o oznaczeniu 1318 , składa się z 2 kondygnacji bez poddasza, nie posiada podpiwniczenia. Wysokość pomieszczeń wynosi 270 cm.
W domu szeregowym numer 1318 znajdują się się 3 pokoje.
Do domu przynależy taras o powierzchni 31,8 m².
Dla przyszłych mieszkańców Domy w zamku Montemar - 44815514 deweloper przewidział miejsca postojowe naziemne
Opis Inwestycji
Pow. dodatkowe
Położone w prestiżowym ośrodku La Finca Resort w Costa Blanca South, te dwa osiedla oferują ekskluzywny i spokojny styl życia, otoczony luksusowymi udogodnieniami i niezrównanym naturalnym otoczeniem. Mieszkania wyróżniają się współczesnym i jasnym designem, dostępne w konfiguracjach 2- lub 3-pokojowych, podczas gdy apartamenty w zabudowie bliźniaczej łączą komfort i prywatność w jednopiętrowych domach z 3 sypialniami. Obie opcje są idealne dla tych, którzy chcą cieszyć się śródziemnomorskim stylem w uprzywilejowanej społeczności.
Mieszkania są rozmieszczone w trzech dwupiętrowych blokach, apartamenty na parterze mają prywatne ogrody idealne do relaksu, podczas gdy penthousy mają duże solaria z widokiem na okolicę ośrodka. Projekt zewnętrzny odzwierciedla elegancki, nowoczesny styl, który płynnie łączy się ze wspólnymi ogrodami. Podczas gdy domy bliźniacze obejmują prywatny ogród, basen i parking, zapewniając idealną równowagę między prywatnością a wygodą. Architektura łączy nowoczesne linie z wysokiej jakości wykończeniami, tworząc harmonijny i funkcjonalny projekt.
Dom znajduje się w inwestycji Domy w zamku Montemar - 44815514, w której znajduje się w sprzedaży jeszcze 1 podobny nowy dom.
Homiia
Strona internetowa inwestycjiAdres biura sprzedaży:
Avenida Alfonso 10 el Sabio 1 2D, Alicante, SpainGodziny otwarcia biura sprzedaży:
- Poniedziałek: 10:00 - 18:00
- Wtorek: 10:00 - 18:00
- Środa: 10:00 - 18:00
- Czwartek: 10:00 - 18:00
- Piątek: 10:00 - 18:00





