Dom na sprzedaż 3 pokoje o powierzchni 160,05 m² numer NNS-2081
Inwestycja:
Dom w Fortunie - 38160367Deweloper:
Homiia
Inwestycja:
Dom w Fortunie - 38160367Deweloper:
HomiiaFortuna, C. Pales
Fortuna, C. Pales
Termin oddania
Gotowe
Ilość pokoi
3 pokoje
Metraż
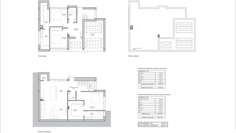
160,05 m²
Kuchnia
otwarta kuchnia
Wysokość pomieszczeń
od 260 do 280 cm wysokości
Ilość kondygnacji
2 poziomy
Oznaczenie oferty
NNS-2081
Odległość od lotniska
60 km
Odległość od morza
44 km
Budynek i otoczenie
Miejsca postojowe | |
|---|---|
Standard wykończenia | standard deweloperski podwyższony |
Realizacja inwestycji | rozpoczęcie budowy w 1 kw. 2025 roku, inwestycja została oddana do użytkowania w 4 kw. 2025 roku |
Udogodnienia | informacja u dewelopera |
Przyroda | informacja u dewelopera |
Charakterystyka energetyczna nieruchomości | informacja u dewelopera |
Rezerwacja i finanse
Rodzaj własności | Odrębna własność z własnością gruntu |
|---|---|
Wysokość czynszu | informacja u dewelopera |
Warunki rezerwacji | Informacja u dewelopera |
Zabezpieczenie środków | Otwarty mieszkaniowy rachunek powierniczy i gwarancję bankową |
Zdjęcia z budowy
Zobacz na jakim etapie budowy jest ta inwestycja
Lokalizacja inwestycji
Opis oferty
Nowy 3-pokojowy dom wolnostojący na sprzedaż o powierzchni 160,05 m² znajduje się w nowo budowanej inwestycji deweloperskiej Dom w Fortunie - 38160367 w Fortuna (38.5 km od centrum Murcji).
Sprzedaż prowadzi Homiia.
Cała inwestycja składa się z 1 nowych domów.
Inwestycja Dom w Fortunie - 38160367 została wybudowana i oddana do użytkowania w 4 kw. 2025 roku.
Nowy dom wolnostojący o oznaczeniu NNS-2081 , składa się z 2 kondygnacji bez poddasza, nie posiada podpiwniczenia. Wysokość pomieszczeń wynosi od 260 do 280 cm.
W domu wolnostojącym numer NNS-2081 znajdują się się 3 pokoje.
Dla przyszłych mieszkańców Dom w Fortunie - 38160367 deweloper nie przewidział miejsc postojowych.
Opis Inwestycji
Kameralny budynek
Nowoczesne, nowo wybudowane wille w Fortuna, Murcia, zbudowane na dwóch piętrach i zaprojektowane tak, aby oferować komfort, funkcjonalność i zrelaksowany styl życia. Dzięki doskonałej lokalizacji, mniej niż 3 km od centrum miasta i zaledwie 25 km od miasta Murcia, łączą spokój naturalnego środowiska z szybkim dostępem do wszystkich udogodnień.
Dom znajduje się w inwestycji Dom w Fortunie - 38160367.
Homiia
Strona internetowa inwestycjiAdres biura sprzedaży:
Avenida Alfonso 10 el Sabio 1 2D, Alicante, SpainGodziny otwarcia biura sprzedaży:
- Poniedziałek: 10:00 - 18:00
- Wtorek: 10:00 - 18:00
- Środa: 10:00 - 18:00
- Czwartek: 10:00 - 18:00
- Piątek: 10:00 - 18:00





