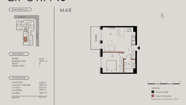
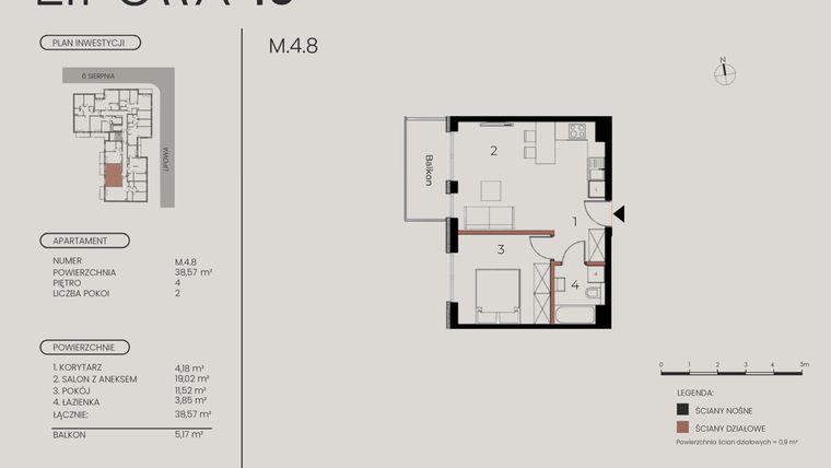
Mieszkanie na sprzedaż 2 pokoje o powierzchni 38,57 m² numer M.4.8
Inwestycja:
Lipowa 43Deweloper:
HERITAGE INVEST PARK
Inwestycja:
Lipowa 43Deweloper:
HERITAGE INVEST PARKŁódź, Polesie, Stare Polesie, ul. Lipowa 43
Łódź, Polesie, Stare Polesie, ul. Lipowa 43
Promocje
Promocja
Rabat na miejsce garażowe minus 15 tys. zł lub komórka lokatorska gratis!
* Przyjdź, porozmawiaj z Nami, wybierz mieszkanie, wybierz promocje i podpisz umowę rezerwacyjną. Szczegóły w Biurze Sprzedaży.
Promocja
Zdrapka rabatowa przy zakupie mieszkania – nawet do 10 tys. rabatu!
*Przyjdź, porozmawiaj z Nami, wybierz mieszkanie, wydrap rabat i podpisz umowę rezerwacyjną. Szczegóły w Biurze Sprzedaży
Termin oddania
2 kw. 2026
Ilość pokoi
2 pokoje
Metraż
38,57 m²
Piętro
4 piętro
Strona świata
zachód
Powierzchnie dodatkowe
Balkon
Kuchnia
otwarta kuchnia
Wysokość pomieszczeń
280 cm wysokości
Ilość poziomów
1 poziom
Oznaczenie oferty
M.4.8

Raport o deweloperze
Poznaj dewelopera bliżej! Pobierz raport, w którym znajdziesz kluczowe informacje o firmie, jej doświadczeniu, nagrodach oraz aktualnych i zrealizowanych inwestycjach.
Budynek i otoczenie
Miejsca postojowe | |
|---|---|
Komórki lokatorskie | dostępne: wielkość: 1,5 - 5,5 m2; 5.500 zł/m2. |
Standard wykończenia | standard deweloperski Ogrzewanie miejskie, grzejniki ścienne |
Realizacja inwestycji | rozpoczęcie budowy w 3 kw. 2024 roku, planowane oddanie do użytkowania w 2 kw. 2026 roku |
Udogodnienia | monitoring, teren ogrodzony, klimatyzacja, usługi w budynku, winda, rowerownia, inteligentny dom, wózkarnia |
Przyroda | informacja u dewelopera |
Charakterystyka energetyczna nieruchomości |
|
Rezerwacja i finanse
Rodzaj własności | Odrębna własność z własnością gruntu |
|---|---|
Wysokość czynszu | informacja u dewelopera |
Warunki rezerwacji | kontakt telefoniczny z Deweloperem, umowa rezerwacyjna |
Zabezpieczenie środków | Otwarty mieszkaniowy rachunek powierniczy |
Zdjęcia z budowy
Zobacz na jakim etapie budowy jest ta inwestycja
Lokalizacja inwestycji
Stacja kolejowa - Łódź Kaliska - 1397 m
Przystanek Tramwajowy - 377 m
Przystanek Autobusowy - 57 m
Dojazd do centrum: pokaż
W pobliżu 1 km od tej inwestycji znajdują się:
123 kawiarnie i restauracje, 89 sklepów, 33 obiekty sportowe, 23 placówki medyczne, 50 placówek edukacyjnych, 33 place zabaw
Przeczytaj więcej o lokalizacji
Łódź Polesie to dzielnica Łodzi o powierzchni 46 km. kw., w której mieszka ok. 140 tys. osób. W centralnym obszarze dzielnicy położony jest Park im. J. Piłsudskiego, dworzec Łódź Kaliska i droga E75. Dzielnicę okala od wschodu rzeka Ner, od południa port lotniczy im. W. Reymonta a od północy ul. Szczecińska i Rąbieńska. Polesie dzieli się na osiedla Złotno, Zdrowie-Mania, Karolew-Retkinia Wschód, Osiedla im. Montwiłła-Mireckiego, Retkinia Zachód, Lublinek, Stare Polesie i Koziny. O jej przyjaznym mieszkańcom charakterze świadczy położony tu największy łódzki park, Ogród Botaniczny, las Lublinek i 5 supermarketów i liczne punkty usługowe. Do tego dochodzi ciekawa oferta szkół wyższych z kampusem Politechniki Łódzkiej na czele.
Opis oferty
Nowe 2-pokojowe mieszkanie na sprzedaż o powierzchni 38,57 m² znajduje się w nowo budowanej inwestycji deweloperskiej Lipowa 43 w Starym Polesiu, ul. Lipowa 43 (1.2 km od centrum Łodzi).
Inwestycja jest realizowana przez HERITAGE INVEST PARK.
Cała inwestycja składa się z 1 budynku, w którym łącznie znajduje się 41 nowych mieszkań.
Na sprzedaż pozostają 33 oferty o powierzchni od 37 do 115 m².
W budynku jest 6 kondygnacji naziemnych oraz 1 kondygnacja podziemna.
Inwestycja Lipowa 43 jest w trakcie budowy z planowanym na 2 kw. 2026 roku terminem oddania do użytkowania.
Nowe mieszkanie o oznaczeniu M.4.8 znajduje się na 4 piętrze i jest 1-poziomowe. Pomieszczenia mają 280 centymetrów wysokości. W mieszkaniu znajdują się 2 pokoje.
Okna w mieszkaniu wychodzą na zachód.
Zachodnia ekspozycja to gwarancja intensywnego popołudniowego światła, które nadaje wnętrzom przytulności i ciepła. Idealne dla miłośników słonecznych wieczorów, którzy pragną cieszyć się pięknymi zachodami słońca we własnym domu. Zachodnie światło podkreśla kolory i faktury w aranżacji wnętrz, tworząc atmosferę sprzyjającą relaksowi po długim dniu.
Dla przyszłych mieszkańców Lipowa 43 deweloper przewidział miejsca postojowe podziemne.
Dzięki temu przyszli właściciele nie będą musieli poszukiwać wolnej przestrzeni parkingowej. Dodatkowo, miejsce postojowe w garażu podziemnym zabezpiecza przed niekorzystnymi warunkami atmosferycznymi.
Mieszkanie znajduje się w inwestycji Lipowa 43, w której znajduje się w sprzedaży jeszcze 7 podobnych nowych mieszkań.
HERITAGE INVEST PARK
Strona internetowa inwestycjiAdres biura sprzedaży:
al. Józefa Piłsudskiego 3, 90-329 ŁódźGodziny otwarcia biura sprzedaży:
- Poniedziałek: 09:00 - 17:00
- Wtorek: 09:00 - 17:00
- Środa: 09:00 - 17:00
- Czwartek: 09:00 - 17:00
- Piątek: 09:00 - 17:00





