Dom na sprzedaż 5 pokoi o powierzchni 104,92 m² numer 8
Inwestycja:
Nowe Krzyżowice IIDeweloper:
Green Home Development
Inwestycja:
Nowe Krzyżowice IIDeweloper:
Green Home Developmentwrocławski, Krzyżowice, ul. Akacjowa
wrocławski, Krzyżowice, ul. Akacjowa
Termin oddania
Gotowe
Ilość pokoi
5 pokoi
Metraż
104,92 m²
Piętro
Parter
Powierzchnie dodatkowe
Ogródek
Kuchnia
otwarta kuchnia
Wysokość pomieszczeń
270 cm wysokości
Ilość kondygnacji
2 poziomy
Oznaczenie oferty
8

Raport o deweloperze
Poznaj dewelopera bliżej! Pobierz raport, w którym znajdziesz kluczowe informacje o firmie, jej doświadczeniu, nagrodach oraz aktualnych i zrealizowanych inwestycjach.
Budynek i otoczenie
Miejsca postojowe | |
|---|---|
Standard wykończenia | standard deweloperski Ogrzewanie pompa ciepła, ogrzewanie podłogowe |
Realizacja inwestycji | rozpoczęcie budowy w 3 kw. 2024 roku, inwestycja została oddana do użytkowania w 1 kw. 2026 roku |
Udogodnienia | teren ogrodzony, boisko, klimatyzacja, siłownia plenerowa, instalacja fotowoltaiczna, pompa ciepła, paczkomat |
Przyroda | w okolicy inwestycji znajduje się las |
Charakterystyka energetyczna nieruchomości | informacja u dewelopera |
Rezerwacja i finanse
Rodzaj własności | Odrębna własność z własnością gruntu |
|---|---|
Wysokość czynszu | informacja u dewelopera |
Warunki rezerwacji | Umowa rezerwacyjna |
Zabezpieczenie środków | Informacja u dewelopera |
Zdjęcia z budowy
Zobacz na jakim etapie budowy jest ta inwestycja
Lokalizacja inwestycji
Stacja kolejowa - Wierzbice - 3002 m
Przystanek Autobusowy - 2415 m
Dojazd do centrum Wrocławia: pokaż
W pobliżu 1 km od tej inwestycji znajdują się:
2 obiekty sportowe, 5 placówek edukacyjnych
Przeczytaj więcej o lokalizacji
Powiat wrocławski zlokalizowany jest w środkowowschodniej części województwa dolnośląskiego, w sąsiedztwie Wrocławia. W jego skład wchodzą miasta i gminy: Kąty Wrocławskie, Siechnice, Sobótka, Czernica, Długołęka, Jordanów Śląski, Kobierzyce, Mietków, Żórawina. Przez wzgląd na unikalne walory przyrodnicze - Górę Ślęża i zbiornik Mietkowski - powiat wrocławski może pochwalić się doskonałymi warunkami do wypoczynku i rekreacji. Z uwagi na spore zróżnicowanie terenu (obszar ponad 1116 km2), powiat wrocławski można podzielić na część zachodnią i wschodnią. Część zachodnia obejmuje gminy Mietków, Sobótka, Jordanów Śląski, Kąty Wrocławskie, Kobierzyce, Żórawina, część wschodnia - gminy Siechnice, Czernica, Długołęka. Warto wyróżnić również takie miejscowości, jak Kamieniec Wrocławski, Dobrzykowice, Jelcz Laskowice. Zabudowę mieszkalną powiatu wrocławskiego, w przeważającej części stanowią domy jednorodzinne i wielorodzinne a pejzaż zdominowany jest przez grunty rolne - blisko 11% powierzchni powiatu zajmują kompleksy leśne. Na terenie powiatu znajduje się również Ślężański Park Krajobrazowy, Park Krajobrazowy Dolina Bystrzycy a także poszczególne strefy wyznaczone Obszarem Natura 2000. Sporą popularnością zarówno wśród mieszkańców, jak i turystów cieszy się oferta Ośrodka Sportów Wodnych i Rekreacji Powiatu Wrocławskiego w Borzygniewie. Atrakcyjna lokalizacja, dogodne połączenia komunikacyjne i proinwestycyjna postawa władz lokalnych sprawiają, że powiat wrocławski cieszy się nieustannym zainteresowaniem deweloperów. Mając na uwadze dobro mieszkańców, turystów i inwestorów, na terenie powiatu realizowane są różnego rodzaju projektu - rozbudowywana jest infrastruktura drogowa, prowadzone są inwestycje wspierające rozwój edukacji ekologicznej oraz turystyki.
Opis oferty
Nowy 5-pokojowy dom bliźniak na sprzedaż o powierzchni 104,92 m² znajduje się w nowo budowanej inwestycji deweloperskiej Nowe Krzyżowice II Krzyżowicach, ul. Akacjowa (8.9 km od Wrocławia).
Inwestycja jest realizowana przez Green Home Development.
Cała inwestycja składa się z 20 nowych domów.
Inwestycja Nowe Krzyżowice II została wybudowana i oddana do użytkowania w 1 kw. 2026 roku.
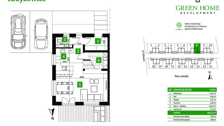
Nowy dom bliźniak o oznaczeniu 8 stoi na działce o powierzchni 297 m², składa się z 2 kondygnacji bez poddasza, nie posiada podpiwniczenia. Wysokość pomieszczeń wynosi 270 cm.
W domu bliźniaku numer 8 znajduje się się 5 pokoi.
Do domu przynależy ogródek o powierzchni 179 m².
Dla przyszłych mieszkańców Nowe Krzyżowice II deweloper przewidział miejsca postojowe naziemne (2 miejsca)
Opis Inwestycji
Pow. dodatkowe
🏡 Nowe Krzyżowice – nowoczesne domy bliźniacze 12 minut od Bielan Wrocławskich
Osiedle Nowe Krzyżowice to kameralna inwestycja obejmująca 20 domów w zabudowie bliźniaczej, położona przy ul. Limonkowej w Krzyżowicach (gm. Kobierzyce) – w spokojnej i zielonej okolicy, z szybkim dojazdem do Wrocławia.
📍 Lokalizacja:
12 minut do Bielan Wrocławskich,
15 minut do granic Wrocławia,
stacja PKP w odległości ok. 6 minut od inwestycji (szybkie połączenie kolejowe do centrum Wrocławia),
w pobliżu: szkoła, przedszkole, sklepy, przystanki autobusowe i punkty usługowe.
🏠 Domy o powierzchni 107 m² + ponad 20 m² poddasza (do adaptacji)
Każdy dom zaprojektowany jest z myślą o funkcjonalności i komforcie codziennego życia.
Rozkład pomieszczeń:
• Parter – wiatrołap, toaleta, przestronny salon z jadalnią i aneksem kuchennym, wyjście na ogród, pomieszczenie techniczne (np. pralnia/pompa ciepła).
• Piętro – cztery sypialnie (z możliwością zmiany układu ścian działowych) oraz duża łazienka z oknem.
Działki: od 300 do 450 m²
Ogródki: od 180 do 310 m²
2 miejsca postojowe w cenie (z możliwością budowy wiaty).
💡 Standard i technologia
pompa ciepła Hisense (5 lat gwarancji),
ogrzewanie podłogowe na obu kondygnacjach,
rolety zewnętrzne elektryczne,
okna 3-szybowe, dachówka ceramiczna,
ocieplenie ścian styropianem grafitowym 20 cm,
🌿 Atuty inwestycji
gminna sieć wodno-kanalizacyjna,
system odprowadzania wód opadowych do zbiorników (możliwość wykorzystania w ogrodzie),
dwa wjazdy na osiedle przez drogę asfaltową,
nowa droga wewnętrzna z kostki, chodniki i oświetlenie LED.
internet (światłowód)
🏗️ Postęp prac
I etap – zakończony, możliwość prezentacji gotowych domów,
II etap – w budowie, planowane zakończenie: styczeń 2026 r.
💰 Ceny i promocje
Domy dostępne od 865 000 zł brutto (dom nr 7) do 935 000 zł brutto (dom nr 11) / uwzględnione rabaty
W cenie zawarty jest udział w drodze wewnętrznej.
Aktualna promocja:
🎯 Rabaty nawet do 30 000 zł na wybrane domy
Dom znajduje się w inwestycji Nowe Krzyżowice II, w której znajdują się w sprzedaży jeszcze 3 podobne nowe domy.
Green Home Development
Strona internetowa inwestycjiAdres biura sprzedaży:
ul. Władysława Zarembowicza 31/5, WrocławGodziny otwarcia biura sprzedaży:
- Poniedziałek: 10:00 - 16:00
- Wtorek: 10:00 - 16:00
- Środa: 10:00 - 16:00
- Czwartek: 10:00 - 16:00
- Piątek: 10:00 - 16:00





