Dom na sprzedaż 5 pokoi o powierzchni 114,4 m² numer 6b
Inwestycja:
Domy na Przylesiu etap IIDeweloper:
eHome Sp. z o. o.
Inwestycja:
Domy na Przylesiu etap IIDeweloper:
eHome Sp. z o. o.Bydgoszcz, Nowy Fordon, ul. Bartłomieja z Bydgoszczy
Bydgoszcz, Nowy Fordon, ul. Bartłomieja z Bydgoszczy
Termin oddania
4 kw. 2026
Ilość pokoi
5 pokoi
Metraż
114,4 m²
Kuchnia
otwarta kuchnia
Wysokość pomieszczeń
od 260 do 280 cm wysokości
Ilość kondygnacji
2 poziomy
Oznaczenie oferty
6b

Raport o deweloperze
Poznaj dewelopera bliżej! Pobierz raport, w którym znajdziesz kluczowe informacje o firmie, jej doświadczeniu, nagrodach oraz aktualnych i zrealizowanych inwestycjach.
Budynek i otoczenie
Miejsca postojowe | |
|---|---|
Standard wykończenia | standard deweloperski Dach Dach dwuspadowy z naturalnym pokryciem ceramicznym w kolorze antracytowo-czarnym, ocieplenie sufitu nad piętrem 2x15 cm wełną mineralną, poddasze nieużytkowe Stolarka okienna okna PCV kolor 1 stronny : antracyt, potrójnie szklonych szybą Drzwi zewnętrzne drzwi zewnętrzne stalowe ocieplone z 2 zamkami, kolor antracytowy Parapety zewnętrzne parapety zewnętrzne stalowe w kolorze antracytowym Ogrzewanie podłogowe Wentylacja rekuperacja |
Realizacja inwestycji | oddanie do użytkowania w 4 kw. 2026 roku |
Udogodnienia | instalacja fotowoltaiczna, miejsce do ładowania samochodów elektrycznych, rekuperacja, pompa ciepła |
Przyroda | w okolicy inwestycji znajduje się las |
Charakterystyka energetyczna nieruchomości | informacja u dewelopera |
Rezerwacja i finanse
Rodzaj własności | informacja u dewelopera |
|---|---|
Wysokość czynszu | informacja u dewelopera |
Warunki rezerwacji | Informacja u dewelopera |
Zabezpieczenie środków | informacja u dewelopera |
Zdjęcia z budowy
Zobacz na jakim etapie budowy jest ta inwestycja
Lokalizacja inwestycji
Stacja kolejowa - Bydgoszcz Politechnika - 1605 m
Przystanek Tramwajowy - 689 m
Przystanek Autobusowy - 176 m
Dojazd do centrum: pokaż
W pobliżu 1 km od tej inwestycji znajdują się:
10 kawiarni i restauracji, 23 sklepy, 37 obiektów sportowych, 5 placówek medycznych, 41 placówek edukacyjnych, 31 placów zabaw
Przeczytaj więcej o lokalizacji
Bydgoszcz to miasto powiatowe będące stolicą woj. kujawsko-pomorskiego. Przepływają tędy rzeki Wisła i Brda. Zabudowa jest zróżnicowana. Śródmieście wyróżnia się zwartym budownictwem i wieloma zabytkowymi kamienicami. Dalej od centrum pojawiają się budynki wielorodzinne, a na obrzeżach miasta liczne domy jednorodzinne. Przy północnej i południowej granicy rozciągają się rozległe tereny zielone, m.in. Las Gdański. Bydgoszcz to ośrodek gospodarczy, akademicki i kulturowy, w którym mieści się kilkanaście szkół wyższych, teatr, filharmonia i opera. Mieszkańcy mają dostęp do bogatej oferty medycznej – działa tu kilkanaście szpitali. Prężnie rozwija się sektor handlowo-usługowy i działa Bydgoski Park Przemysłowo-Technologiczny. Bydgoszcz jest rewelacyjnie skomunikowany z największymi miastami kraju. Znajduje się tu port lotniczy, a liczne drogi wojewódzkie i krajowe zapewniają dogodną komunikację drogową. Na obszarze całego miasta działa komunikacja publiczna.
Opis oferty
Nowy 5-pokojowy dom szeregowy na sprzedaż o powierzchni 114,4 m² znajduje się w nowo wybudowanej inwestycji deweloperskiej Domy na Przylesiu etap II na Nowym Fordonie, ul. Bartłomieja z Bydgoszczy (8.8 km od centrum Bydgoszczy).
Inwestycja została zrealizowana przez eHome Sp. z o. o.
Cała inwestycja składa się z 14 nowych domów.
Inwestycja Domy na Przylesiu etap II jest w trakcie budowy z planowanym na 4 kw. 2026 roku terminem oddania do użytkowania.
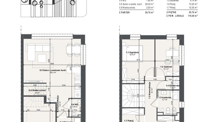
Nowy dom szeregowy o oznaczeniu 6b , składa się z 2 kondygnacji bez poddasza, nie posiada podpiwniczenia. Wysokość pomieszczeń wynosi od 260 do 280 cm.
W domu szeregowym numer 6b znajduje się się 5 pokoi.
Dla przyszłych mieszkańców Domy na Przylesiu etap II deweloper przewidział miejsca postojowe naziemne
Opis Inwestycji
4 warianty domów od 116 m² do 172 m²
W ofercie domy wolnostojące i w zabudowie bliźniaczej. Każdy z nich ma duże okna, ogródek oraz garaż w bryle budynku.
Bliskość natury, z dala od zgiełku
Osiedle położone jest w otulinie Puszczy Bydgoskiej, zaledwie 3000 metrów od rzeki. To idealne miejsce do aktywnego wypoczynku i relaksu na łonie natury, bez rezygnacji z miejskich udogodnień.
Kilka Minut od Centrum Fordonu
Doskonała lokalizacja zapewnia szybki dojazd do sklepów, usług oraz fordońskiego Rynku.
Dom znajduje się w inwestycji Domy na Przylesiu etap II, w której znajduje się w sprzedaży jeszcze 11 podobnych nowych domów.





