Termin oddania
1 kw. 2027
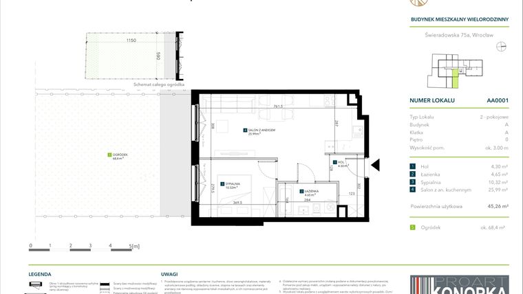
Ilość pokoi
2 pokoje
Metraż
45,26 m²
Piętro
Parter
Strona świata
wschód
Powierzchnie dodatkowe
Ogródek
Kuchnia
otwarta kuchnia
Wysokość pomieszczeń
od 260 do 280 cm wysokości
Ilość poziomów
1 poziom
Oznaczenie oferty
AA0001

Raport o deweloperze
Poznaj dewelopera bliżej! Pobierz raport, w którym znajdziesz kluczowe informacje o firmie, jej doświadczeniu, nagrodach oraz aktualnych i zrealizowanych inwestycjach.
Budynek i otoczenie
Miejsca postojowe | |
|---|---|
Komórki lokatorskie | dostępne (16): nieobowiązkowy zakup; od 1,43 do 4,03 m2 |
Standard wykończenia | standard deweloperski Ogrzewanie miejskie |
Realizacja inwestycji | rozpoczęcie budowy w 3 kw. 2025 roku, planowane oddanie do użytkowania w 1 kw. 2027 roku |
Udogodnienia | usługi w budynku, winda, monitoring, inteligentny dom |
Przyroda | w okolicy inwestycji znajduje się park |
Charakterystyka energetyczna nieruchomości | informacja u dewelopera |
Rezerwacja i finanse
Rodzaj własności | Odrębna własność z własnością gruntu |
|---|---|
Wysokość czynszu | informacja u dewelopera |
Warunki rezerwacji | 5 dni w systemie |
Zabezpieczenie środków | Otwarty mieszkaniowy rachunek powierniczy i gwarancję bankową |
Zdjęcia z budowy
Zobacz na jakim etapie budowy jest ta inwestycja
Lokalizacja inwestycji
Stacja kolejowa - Wrocław Wojszyce - 1281 m
Przystanek Tramwajowy - 81 m
Przystanek Autobusowy - 57 m
Dojazd do centrum: pokaż
W pobliżu 1 km od tej inwestycji znajdują się:
36 kawiarni i restauracji, 57 sklepów, 37 obiektów sportowych, 21 placówek medycznych, 29 placówek edukacyjnych, 67 placów zabaw
Przeczytaj więcej o lokalizacji
Krzyki to dawna dzielnica Wrocławia, znajduje się w południowej części miasta. Zajmuje ponad 54 km2 a na jej terenie mieszka prawie 170 tysięcy osób. Na zabudowę dzielnicy składają się zarówno duże osiedla mieszkaniowe, jak i domy jednorodzinne. Został tu wybudowany także najwyższy budynek w Polsce – Sky Tower. Znajduje się tu dużo zabytkowych willi i inne zabytki takie jak Wieża Ciśnień czy Stary Cmentarz Żydowski. Na Krzykach znajduje się Wrocławski Uniwersytet Ekonomiczny a także ponad 100 szkół elementarnych. Największym centrum handlowym jest Wroclavia o powierzchni 71 000 m2. W południowej części Krzyków znajduje się tor wyścigów konnych Partynice oraz Wrocławski Tatr Pantomimy. Dzielnica posiada połączenia autobusowe i tramwajowe – znajduje się tu 5 pętli tramwajowych. Dwie główne ulice Krzyków, które łączą je z centrum miasta to Powstańców Śląskich oraz Ślężna. Znajduje się tu także Wrocławski Dworzec Główny.
Opis oferty
Nowe 2-pokojowe mieszkanie na sprzedaż o powierzchni 45,26 m² znajduje się w nowo budowanej inwestycji deweloperskiej Vivre na Gaju, ul. Świeradowska 75A (3.5 km od centrum Wrocławia).
Inwestycja jest realizowana przez Develia.
Cała inwestycja składa się z 1 budynku, w którym łącznie znajdują się 52 nowe mieszkania.
Na sprzedaż pozostaje 11 ofert o powierzchni od 30 do 58 m².
W budynku jest 5 kondygnacji naziemnych oraz 1 kondygnacja podziemna.
Inwestycja Vivre jest w trakcie budowy z planowanym na 1 kw. 2027 roku terminem oddania do użytkowania.
Nowe mieszkanie o oznaczeniu AA0001 znajduje się na parterze i jest 1-poziomowe. Pomieszczenia mają od 260 do 280 centymetrów wysokości. W mieszkaniu znajdują się 2 pokoje.
Do mieszkania przewidziano możliwość zakupu komórki lokatorskiej, którą można zagospodarować na spiżarnię, warsztat czy składzik.
Okna w mieszkaniu wychodzą na wschód.
Wschodnia orientacja zapewnia dostęp do łagodnego porannego światła, idealnego dla rozpoczęcia dnia pełnego energii. Wnętrza pozostają jasne, ale nieprzegrzane, co sprzyja utrzymaniu komfortowej temperatury. Przebywanie w pomieszczeniu z oknami na wschód inspiruje do działania i pozytywnie wpływa na poranny rytuał.
Dla przyszłych mieszkańców Vivre deweloper przewidział miejsca postojowe podziemne.
Dzięki temu przyszli właściciele nie będą musieli poszukiwać wolnej przestrzeni parkingowej. Dodatkowo, miejsce postojowe w garażu podziemnym zabezpiecza przed niekorzystnymi warunkami atmosferycznymi.
Opis Inwestycji
Pow. dodatkowe
Vivre to wyjątkowa inwestycja mieszkaniowa zlokalizowana w jednej z najbardziej cenionych dzielnic Wrocławia – Krzykach, tuż przy malowniczym Wzgórzu Gajowym. Projekt cechuje się elegancką, nowoczesną architekturą oraz starannie zaprojektowanymi częściami wspólnymi w stonowanej kolorystyce brązów i przełamanej bieli z subtelnymi złotymi akcentami.
W ramach inwestycji powstanie pięciokondygnacyjny budynek oferujący 52 komfortowe mieszkania o zróżnicowanych układach – od 1- do 4-pokojowych, o powierzchni od 30 do 94 m². Każde z mieszkań posiada balkon, taras lub przydomowy ogródek, co zwiększa komfort codziennego życia. Na parterze przewidziano również lokale usługowe, które ułatwią mieszkańcom codzienne funkcjonowanie.
Dla wygody przyszłych mieszkańców zaplanowano podziemną halę garażową oraz udogodnienia dla miłośników jednośladów – stojaki na rowery oraz stanowisko do ich mycia i naprawy. Cała inwestycja będzie objęta monitoringiem.
Wszystkie mieszkania zostaną wyposażone w nowoczesny system smart home j Appartme. Umożliwia on m.in. zdalne sterowanie temperaturą, automatyczne wyłączanie oświetlenia po opuszczeniu mieszkania oraz odcięcie dopływu wody i prądu, co znacząco podnosi poziom bezpieczeństwa.
Lokalizacja
Inwestycja Vivre powstaje przy ul. Wandy Rutkiewicz, na wrocławskich Krzykach – w bezpośrednim sąsiedztwie Wzgórza Gajowego i otaczających je terenów zielonych. To idealne miejsce dla osób ceniących sobie połączenie bliskości natury z dostępem do miejskiej infrastruktury.
Dzielnica Krzyki to jeden z najbardziej pożądanych rejonów Wrocławia – zarówno przez rodziny z dziećmi, jak i osoby aktywne zawodowo. W okolicy znajdują się liczne sklepy, szkoły, przedszkola, restauracje, a także placówki medyczne. Rozbudowana sieć komunikacyjna umożliwia szybki dojazd do centrum miasta oraz innych dzielnic Wrocławia – zarówno samochodem, jak i komunikacją miejską.
Atuty
• Prestiżowa lokalizacja – Krzyki, tuż przy Wzgórzu Gajowym
• Blisko natury i szybki dojazd do centrum
• Tylko 52 mieszkania – kameralny budynek
• Każde mieszkanie z balkonem, tarasem lub ogródkiem
• Metraże od 30 do 94 m² – od kawalerek po 4 pokoje
• System smart home Appartme w standardzie
• Monitoring całej inwestycji
• Podziemny garaż + stacja naprawy i mycia rowerów
• Lokale usługowe na parterze – wygoda na co dzień
• Nowoczesna architektura i eleganckie wnętrza
Niniejszy materiał nie stanowi oferty w rozumieniu Kodeksu cywilnego i ma charakter wyłącznie informacyjny.
Szczegóły inwestycji oraz pełna oferta dostępne są na stronie internetowej:
https://develia.pl/pl/
Mieszkanie znajduje się w inwestycji Vivre, w której znajduje się w sprzedaży jeszcze 7 podobnych nowych mieszkań.
Develia
Strona internetowa inwestycjiAdres biura sprzedaży:
ul. Traugutta 45, WrocławGodziny otwarcia biura sprzedaży:
- Poniedziałek: 09:00 - 18:00
- Wtorek: 09:00 - 18:00
- Środa: 09:00 - 18:00
- Czwartek: 09:00 - 18:00
- Piątek: 09:00 - 18:00





