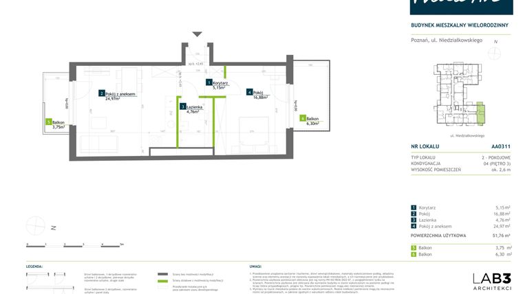
Mieszkanie na sprzedaż 2 pokoje o powierzchni 51,66 m² numer AA0311
Inwestycja:
Vilda ArteDeweloper:
Develia
Inwestycja:
Vilda ArteDeweloper:
DeveliaPoznań, Osiedle Wilda, ul. Mieczysława Niedziałkowskiego 11
Poznań, Osiedle Wilda, ul. Mieczysława Niedziałkowskiego 11
Promocje
Dni Otwarte
Mieszkania w promocyjnych cenach tylko 16.05, w g. 9:00-15:00. Zapraszamy na Dzień Otwarty w biurach sprzedaży Develii!
Przygotowaliśmy dla Ciebie specjalną ofertę: ponad 500 mieszkań w cenach obniżonych nawet o 160 tys. zł. Wygodny harmonogram płatności 20/80 na wybrane lokale. Jedna z najdłuższych na rynku, 7-letnia rękojmia. Bezpłatne konsultacje z ekspertami!
Termin oddania
2 kw. 2026
Ilość pokoi
2 pokoje
Metraż
51,66 m²
Piętro
3 piętro
Strona świata
północ, południe
Kuchnia
otwarta kuchnia
Wysokość pomieszczeń
260 cm wysokości
Ilość poziomów
1 poziom
Oznaczenie oferty
AA0311

Raport o deweloperze
Poznaj dewelopera bliżej! Pobierz raport, w którym znajdziesz kluczowe informacje o firmie, jej doświadczeniu, nagrodach oraz aktualnych i zrealizowanych inwestycjach.
Budynek i otoczenie
Miejsca postojowe | |
|---|---|
Komórki lokatorskie | dostępne (3): obowiązkowy zakup; 3,11 m2 |
Standard wykończenia | standard deweloperski Ogrzewanie centralne |
Realizacja inwestycji | rozpoczęcie budowy w 4 kw. 2024 roku, planowane oddanie do użytkowania w 2 kw. 2026 roku |
Udogodnienia | monitoring, usługi w budynku, winda, inteligentny dom, klimatyzacja, instalacja fotowoltaiczna, miejsce do ładowania samochodów elektrycznych |
Przyroda | w okolicy inwestycji znajduje się park |
Charakterystyka energetyczna nieruchomości |
|
Rezerwacja i finanse
Rodzaj własności | Odrębna własność z własnością gruntu |
|---|---|
Wysokość czynszu | informacja u dewelopera |
Warunki rezerwacji | Informacja u dewelopera |
Zabezpieczenie środków | Otwarty mieszkaniowy rachunek powierniczy |
Zdjęcia z budowy
Zobacz na jakim etapie budowy jest ta inwestycja
Lokalizacja inwestycji
Stacja kolejowa - Poznań Główny - 553 m
Przystanek Tramwajowy - 193 m
Przystanek Autobusowy - 89 m
Dojazd do centrum: pokaż
W pobliżu 1 km od tej inwestycji znajdują się:
214 kawiarni i restauracji, 112 sklepów, 40 obiektów sportowych, 19 placówek medycznych, 47 placówek edukacyjnych, 22 place zabaw
Przeczytaj więcej o lokalizacji
Wilda to poznańska dzielnica ograniczona od wschodu rzeką Wartą, od północy ul. Królowej Jadwigi, od zachodu linią kolejową a od południa granicą ogrodów działkowych. Dzielnicę przecina z zachodu na wschód ul. Hetmańska a z północy na południe droga wojewódzka nr 430, krzyżująca się na południu z Autostradą Wolności. Na powierzchni 7 km kw żyje tu ok.6,8 tys. osób. Na zabudowę Wildy składają się w większości stare, poprzemysłowe kamienice, z których wiele wpisanych jest na listę zabytków. Po Wildzie kursuje 6 linii tramwajowych i 12 autobusowych. Na terenie dzielnicy działają liczne przedszkola, szkoły i szkoły wyższe, takie jak Akademia Wychowania Fizycznego i Sportu, Wyższa Szkoła Zarządzania, Wyższa Szkoła Zarządzania i Bankowości i Poznańska Wyższa Szkoła Biznesu. Ma tu siedzibę również Ortopedyczno-Rehabilitacyjny Szpital Kliniczny im. Wiktora Degi Uniwersytetu Medycznego. Do największych parków dzielnicy należy Las Dębiński i Park im. Jana Pawła II a zieleń uzupełniają też ogródki działkowe.
Opis oferty
Nowe 2-pokojowe mieszkanie na sprzedaż o powierzchni 51,66 m² znajduje się w nowo budowanej inwestycji deweloperskiej Vilda Arte na Wildzie, ul. Mieczysława Niedziałkowskiego 11 (0.9 km od centrum Poznania).
Inwestycja jest realizowana przez Develia.
Cała inwestycja składa się z 1 budynku, w którym łącznie znajduje się 58 nowych mieszkań.
Na sprzedaż pozostaje 30 ofert o powierzchni od 29 do 121 m².
W budynku jest 6 kondygnacji naziemnych. Budynek nie posiada kondygnacji podziemnych.
Inwestycja Vilda Arte jest w trakcie budowy z planowanym na 2 kw. 2026 roku terminem oddania do użytkowania.
Nowe mieszkanie o oznaczeniu AA0311 znajduje się na 3 piętrze i jest 1-poziomowe. Pomieszczenia mają 260 centymetrów wysokości. W mieszkaniu znajdują się 2 pokoje.
Do mieszkania przewidziano możliwość zakupu komórki lokatorskiej, którą można zagospodarować na spiżarnię, warsztat czy składzik.
Okna w mieszkaniu wychodzą na północ, południe.
Północna ekspozycja to idealny wybór dla osób ceniących przytulne i klimatyczne wnętrza. Delikatne, rozproszone światło sprzyja harmonii i stwarza doskonałe warunki do relaksu lub pracy. Okna na północ zapewnią równomierne oświetlenie przez cały dzień.
Okna wychodzące na południe gwarantują maksymalną ilość naturalnego światła, co czyni wnętrza jasnymi i ciepłymi. Dodatkowo południowa ekspozycja pomaga obniżyć koszty ogrzewania w zimie. Okna na południe są idealne dla osób pragnących cieszyć się jasnym otoczeniem, które sprzyja dobremu samopoczuciu oraz pozytywnej energii.
Dla przyszłych mieszkańców Vilda Arte deweloper przewidział miejsca postojowe naziemne.
Dzięki temu przyszli właściciele nie będą musieli poszukiwać wolnej przestrzeni parkingowej.
Opis Inwestycji
Tereny zielone
Vilda Arte to inwestycja położona w jednej z najlepiej skomunikowanych i najbardziej atrakcyjnych części Poznania. Zaledwie kilka minut dzieli ją od tętniącego życiem Starego Miasta i nowoczesnego centrum biznesowego Nowy Rynek. W bezpośrednim sąsiedztwie znajdują się liczne kawiarnie, restauracje, galerie, sklepy i punkty usługowe – wszystko, czego potrzeba do wygodnego życia w rytmie miasta. Bliskość terenów zielonych to kolejny atut lokalizacji. Park Izabeli i Jarogniewa Drwęskich, Park Karola Marcinkowskiego oraz Park Jana Henryka Dąbrowskiego to otoczenie sprzyjające aktywności na świeżym powietrzu oraz relaksowi na łonie natury.
Zaledwie 2 minuty spacerem od Vilda Arte znajdują się przystanki tramwajowe i autobusowe, które gwarantują wygodne połączenia z każdą częścią miasta. Dworzec PKP Poznań Główny znajduje się w odległości ok. 700 metrów.
OFERTA
Vilda Arte to kameralny 5-piętrowy budynek o wysokim standardzie położony w prestiżowej części Wildy, graniczącej ze Starym Miastem. W inwestycji znajdzie się 58 komfortowych mieszkań – od kompaktowych kawalerek po przestronne, 5-pokojowe apartamenty, do których przynależeć będą balkony, a na najwyższej kondygnacji – tarasy dachowe. Już od progu mieszkańców powita starannie zaprojektowana przestrzeń wspólna z eleganckim połączeniem barw, faktur i materiałów. Na parterze dominować będą płytki podłogowe z klasycznym motywem szachownicy, panele ścienne imitujące drewno oraz grafitowe akcenty elewacji. Stonowane beże na piętrach nadadzą wnętrzom charakteru, spokoju i harmonii, a całość dopełnią gustowne balustrady, duże lustra i stylowe fotografie. Wszystkie mieszkania w Vilda Arte zostaną wyposażone w system automatyki mieszkaniowej Appartme, który umożliwia m.in. zdalne sterowanie temperaturą, automatyczne wyłączanie oświetlenia po opuszczeniu mieszkania oraz odcięcie prądu dla zwiększenia bezpieczeństwa.
Atuty
• Kameralny budynek - tylko 58 mieszkań
• Zróżnicowane układy i metraże od 29 do 133 mkw.
• Wysoki standard wykończenia części wspólnych inspirowanych sztuką użytkową
• Ekologiczne rozwiązania - panele fotowoltaiczne, zielony dach, winda z odzyskiem energii
• Hala garażowa, 50% miejsc w hali może być przygotowane pod zasilanie elektryczne (zgłaszane jest to na etapie zmian lokatorskich)
• Rolety zewnętrzne i system smart home Appartme w standardzie
• Tarasy na dachu z widokiem na panoramę miasta
• Lokal usługowy na parterze budynku
Niniejszy materiał nie stanowi oferty w rozumieniu Kodeksu cywilnego i ma charakter wyłącznie informacyjny.
Mieszkanie znajduje się w inwestycji Vilda Arte, w której znajduje się w sprzedaży jeszcze 6 podobnych nowych mieszkań.
Develia
Strona internetowa inwestycjiAdres biura sprzedaży:
ul. Bóźnicza 1, 61-751 Poznań (lokal usługowy 204).Godziny otwarcia biura sprzedaży:
- Poniedziałek: 10:00 - 18:00
- Wtorek: 10:00 - 18:00
- Środa: 10:00 - 18:00
- Czwartek: 10:00 - 18:00
- Piątek: 10:00 - 18:00
- Sobota: 10:00 - 15:00





