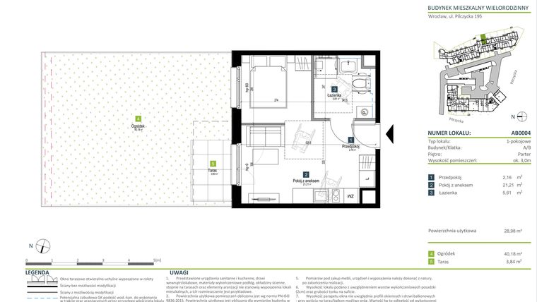
Mieszkanie na sprzedaż 1 pokój o powierzchni 28,98 m² numer AB0004
Inwestycja:
Pilczycka VitaDeweloper:
Develia
Inwestycja:
Pilczycka VitaDeweloper:
DeveliaWrocław, Fabryczna, Pilczyce, ul. Pilczycka 195
Wrocław, Fabryczna, Pilczyce, ul. Pilczycka 195
Termin oddania
4 kw. 2027
Ilość pokoi
1 pokój
Metraż
28,98 m²
Piętro
Parter
Strona świata
wschód
Kuchnia
otwarta kuchnia
Wysokość pomieszczeń
300 cm wysokości
Ilość poziomów
1 poziom
Oznaczenie oferty
AB0004

Raport o deweloperze
Poznaj dewelopera bliżej! Pobierz raport, w którym znajdziesz kluczowe informacje o firmie, jej doświadczeniu, nagrodach oraz aktualnych i zrealizowanych inwestycjach.
Budynek i otoczenie
Miejsca postojowe | |
|---|---|
Komórki lokatorskie | dostępne (40): nieobowiązkowy zakup |
Standard wykończenia | standard deweloperski Ogrzewanie miejskie |
Realizacja inwestycji | oddanie do użytkowania w 4 kw. 2027 roku |
Udogodnienia | plac zabaw, winda, miejsce do ładowania samochodów elektrycznych, usługi w budynku, monitoring |
Przyroda | w okolicy inwestycji znajduje się park, las |
Charakterystyka energetyczna nieruchomości | informacja u dewelopera |
Rezerwacja i finanse
Rodzaj własności | Odrębna własność z własnością gruntu |
|---|---|
Wysokość czynszu | informacja u dewelopera |
Warunki rezerwacji | umowa rezerwacyjna |
Zabezpieczenie środków | Otwarty mieszkaniowy rachunek powierniczy i gwarancję ubezpieczeniową |
Zdjęcia z budowy
Zobacz na jakim etapie budowy jest ta inwestycja
Lokalizacja inwestycji
Stacja kolejowa - Wrocław Stadion - 1104 m
Przystanek Tramwajowy - 186 m
Przystanek Autobusowy - 37 m
Dojazd do centrum: pokaż
W pobliżu 1 km od tej inwestycji znajdują się:
5 kawiarni i restauracji, 16 sklepów, 30 obiektów sportowych, 7 placówek medycznych, 21 placówek edukacyjnych, 30 placów zabaw
Przeczytaj więcej o lokalizacji
Osiedle powstaje w zielonej i spokojnej części Wrocławia – Pilczycach, w północno-zachodnim rejonie miasta. Do centrum można dojechać w ok. 30 minut tramwajem lub samochodem, a dzięki bliskości obwodnicy łatwo wyjechać z miasta. W sąsiedztwie znajdują się rozległe tereny rekreacyjne – Park i Las Pilczycki oraz kąpielisko Glinianki, idealne do spacerów i aktywnego wypoczynku. Infrastruktura obejmuje szkoły, przedszkola, sklepy, punkty usługowe, kawiarnie, a w pobliżu jest także Tarczyńska Arena – stadion, gdzie odbywają się mecze, koncerty i wydarzenia sportowe. Pilczycka Vita łączy komfort życia w mieście z bliskością natury, stanowiąc idealne miejsce zarówno dla młodych osób szukających pierwszego mieszkania, jak i inwestorów czy rodzin poszukujących przestronnych lokali. Atuty: • nowoczesna architektura i funkcjonalne układy mieszkań • bliskość parków, lasów i kąpieliska • garaże podziemne i miejsca z ładowarkami do aut elektrycznych • plac zabaw i zielone, ekologiczne rozwiązania • dobra komunikacja z centrum i innymi częściami Wrocławia
Wrocław Fabryczna to największa dzielnica w mieście. Obejmuje całą północno - zachodnią część miasta. Zamieszkuję ją blisko 200 tysięcy mieszkańców. Na terenie Fabrycznej znajduję się najwięcej osiedli mieszkaniowych. Ich nazwy pochodzą od wsi i miast, które włączane były w granice administracyjne miasta. Przy ulicy Trzemielowickiej znajdziemy dawne obiekty koszarowe. Jest to też dzielnica rekreacyjna, głównie ze względu na dużą ilość terenów zielonych takich jak Las Leśnicki czy Las Ratyński. Wschodnia granica tej dzielnicy przebiega wzdłuż Odry. Ceniący sobie zdrowy tryb życia znajdą tu wiele obiektów sportowych jak Centrum Basenowo – Sportowe czy liczne orliki, kluby fitness i siłownie. W północnej części dzielnicy znajduje się Stadion Miejski, który był jedną z aren Euro 2012. Przez Fabryczną przebiega droga krajowa nr 94 oraz obwodnica miasta. Dzielnica jest dobrze skomunikowana z centrum miasta poprzez liczne trasy autobusowe oraz tramwajowe. Znajduję się tu również międzynarodowe lotnisko – Copernicus Airport.
Opis oferty
Nowe 1-pokojowe mieszkanie na sprzedaż o powierzchni 28,98 m² znajduje się w nowo wybudowanej inwestycji deweloperskiej Pilczycka Vita na Pilczycach, ul. Pilczycka 195 (7.5 km od centrum Wrocławia).
Inwestycja została zrealizowana przez Develia.
Cała inwestycja składa się z 2 budynków, w których łącznie znajduje się 195 nowych mieszkań.
Na sprzedaż pozostają 194 oferty o powierzchni od 28 do 91 m².
W budynkach jest 5 kondygnacji naziemnych oraz 1 kondygnacja podziemna.
Inwestycja Pilczycka Vita jest w trakcie budowy z planowanym na 4 kw. 2027 roku terminem oddania do użytkowania.
Nowe mieszkanie o oznaczeniu AB0004 znajduje się na parterze i jest 1-poziomowe. Pomieszczenia mają 300 centymetrów wysokości. W mieszkaniu znajduje się 1 pokój.
Do mieszkania przewidziano możliwość zakupu komórki lokatorskiej, którą można zagospodarować na spiżarnię, warsztat czy składzik.
Okna w mieszkaniu wychodzą na wschód.
Wschodnia orientacja zapewnia dostęp do łagodnego porannego światła, idealnego dla rozpoczęcia dnia pełnego energii. Wnętrza pozostają jasne, ale nieprzegrzane, co sprzyja utrzymaniu komfortowej temperatury. Przebywanie w pomieszczeniu z oknami na wschód inspiruje do działania i pozytywnie wpływa na poranny rytuał.
Dla przyszłych mieszkańców Pilczycka Vita deweloper przewidział miejsca postojowe podziemne, miejsca postojowe naziemne.
Dzięki temu przyszli właściciele nie będą musieli poszukiwać wolnej przestrzeni parkingowej. Dodatkowo, miejsce postojowe w garażu podziemnym zabezpiecza przed niekorzystnymi warunkami atmosferycznymi.
Opis Inwestycji
Pilczycka Vita to dwa nowoczesne budynki mieszkalne o 5 kondygnacjach, w których łącznie przewidziano 195 mieszkań o powierzchniach 28 -91 m² (1–4 pokoje). Lokale na parterze mają ponadstandardową wysokość 3 m, a wszystkie mieszkania wyróżniają się funkcjonalnymi układami i dużymi oknami, wyposażone są w instalację smarthome.
Do dyspozycji mieszkańców są garaże podziemne z komórkami lokatorskimi, naziemne miejsca parkingowe, dwa miejsca z ładowarkami do aut elektrycznych oraz stojaki na rowery. Teren osiedla zostanie wzbogacony o plac zabaw dla dzieci, zielone dachy, deszczowe ogrody, budki dla ptaków oraz zbiorniki do odzyskiwania wody deszczowej, a części wspólne oświetlone będą energooszczędnymi lampami.
Mieszkanie znajduje się w inwestycji Pilczycka Vita, w której znajdują się w sprzedaży jeszcze 32 podobne nowe mieszkania.
Develia
Strona internetowa inwestycjiAdres biura sprzedaży:
ul. gen. Romualda Traugutta 45, 50-416 Wrocław, City Forum – City 1Godziny otwarcia biura sprzedaży:
- Poniedziałek: 09:00 - 18:00
- Wtorek: 09:00 - 18:00
- Środa: 09:00 - 18:00
- Czwartek: 09:00 - 18:00
- Piątek: 09:00 - 18:00
- Sobota: 10:00 - 15:00





