Lokal użytkowy na sprzedaż 1 pokój o powierzchni 135,6 m² - numer F/U61 586 520 zł11 700 zł/m2Estymowana rata kredytu: 8 023 zł
Estymowana rata kredytu: 8 023 zł
Inwestycja:
Goplana budynek FDeweloper:
Colian Developer
Inwestycja:
Goplana budynek FDeweloper:
Colian DeveloperPoznań, Jeżyce, Osiedle Jeżyce, ul. św. Wawrzyńca
Poznań, Jeżyce, Osiedle Jeżyce, ul. św. Wawrzyńca
:format(jpg)/properties/planimagepage/image/1070566/031a7b.png)
:format(jpg)/offers/offer/None/main_image/goplana-budynek-f_fa2b09.jpg)
1 zdjęcie
Termin oddania
Gotowe
Ilość pokoi
1 pokój
Metraż
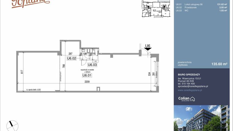
135,6 m²
Piętro
Parter
Wysokość pomieszczeń
280 cm wysokości
Ilość poziomów
1 poziom
Oznaczenie oferty
F/U6
Budynek i otoczenie
Miejsca postojowe
- miejsca postojowe podziemne
Standard wykończenia
standard deweloperski
Ogrzewanie
miejskie
Realizacja inwestycji
Udogodnienia
Przyroda
Charakterystyka energetyczna nieruchomości
- Jednostkowa wielkość emisji CO2 (E CO2): ECO2= 0 t CO2/(m2 * rok)
- Wskaźnik rocznego zapotrzebowania na energię końcową (EK): EK= 0 kWh/(m2 * rok)
- Wskaźnik rocznego zapotrzebowania na nieodnawialną energię pierwotną (EP): EP= 0 kWh/(m2 * rok)
- Wskaźnik rocznego zapotrzebowania na energię użytkową (EU): EU= 0 kWh/(m2 * rok)
Rezerwacja i finanse
Rodzaj własności
Wysokość czynszu
Warunki rezerwacji
Zabezpieczenie środków
Zdjęcia z budowy
Zobacz na jakim etapie budowy jest ta inwestycja
Lokalizacja inwestycji
Stacja kolejowa - Poznań Główny - 1598 m
Przystanek Tramwajowy - 524 m
Przystanek Autobusowy - 162 m
Dojazd do centrum: pokaż
W pobliżu 1 km od tej inwestycji znajdują się:
110 kawiarni i restauracji, 83 sklepy, 41 obiektów sportowych, 32 placówki medyczne, 31 placówek edukacyjnych, 20 placów zabaw
Przeczytaj więcej o lokalizacji
Jeżyce to dzielnica Poznania rozmieszczona na planie niemal idealnego kwadratu. Na jego zachodzie można znaleźć Jezioro Kerskie, natomiast południową granicę wyznacza obszar Lotniska Poznań-Ławica. Na wschodzie dzielnicę ogranicza ul. Obornicka a na północy osiedla Suchy Las i Jelonek. Jeżyce składają się głównie z zabytkowych, przedwojennych kamienic, które coraz częściej dzięki renowacji okazują się być perełkami architektonicznymi miasta. Na Jeżycach na powierzchni 2 km kw mieszka ok. 24 tys. mieszkańców. Największy zakład opieki zdrowotnej to Szpital Rehabilitacyjny dla dzieci. W odległości ok. 500 metrów na wschód mieści się wydział Nauk Politycznych i Dziennikarstwa Uniwersytetu im. Adama Mickiewicza. W odległości ok. 1 km od granic dzielnicy można znaleźć liczne centra handlowe, kina i teatry. Największe centrum handlowe okolicy to Galeria Podolany, jednak w odległości ok. 1 km na południe i wschód można znaleźć inne sklepy wielkopowierzchniowe, takie jak CH Poznań Plaza, Galeria Pestka czy King Cross Marcelin.
Opis oferty
Nowy lokal użytkowy na sprzedaż o powierzchni 135,6 m² znajduje się w nowo budowanej inwestycji deweloperskiej Goplana budynek F na Jeżycach, ul. św. Wawrzyńca (1.9 km od centrum Poznania).
Inwestycja jest realizowana przez Colian Developer.
Cała inwestycja składa się z 1 budynku, w którym łącznie znajdują się 7 nowych lokali użytkowych.
Budynek posiada 9 kondygnacji naziemnych oraz 2 kondygnacje podziemne.
Inwestycja Goplana budynek F została wybudowana i oddana do użytkowania w 2 kw. 2025 roku.
Lokal użytkowy o oznaczeniu F/U6 znajduje się na parterze budynku, a wysokość pomieszczeń wynosi 280 cm.
Dla przyszłych właścicieli Colian Developer przewidział: miejsca postojowe podziemne.
Cena ofertowa brutto lokalu użytkowego wynosi 1 586 520 zł (11 700 zł/m²).
Opis Inwestycji
Kameralny budynek
Tereny zielone
W dawnych budynkach fabryki Goplana wciąż jeszcze unosi się aromat czekolady. Może już na stałe nasyci te mury? Jednak największym atutem dawnej fabryki dziś jest jej lokalizacja – to niemal 6 hektarów w najbardziej rozpoznawalnej dzielnicy Poznania – na kultowych Jeżycach, tuż przy ulicy Kościelnej, u bram Parku Sołackiego.
Goplana to kilkuetapowy projekt zakładający stworzenie nowoczesnego śródmiejskiego osiedla. W niedalekiej przyszłości powstaną tu nowe kwartały, a pomiędzy nimi place, zielone skwery i deptaki. Z okien, balkonów i tarasów ostatnich kondygnacji roztacza się piękny widok na Sołacz.
Colian Developer
Strona internetowa inwestycjiAdres biura sprzedaży:
ul. Św. Wawrzyńca 15/U1, PoznańGodziny otwarcia biura sprzedaży:
- Poniedziałek: 09:00 - 17:00
- Wtorek: 09:00 - 17:00
- Środa: 09:00 - 17:00
- Czwartek: 09:00 - 17:00
- Piątek: 09:00 - 17:00





