Mieszkanie na sprzedaż 2 pokoje o powierzchni 44,13 m² numer 8E-01
Inwestycja:
Platanowy Park etap IVDeweloper:
CDI Konsultanci Budowlani Sp. z o.o.
Inwestycja:
Platanowy Park etap IVDeweloper:
CDI Konsultanci Budowlani Sp. z o.o.Bydgoszcz, Leśne, ul. Dwernickiego 8E
Bydgoszcz, Leśne, ul. Dwernickiego 8E
Termin oddania
4 kw. 2026
Ilość pokoi
2 pokoje
Metraż
44,13 m²
Piętro
1 piętro
Kuchnia
otwarta kuchnia
Wysokość pomieszczeń
od 265 do 270 cm wysokości
Ilość poziomów
1 poziom
Oznaczenie oferty
8E-01

Raport o deweloperze
Poznaj dewelopera bliżej! Pobierz raport, w którym znajdziesz kluczowe informacje o firmie, jej doświadczeniu, nagrodach oraz aktualnych i zrealizowanych inwestycjach.
Budynek i otoczenie
Miejsca postojowe | |
|---|---|
Komórki lokatorskie | dostępne: (1,73-7,45) w cenie 6000 zł/m2 |
Standard wykończenia | standard deweloperski podwyższony Ogrzewanie miejskie - indywidualne stacje mieszkaniowe |
Realizacja inwestycji | rozpoczęcie budowy w 4 kw. 2023 roku, planowane oddanie do użytkowania w 4 kw. 2026 roku |
Udogodnienia | usługi w budynku, winda, plac zabaw, monitoring |
Przyroda | w okolicy inwestycji znajduje się park |
Charakterystyka energetyczna nieruchomości | informacja u dewelopera |
Rezerwacja i finanse
Rodzaj własności | Odrębna własność z własnością gruntu |
|---|---|
Wysokość czynszu | informacja u dewelopera |
Warunki rezerwacji | Informacja u dewelopera |
Zabezpieczenie środków | Otwarty mieszkaniowy rachunek powierniczy |
Zdjęcia z budowy
Zobacz na jakim etapie budowy jest ta inwestycja
Lokalizacja inwestycji
Stacja kolejowa - Bydgoszcz Leśna - 825 m
Przystanek Tramwajowy - 487 m
Przystanek Autobusowy - 195 m
Dojazd do centrum: pokaż
W pobliżu 1 km od tej inwestycji znajdują się:
12 kawiarni i restauracji, 25 sklepów, 39 obiektów sportowych, 31 placówek medycznych, 38 placówek edukacyjnych, 21 placów zabaw
Przeczytaj więcej o lokalizacji
Bydgoszcz to miasto powiatowe będące stolicą woj. kujawsko-pomorskiego. Przepływają tędy rzeki Wisła i Brda. Zabudowa jest zróżnicowana. Śródmieście wyróżnia się zwartym budownictwem i wieloma zabytkowymi kamienicami. Dalej od centrum pojawiają się budynki wielorodzinne, a na obrzeżach miasta liczne domy jednorodzinne. Przy północnej i południowej granicy rozciągają się rozległe tereny zielone, m.in. Las Gdański. Bydgoszcz to ośrodek gospodarczy, akademicki i kulturowy, w którym mieści się kilkanaście szkół wyższych, teatr, filharmonia i opera. Mieszkańcy mają dostęp do bogatej oferty medycznej – działa tu kilkanaście szpitali. Prężnie rozwija się sektor handlowo-usługowy i działa Bydgoski Park Przemysłowo-Technologiczny. Bydgoszcz jest rewelacyjnie skomunikowany z największymi miastami kraju. Znajduje się tu port lotniczy, a liczne drogi wojewódzkie i krajowe zapewniają dogodną komunikację drogową. Na obszarze całego miasta działa komunikacja publiczna.
Opis oferty
Nowe 2-pokojowe mieszkanie na sprzedaż o powierzchni 44,13 m² znajduje się w nowo budowanej inwestycji deweloperskiej Platanowy Park etap IV na Leśnych, ul. Dwernickiego 8E (2 km od centrum Bydgoszczy).
Inwestycja jest realizowana przez CDI Konsultanci Budowlani Sp. z o.o.
Cała inwestycja składa się z 1 budynku, w którym łącznie znajduje się 180 nowych mieszkań.
Na sprzedaż pozostaje 158 ofert o powierzchni od 27 do 109 m².
W budynku jest od 8 do 10 kondygnacji naziemnych oraz 1 kondygnacja podziemna.
Inwestycja Platanowy Park etap IV jest w trakcie budowy z planowanym na 4 kw. 2026 roku terminem oddania do użytkowania.
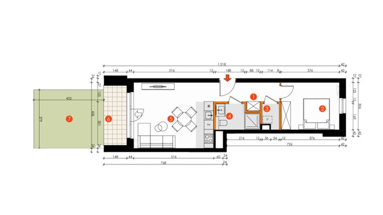
Nowe mieszkanie o oznaczeniu 8E-01 znajduje się na 1 piętrze i jest 1-poziomowe. Pomieszczenia mają od 265 do 270 centymetrów wysokości. W mieszkaniu znajdują się 2 pokoje.
Dla przyszłych mieszkańców Platanowy Park etap IV deweloper przewidział miejsca postojowe podziemne, miejsca postojowe naziemne.
Dzięki temu przyszli właściciele nie będą musieli poszukiwać wolnej przestrzeni parkingowej. Dodatkowo, miejsce postojowe w garażu podziemnym zabezpiecza przed niekorzystnymi warunkami atmosferycznymi.
Opis Inwestycji
Tereny zielone
Platanowy Park to multifunkcyjne osiedle powstające na niemal 10 -hektarach powierzchni, w kwartale ulic Sułkowskiego, Dwernickiego, Kamiennej i Leśnej. Planowana zabudowa obejmuje zarówno funkcje mieszkaniowe, jak i powierzchnie biurowe, handlowe, usługowe, tereny zielone, drogi dojazdowe i miejsca postojowe.
Nowoczesna, przestrzenna architektura łącząca funkcjonalność z wysokimi walorami estetycznymi. Inwestycja idealna dla osób ceniących sobie komfort mieszkania na cichym osiedlu, z jednoczesnym dostępem do atrakcji i rozrywek centrum miasta.
Standardy osiedla
Jako długoletni deweloper posiadający ogromne doświadczenie w budowie mieszkań wiemy jak ważne dla użytkowników jest standard wykonania. Używamy wysokiej jakości materiałów budowlanych i wykończeniowych. Przywiązujemy uwagę do elementów, które będą towarzyszyć mieszkańcom w codziennym życiu, aby gwarantowały maksymalne zadowolenie, bezusterkowe użytkowanie oraz oszczędność przy ich eksploatacji. Istotne jest dla nas również bezpieczeństwo mieszkańców naszych inwestycji. Osiedla pomimo różnych lokalizacji, charakteryzują się przemyślaną infrastrukturą budowlaną oraz zagospodarowanymi terenami zieleni.
Infrastruktura
Kompleksowo zagospodarowany teren wokół budynków z licznymi nasadzeniami, wyniesione patio z ograniczeniem ruchu samochodowego.
Mieszkanie znajduje się w inwestycji Platanowy Park etap IV, w której znajduje się w sprzedaży jeszcze 101 podobnych nowych mieszkań.
CDI Konsultanci Budowlani Sp. z o.o.
Strona internetowa inwestycjiAdres biura sprzedaży:
Plac Kościeleckich 3, klatka A 85-033 BydgoszczGodziny otwarcia biura sprzedaży:
- Poniedziałek: 08:00 - 16:00
- Wtorek: 08:00 - 16:00
- Środa: 08:00 - 16:00
- Czwartek: 08:00 - 16:00
- Piątek: 08:00 - 16:00





