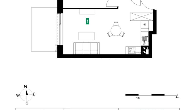
Mieszkanie na sprzedaż 2 pokoje o powierzchni 41,93 m² numer A.A.02
Inwestycja:
Park ŚliwowaDeweloper:
Budus-Developer Sp z o.o.
Inwestycja:
Park ŚliwowaDeweloper:
Budus-Developer Sp z o.o.Wrocław, Fabryczna, Maślice, Al. Śliwowa 36
Wrocław, Fabryczna, Maślice, Al. Śliwowa 36
Termin oddania
1 kw. 2027
Ilość pokoi
2 pokoje
Metraż
41,93 m²
Piętro
Parter
Kuchnia
otwarta kuchnia
Wysokość pomieszczeń
od 260 do 280 cm wysokości
Ilość poziomów
1 poziom
Oznaczenie oferty
A.A.02

Raport o deweloperze
Poznaj dewelopera bliżej! Pobierz raport, w którym znajdziesz kluczowe informacje o firmie, jej doświadczeniu, nagrodach oraz aktualnych i zrealizowanych inwestycjach.
Budynek i otoczenie
Miejsca postojowe | |
|---|---|
Komórki lokatorskie | dostępne |
Standard wykończenia | standard deweloperski |
Realizacja inwestycji | oddanie do użytkowania w 1 kw. 2027 roku |
Udogodnienia | plac zabaw, teren ogrodzony, winda, rekuperacja |
Przyroda | w okolicy inwestycji znajduje się park |
Charakterystyka energetyczna nieruchomości | informacja u dewelopera |
Rezerwacja i finanse
Rodzaj własności | informacja u dewelopera |
|---|---|
Wysokość czynszu | informacja u dewelopera |
Warunki rezerwacji | rezerwacja na kilka dni |
Zabezpieczenie środków | Otwarty mieszkaniowy rachunek powierniczy |
Zdjęcia z budowy
Zobacz na jakim etapie budowy jest ta inwestycja
Lokalizacja inwestycji
Stacja kolejowa - Wrocław Stadion - 2161 m
Przystanek Tramwajowy - 1531 m
Przystanek Autobusowy - 300 m
Dojazd do centrum: pokaż
W pobliżu 1 km od tej inwestycji znajdują się:
9 kawiarni i restauracji, 15 sklepów, 10 obiektów sportowych, 6 placówek edukacyjnych, 23 place zabaw
Przeczytaj więcej o lokalizacji
Wrocław Fabryczna to największa dzielnica w mieście. Obejmuje całą północno - zachodnią część miasta. Zamieszkuję ją blisko 200 tysięcy mieszkańców. Na terenie Fabrycznej znajduję się najwięcej osiedli mieszkaniowych. Ich nazwy pochodzą od wsi i miast, które włączane były w granice administracyjne miasta. Przy ulicy Trzemielowickiej znajdziemy dawne obiekty koszarowe. Jest to też dzielnica rekreacyjna, głównie ze względu na dużą ilość terenów zielonych takich jak Las Leśnicki czy Las Ratyński. Wschodnia granica tej dzielnicy przebiega wzdłuż Odry. Ceniący sobie zdrowy tryb życia znajdą tu wiele obiektów sportowych jak Centrum Basenowo – Sportowe czy liczne orliki, kluby fitness i siłownie. W północnej części dzielnicy znajduje się Stadion Miejski, który był jedną z aren Euro 2012. Przez Fabryczną przebiega droga krajowa nr 94 oraz obwodnica miasta. Dzielnica jest dobrze skomunikowana z centrum miasta poprzez liczne trasy autobusowe oraz tramwajowe. Znajduję się tu również międzynarodowe lotnisko – Copernicus Airport.
Opis oferty
Nowe 2-pokojowe mieszkanie na sprzedaż o powierzchni 41,93 m² znajduje się w nowo wybudowanej inwestycji deweloperskiej Park Śliwowa na Maślicach (8.6 km od centrum Wrocławia).
Inwestycja została zrealizowana przez Budus-Developer Sp z o.o.
Cała inwestycja składa się z 1 budynku, w którym łącznie znajdują się 54 nowe mieszkania.
Na sprzedaż pozostaje 31 ofert o powierzchni od 42 do 65 m².
W budynku są 3 kondygnacje naziemne oraz 1 kondygnacja podziemna.
Inwestycja Park Śliwowa jest w trakcie budowy z planowanym na 1 kw. 2027 roku terminem oddania do użytkowania.
Nowe mieszkanie o oznaczeniu A.A.02 znajduje się na parterze i jest 1-poziomowe. Pomieszczenia mają od 260 do 280 centymetrów wysokości. W mieszkaniu znajdują się 2 pokoje.
Dla przyszłych mieszkańców Park Śliwowa deweloper przewidział miejsca postojowe podziemne.
Dzięki temu przyszli właściciele nie będą musieli poszukiwać wolnej przestrzeni parkingowej. Dodatkowo, miejsce postojowe w garażu podziemnym zabezpiecza przed niekorzystnymi warunkami atmosferycznymi.
Opis Inwestycji
Blisko zieleni, bliżej natury, najbliżej Twoich potrzeb
Park Śliwowa to kompleks dwóch nowoczesnych budynków położonych bezpośrednio przy Parku Świetlików. Ciesz się ciszą, świeżym powietrzem i bliskością natury, mając na wyciągnięcie ręki przestronne tereny zielone, które pozwolą Ci na pełny odpoczynek o każdej porze dnia.
Zalety inwestycji:
- Bliskość natury - Osiedle położone bezpośrednio przy Parku Świetlików, w cichej i spokojnej okolicy.
- Komfortowa okolica - Blisko sklepów, szkół i innych udogodnień.
- Przestronne balkony i ogródki - Mieszkania z ogródkami na parterze i przestronnymi balkonami na wyższych kondygnacjach.
- Nowoczesne, jasne przestrzenie - Dzięki przestronnym oknom wnętrza są doskonale doświetlone naturalnym światłem.
- Przyjazna infrastruktura - Ścieżki spacerowe, rowerownie oraz nowy plac zabaw na terenie osiedla.
- Wygoda parkowania - 141 miejsc parkingowych dostępnych na osiedlu.
Mieszkanie znajduje się w inwestycji Park Śliwowa, w której znajdują się w sprzedaży jeszcze 4 podobne nowe mieszkania.
Budus-Developer Sp z o.o.
Strona internetowa inwestycjiAdres biura sprzedaży:
ul. Ślężna 86 53-306 Wrocław




