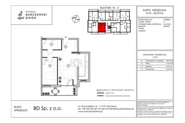
Mieszkanie na sprzedaż 2 pokoje o powierzchni 54,37 m² numer M10
Inwestycja:
Osiedle Barczewski Dwór etap IIIDeweloper:
BD Sp. z o.o.
Inwestycja:
Osiedle Barczewski Dwór etap IIIDeweloper:
BD Sp. z o.o.Barczewo, ul. Magnacka 3
Barczewo, ul. Magnacka 3
Termin oddania
1 kw. 2027
Ilość pokoi
2 pokoje
Metraż
54,37 m²
Piętro
1 piętro
Wysokość pomieszczeń
od 260 do 280 cm wysokości
Ilość poziomów
1 poziom
Oznaczenie oferty
M10

Raport o deweloperze
Poznaj dewelopera bliżej! Pobierz raport, w którym znajdziesz kluczowe informacje o firmie, jej doświadczeniu, nagrodach oraz aktualnych i zrealizowanych inwestycjach.
Budynek i otoczenie
Miejsca postojowe | |
|---|---|
Komórki lokatorskie | dostępne |
Standard wykończenia | standard deweloperski Ogrzewanie gazowe |
Realizacja inwestycji | rozpoczęcie budowy w 1 kw. 2025 roku, planowane oddanie do użytkowania w 1 kw. 2027 roku |
Udogodnienia | winda, usługi w budynku, plac zabaw |
Przyroda | informacja u dewelopera |
Charakterystyka energetyczna nieruchomości | informacja u dewelopera |
Rezerwacja i finanse
Rodzaj własności | Odrębna własność z własnością gruntu |
|---|---|
Wysokość czynszu | informacja u dewelopera |
Warunki rezerwacji | Informacja u dewelopera |
Zabezpieczenie środków | Informacja u dewelopera |
Zdjęcia z budowy
Zobacz na jakim etapie budowy jest ta inwestycja
Lokalizacja inwestycji
Stacja kolejowa - Barczewo - 1208 m
Przystanek Autobusowy - 667 m
Dojazd do centrum Olsztyna: pokaż
W pobliżu 1 km od tej inwestycji znajdują się:
1 kawiarnia lub restauracja, 9 sklepów, 9 obiektów sportowych, 3 placówki edukacyjne, 2 place zabaw
Przeczytaj więcej o lokalizacji
Barczewo to miasto o powierzchni 4,6 km2 i liczbie ludności ok. 7 400. Leży w województwie warmińsko-mazurskim nad rzekami Pisą Warmińską oraz Kiermas. Słynie z bardzo dużej ilości zabytków, które urozmaicają jego miejską architekturę. To malownicze miasto słynie z zabudowy niskiej, wśród której dominują kamienice i bloki. Ze względu na ukształtowanie terenu, wokół Barczewa znajduje się bardzo dużo jezior, które są jedną z wielu przyczyn intensywnego rozwoju gospodarczego miasta. Funkcjonuje tu wiele firm drobno przemysłowych z branży drzewnej, metalowej, chemicznej, włókienniczej oraz spożywczej. Interesy ułatwia droga krajowa nr 16, którą można szybko dojechać do Litwy. Blisko miasta przebiegają także inne drogi krajowe, prowadzące albo za wschodnią granicę, albo do największych miast Polski, np. Warszawy i Gdańska. Barczewo to mocno rozwinięty ośrodek kulturalno-sportowo-turystyczny, w którym odbywa się wiele imprez i wydarzeń kulturalnych.
Opis oferty
Nowe 2-pokojowe mieszkanie na sprzedaż o powierzchni 54,37 m² znajduje się w nowo budowanej inwestycji deweloperskiej Osiedle Barczewski Dwór etap III w Barczewie, ul. Magnacka 3 (9 km od Olsztyna).
Inwestycja jest realizowana przez BD Sp. z o.o.
Cała inwestycja składa się z 1 budynku, w którym łącznie znajdują się 42 nowe mieszkania.
Na sprzedaż pozostaje 26 ofert o powierzchni od 37 do 108 m².
W budynku jest 5 kondygnacji naziemnych oraz 1 kondygnacja podziemna.
Inwestycja Osiedle Barczewski Dwór etap III jest w trakcie budowy z planowanym na 1 kw. 2027 roku terminem oddania do użytkowania.
Nowe mieszkanie o oznaczeniu M10 znajduje się na 1 piętrze i jest 1-poziomowe. Pomieszczenia mają od 260 do 280 centymetrów wysokości. W mieszkaniu znajdują się 2 pokoje.
Dla przyszłych mieszkańców Osiedle Barczewski Dwór etap III deweloper przewidział miejsca postojowe podziemne.
Dzięki temu przyszli właściciele nie będą musieli poszukiwać wolnej przestrzeni parkingowej. Dodatkowo, miejsce postojowe w garażu podziemnym zabezpiecza przed niekorzystnymi warunkami atmosferycznymi.
Opis Inwestycji
Osiedle zbudowane z myślą o Tobie
Nasi projektanci zadbali, aby układy mieszkań były funkcjonalne a dzięki dużym przeszkleniom doskonale doświetlone. W apartamentach na górnych kondygnacjach cieszył będzie przyszłych mieszkańców panoramiczny widok na okoliczną zieleń i lasy.
Do każdego mieszkania przylega duży balkon ok. 9 m2 a mieszkania na parterze będą miały przynależne, ogrodzone ogródki o powierzchniach od 43 m2 do 80 m2 , w których przyszły właściciel może stworzyć zieloną oazę – strefę relaksu i odpoczynku.
Mieszkanie znajduje się w inwestycji Osiedle Barczewski Dwór etap III, w której znajduje się w sprzedaży jeszcze 14 podobnych nowych mieszkań.





