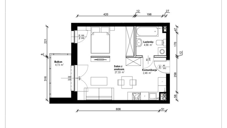
Mieszkanie na sprzedaż 1 pokój o powierzchni 34,98 m² numer B.1.20.1a
Inwestycja:
ATRIUMDeweloper:
art.Locum S.A.
Inwestycja:
ATRIUMDeweloper:
art.Locum S.A.Łódź, Polesie, Stare Polesie, ul. kpt. Stefana Pogonowskiego 44/46
Łódź, Polesie, Stare Polesie, ul. kpt. Stefana Pogonowskiego 44/46
Termin oddania
4 kw. 2026
Ilość pokoi
1 pokój
Metraż
34,98 m²
Piętro
1 piętro
Strona świata
zachód
Powierzchnie dodatkowe
Balkon
Kuchnia
otwarta kuchnia
Wysokość pomieszczeń
260 cm wysokości
Ilość poziomów
1 poziom
Oznaczenie oferty
B.1.20.1a

Raport o deweloperze
Poznaj dewelopera bliżej! Pobierz raport, w którym znajdziesz kluczowe informacje o firmie, jej doświadczeniu, nagrodach oraz aktualnych i zrealizowanych inwestycjach.
Budynek i otoczenie
Miejsca postojowe | |
|---|---|
Komórki lokatorskie | dostępne: wielkość: 3,14-6,78 m2 |
Standard wykończenia | standard deweloperski Ogrzewanie miejskie |
Realizacja inwestycji | rozpoczęcie budowy w 3 kw. 2024 roku, planowane oddanie do użytkowania w 4 kw. 2026 roku |
Udogodnienia | monitoring, teren ogrodzony, usługi w budynku, winda, rowerownia |
Przyroda | informacja u dewelopera |
Charakterystyka energetyczna nieruchomości | informacja u dewelopera |
Rezerwacja i finanse
Rodzaj własności | Odrębna własność z własnością gruntu |
|---|---|
Wysokość czynszu | informacja u dewelopera |
Warunki rezerwacji | umowa rezerwacyjna |
Zabezpieczenie środków | Otwarty mieszkaniowy rachunek powierniczy |
Zdjęcia z budowy
Zobacz na jakim etapie budowy jest ta inwestycja
Lokalizacja inwestycji
Stacja kolejowa - Łódź Kaliska - 1402 m
Przystanek Tramwajowy - 414 m
Przystanek Autobusowy - 93 m
Dojazd do centrum: pokaż
W pobliżu 1 km od tej inwestycji znajdują się:
103 kawiarnie i restauracje, 88 sklepów, 32 obiekty sportowe, 20 placówek medycznych, 47 placówek edukacyjnych, 33 place zabaw
Przeczytaj więcej o lokalizacji
Łódź Polesie to dzielnica Łodzi o powierzchni 46 km. kw., w której mieszka ok. 140 tys. osób. W centralnym obszarze dzielnicy położony jest Park im. J. Piłsudskiego, dworzec Łódź Kaliska i droga E75. Dzielnicę okala od wschodu rzeka Ner, od południa port lotniczy im. W. Reymonta a od północy ul. Szczecińska i Rąbieńska. Polesie dzieli się na osiedla Złotno, Zdrowie-Mania, Karolew-Retkinia Wschód, Osiedla im. Montwiłła-Mireckiego, Retkinia Zachód, Lublinek, Stare Polesie i Koziny. O jej przyjaznym mieszkańcom charakterze świadczy położony tu największy łódzki park, Ogród Botaniczny, las Lublinek i 5 supermarketów i liczne punkty usługowe. Do tego dochodzi ciekawa oferta szkół wyższych z kampusem Politechniki Łódzkiej na czele.
Opis oferty
Nowe 1-pokojowe mieszkanie na sprzedaż o powierzchni 34,98 m² znajduje się w nowo budowanej inwestycji deweloperskiej ATRIUM w Starym Polesiu, ul. kpt. Stefana Pogonowskiego 44/46 (1.3 km od centrum Łodzi).
Inwestycja jest realizowana przez art.Locum S.A.
Cała inwestycja składa się z 1 budynku, w którym łącznie znajduje się 165 nowych mieszkań.
Na sprzedaż pozostaje 150 ofert o powierzchni od 29 do 82 m².
W budynku jest od 4 do 6 kondygnacji naziemnych oraz 1 kondygnacja podziemna.
Inwestycja ATRIUM jest w trakcie budowy z planowanym na 4 kw. 2026 roku terminem oddania do użytkowania.
Nowe mieszkanie o oznaczeniu B.1.20.1a znajduje się na 1 piętrze i jest 1-poziomowe. Pomieszczenia mają 260 centymetrów wysokości. W mieszkaniu znajduje się 1 pokój.
Okna w mieszkaniu wychodzą na zachód.
Zachodnia ekspozycja to gwarancja intensywnego popołudniowego światła, które nadaje wnętrzom przytulności i ciepła. Idealne dla miłośników słonecznych wieczorów, którzy pragną cieszyć się pięknymi zachodami słońca we własnym domu. Zachodnie światło podkreśla kolory i faktury w aranżacji wnętrz, tworząc atmosferę sprzyjającą relaksowi po długim dniu.
Dla przyszłych mieszkańców ATRIUM deweloper przewidział miejsca postojowe podziemne.
Dzięki temu przyszli właściciele nie będą musieli poszukiwać wolnej przestrzeni parkingowej. Dodatkowo, miejsce postojowe w garażu podziemnym zabezpiecza przed niekorzystnymi warunkami atmosferycznymi.
Opis Inwestycji
Okazyjna cena
Tereny zielone
Pow. dodatkowe
Poznaj adres wielu możliwości
- Możesz mieszkać w cichej, spokojnej okolicy nie rezygnując z zalet mieszkania w centrum.
- Wolisz nietuzinkowe mieszkanie z antresolą czy klasyczne jednopoziomowe?
- Masz różne opcje do wyboru: mieszkanie z ogródkiem, balkonem lub przestronnym tarasem.
- Singiel/ka, para czy rodzina z dziećmi - każdy tu znajdzie mieszkanie spełniające jego potrzeby.
- Czy to mieszkanie na własne potrzeby, czy w celach inwestycyjnych, jego wartość z czasem wzrośnie.
- Chcesz otworzyć swój biznes i szukasz lokalu usługowego? Zapraszamy - mamy trzy w ofercie!
Mieszkanie znajduje się w inwestycji ATRIUM, w której znajduje się w sprzedaży jeszcze 51 podobnych nowych mieszkań.
art.Locum S.A.
Strona internetowa inwestycjiAdres biura sprzedaży:
ul. Piotrkowska 172/180, ŁódźGodziny otwarcia biura sprzedaży:
- Poniedziałek: 08:00 - 16:00
- Wtorek: 08:00 - 16:00
- Środa: 08:00 - 16:00
- Czwartek: 08:00 - 16:00
- Piątek: 08:00 - 16:00
Artykuły powiązane:
:format(jpg)/articles/gallery/image/7080/b83566.jpg)
Przestrzeń wspólna na nowych osiedlach
Deweloperzy coraz częściej zdają o estetyczną i funkcjonalną przestrzeń wspólną na nowoczesnych osiedlach - sprawdź dlaczego! Osoby myślące o zakupie swojego mieszkania coraz częściej przykładają uwagę nie tylko do czynników i parametrów charakteryzujących sam lokal, lecz także do projektu osiedla...
27 października 2016
Polski Związek Firm Deweloperskich Wrocław





