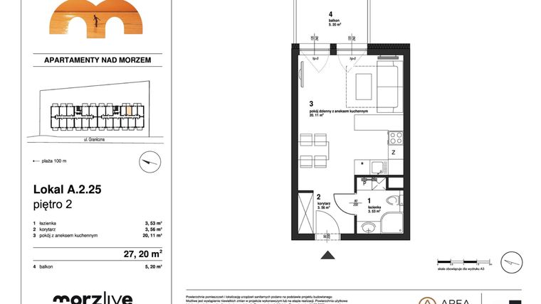
Apartament na sprzedaż 1 pokój o powierzchni 27,2 m² numer A.2.25
Inwestycja:
MorzliveDeweloper:
Area Development
Inwestycja:
MorzliveDeweloper:
Area Developmentkołobrzeski, Ustronie Morskie, ul. Graniczna 4
kołobrzeski, Ustronie Morskie, ul. Graniczna 4
Promocje
Promocja
Ostatnie gotowe apartamenty w sprzedaży - negocjuj rabat!
Szczegóły w biurze sprzedaży.
Termin oddania
Gotowe
Ilość pokoi
1 pokój
Metraż
27,2 m²
Piętro
2 piętro
Powierzchnie dodatkowe
Balkon
Kuchnia
otwarta kuchnia
Wysokość pomieszczeń
od 260 do 280 cm wysokości
Ilość poziomów
1 poziom
Oznaczenie oferty
A.2.25

Raport o deweloperze
Poznaj dewelopera bliżej! Pobierz raport, w którym znajdziesz kluczowe informacje o firmie, jej doświadczeniu, nagrodach oraz aktualnych i zrealizowanych inwestycjach.
Budynek i otoczenie
Miejsca postojowe | |
|---|---|
Komórki lokatorskie | dostępne |
Standard wykończenia | wykończenie pod klucz, standard deweloperski możliwość wykończenia pod klucz |
Realizacja inwestycji | rozpoczęcie budowy w 2 kw. 2022 roku, inwestycja została oddana do użytkowania w 2 kw. 2024 roku |
Udogodnienia | plac zabaw, monitoring, teren ogrodzony, basen, klimatyzacja, recepcja, usługi w budynku, winda, rowerownia, inteligentny dom, patio / dziedziniec |
Przyroda | w okolicy inwestycji znajduje się morze, rezerwat przyrody |
Charakterystyka energetyczna nieruchomości |
|
Rezerwacja i finanse
Rodzaj własności | Odrębna własność z własnością gruntu |
|---|---|
Wysokość czynszu | informacja u dewelopera |
Warunki rezerwacji | Informacja u dewelopera |
Zabezpieczenie środków | informacja u dewelopera |
Zdjęcia z budowy
Zobacz na jakim etapie budowy jest ta inwestycja
Lokalizacja inwestycji
Stacja kolejowa - Ustronie Morskie - 2640 m
Przystanek Autobusowy - 288 m
Dojazd do centrum Kołobrzegu: pokaż
W pobliżu 1 km od tej inwestycji znajdują się:
18 kawiarni i restauracji, 9 sklepów, 18 obiektów sportowych, 2 placówki edukacyjne, 17 placów zabaw
Przeczytaj więcej o lokalizacji
Miejscowość letniskowa nad Morzem Bałtyckim, w woj. zachodniopomorskim, powiat kołobrzeski, gmina Ustronie Morskie. Miejscowość z letnim kąpieliskiem morskim i z przystanią morską, położona nad Zatoką Pomorską, na Wybrzeżu Słowińskim, pomiędzy Kołobrzegiem i Koszalinem. Miejscowość jest siedzibą gminy Ustronie Morskie.
Opis oferty
Nowy 1-pokojowy apartament na sprzedaż o powierzchni 27,2 m² znajduje się w nowo budowanej inwestycji deweloperskiej Morzlive w Ustroniu Morskim, ul. Graniczna 4 (6.5 km od Kołobrzegu).
Inwestycja jest realizowana przez Area Development.
Cała inwestycja składa się z 1 budynku, w którym łącznie znajduje się 89 nowych apartamentów.
Na sprzedaż pozostaje 13 ofert o powierzchni od 27 do 71 m².
W budynku są 4 kondygnacje naziemne oraz 1 kondygnacja podziemna.
Inwestycja Morzlive została wybudowana i oddana do użytkowania w 2 kw. 2024 roku.
Nowy apartament o oznaczeniu A.2.25 znajduje się na 2 piętrze i jest 1-poziomowy. Pomieszczenia mają od 260 do 280 centymetrów wysokości. W apartamencie znajduje się 1 pokój.
Dla przyszłych mieszkańców Morzlive deweloper przewidział miejsca postojowe podziemne.
Dzięki temu przyszli właściciele nie będą musieli poszukiwać wolnej przestrzeni parkingowej. Dodatkowo, miejsce postojowe w garażu podziemnym zabezpiecza przed niekorzystnymi warunkami atmosferycznymi.
Opis Inwestycji
Pow. dodatkowe
Morzlive to nowoczesny kompleks wypoczynkowy, który powstaje w spokojnej części Ustronia Morskiego, w sąsiedztwie obszaru Natura 2000 i zaledwie 100 m od plaży Bałtyku. Niecały kilometr dzieli ją od centrum miasta, do którego przejść można nadmorską promenadą.
Pierwszy etap projektu to 89 wygodnych apartamentów i 2 lokale usługowe.
Zaplanowano tu wiele udogodnień m.in.:
• podziemną halę garażową
• komórki lokatorskie
• przestronną rowerownię
• nowoczesną windę
• monitoring części wspólnych
• dziedziniec z placem zabaw oraz stołem do tenisa stołowego, oddzielony od ruchu samochodowego
• w przestronnym lobby bezobsługowy system wymiany kluczy do mieszkań
• klimatyzację we wszystkich lokalach
• pakiet bezpieczeństwa systemu inteligentnego domu
• każde mieszkanie posiada przestronny balkon, taras lub ogródek
Kolejne etapy inwestycji uzupełnią jej strefę rekreacyjną o zewnętrzny basen i boisko do gry w siatkówkę plażową.
Istnieje możliwość skorzystania z oferty wykończenia mieszkania pod klucz.
Apartamenty sprzedajemy z 8% VATem.
Apartament znajduje się w inwestycji Morzlive.
Area Development
Adres biura sprzedaży:
Ul. Wołyńska 10/1, 60-616 PoznańGodziny otwarcia biura sprzedaży:
- Poniedziałek: 09:00 - 17:00
- Wtorek: 09:00 - 17:00
- Środa: 09:00 - 17:00
- Czwartek: 09:00 - 17:00
- Piątek: 09:00 - 17:00





