Mieszkanie na sprzedaż 3 pokoje o powierzchni 57,9 m² numer 42/1
Inwestycja:
Ogrody KochanowskiegoDeweloper:
SASS ZRBPHU Ryszard Sass
Inwestycja:
Ogrody KochanowskiegoDeweloper:
SASS ZRBPHU Ryszard SassBiłgoraj, ul. Kochanowskiego 42
Biłgoraj, ul. Kochanowskiego 42
Termin oddania
2 kw. 2026
Ilość pokoi
3 pokoje
Metraż
57,9 m²
Piętro
Parter
Kuchnia
otwarta kuchnia
Wysokość pomieszczeń
od 260 do 280 cm wysokości
Ilość poziomów
1 poziom
Oznaczenie oferty
42/1

Raport o deweloperze
Poznaj dewelopera bliżej! Pobierz raport, w którym znajdziesz kluczowe informacje o firmie, jej doświadczeniu, nagrodach oraz aktualnych i zrealizowanych inwestycjach.
Budynek i otoczenie
Miejsca postojowe | |
|---|---|
Standard wykończenia | standard deweloperski |
Realizacja inwestycji | oddanie do użytkowania w 2 kw. 2026 roku |
Udogodnienia | internet, TV kablowa, teren ogrodzony |
Przyroda | informacja u dewelopera |
Charakterystyka energetyczna nieruchomości | informacja u dewelopera |
Rezerwacja i finanse
Rodzaj własności | informacja u dewelopera |
|---|---|
Wysokość czynszu | informacja u dewelopera |
Warunki rezerwacji | Informacja u dewelopera |
Zabezpieczenie środków | Informacja u dewelopera |
Zdjęcia z budowy
Zobacz na jakim etapie budowy jest ta inwestycja
Lokalizacja inwestycji
Stacja kolejowa - Biłgoraj - 1539 m
Przystanek Autobusowy - 203 m
Dojazd do centrum Janowa Lubelskiego: pokaż
W pobliżu 1 km od tej inwestycji znajdują się:
20 kawiarni i restauracji, 35 sklepów, 20 obiektów sportowych, 9 placówek medycznych, 36 placówek edukacyjnych, 18 placów zabaw
Przeczytaj więcej o lokalizacji
Województwo Lubelskie to jednostka samorządu terytorialnego i podziału administracyjnego kraju, której powierzchnia wynosi 25 122,49 km². Zajmuje obszar Niziny Południowopodlaskiej, Polesia Wołyńskiego, Wyżyny Lubelskiej, Wyżyny Wołyńskiej i Kotliny Sandomierskiej. Jej teren zamieszkuje około 2,15 miliona osób. Stolicą województwa jest miasto Lublin.
Opis oferty
Nowe 3-pokojowe mieszkanie na sprzedaż o powierzchni 57,9 m² znajduje się w nowo wybudowanej inwestycji deweloperskiej Ogrody Kochanowskiego w Biłgoraju, ul. Kochanowskiego 42 (26.3 km od Janowa Lubelskiego).
Inwestycja została zrealizowana przez SASS ZRBPHU Ryszard Sass.
Cała inwestycja składa się z 7 budynków, w których łącznie znajduje się 14 nowych mieszkań.
Na sprzedaż pozostaje 12 ofert o powierzchni od 58 do 67 m².
W budynkach są 2 kondygnacje naziemne. Budynek nie posiada kondygnacji podziemnych.
Inwestycja Ogrody Kochanowskiego jest w trakcie budowy z planowanym na 2 kw. 2026 roku terminem oddania do użytkowania.
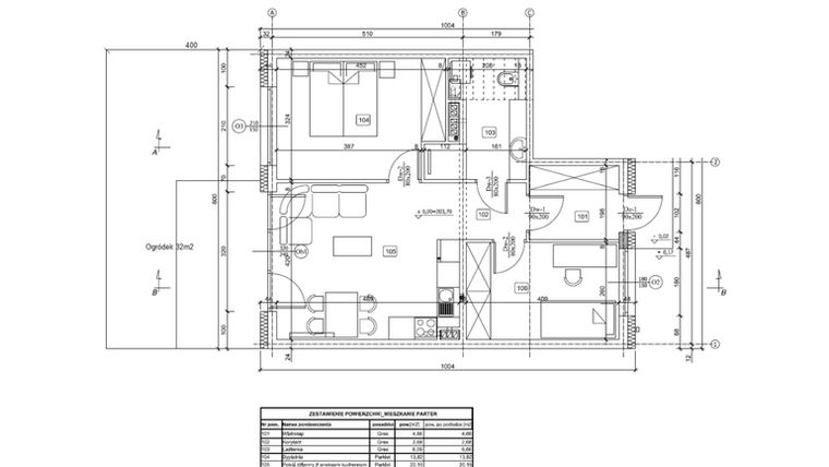
Nowe mieszkanie o oznaczeniu 42/1 znajduje się na parterze i jest 1-poziomowe. Pomieszczenia mają od 260 do 280 centymetrów wysokości. W mieszkaniu znajdują się 3 pokoje.
Dla przyszłych mieszkańców Ogrody Kochanowskiego deweloper przewidział miejsca postojowe naziemne.
Dzięki temu przyszli właściciele nie będą musieli poszukiwać wolnej przestrzeni parkingowej.
Opis Inwestycji
Tereny zielone
Nowoczesne mieszkania z ogródkiem lub tarasem w dzielnicy Ogrody!
Ogrody Kochanowskiego to kameralna inwestycja mieszkaniowa przy ul. Kochanowskiego w dzielnicy Ogrody w Biłgoraju. To propozycja dla osób, które szukają nowoczesnego mieszkania w spokojnej okolicy, blisko centrum miasta, bez tłoku i przypadkowej zabudowy.
Kameralna zabudowa i większa prywatność
Inwestycja składa się z 7 budynków dwulokalowych w nowoczesnej zabudowie szeregowej. Niewielka liczba mieszkań oznacza większą prywatność i komfort codziennego życia. To realna alternatywa dla bloków – z własną przestrzenią i poczuciem niezależności.
Dostępne warianty mieszkań: ogródek lub taras na dachu
W ofercie dostępne są dwa funkcjonalne warianty mieszkań:
Lokale na parterze o powierzchni 57,90 m², 3 pokoje oraz prywatny ogródek o powierzchni 32 m², idealny do codziennego wypoczynku i spędzania czasu na świeżym powietrzu.
Mieszkania na pierwszym piętrze mają 66,85 m², 4 pokoje oraz taras na dachu o powierzchni 56,30 m², który stanowi pełnoprawną, prywatną przestrzeń rekreacyjną.
Układy mieszkań zostały zaprojektowane z myślą o wygodnym, codziennym użytkowaniu. Przestronne salony, ustawne pokoje i czytelny podział stref sprawiają, że mieszkania są funkcjonalne i łatwe do aranżacji.
Wysoki standard wykończenia
W standardzie zastosowano ogrzewanie gazowe podłogowe, zapewniające równomierny komfort cieplny w całym lokalu oraz pełną swobodę aranżacyjną wnętrz.
Duże okna trzyszybowe gwarantują doskonałe doświetlenie pomieszczeń, dobrą izolację cieplną i akustyczną oraz niższe koszty użytkowania.
Mieszkania są wyposażone w nowoczesne instalacje medialne. Do każdego lokalu doprowadzony jest światłowód, umożliwiający szybki i stabilny dostęp do internetu, a także wykonana jest instalacja antenowa pod telewizję, gotowa do podłączenia bez dodatkowych prac.
Cała inwestycja realizowana jest zgodnie z aktualnymi normami budowlanymi, z użyciem sprawdzonych technologii i materiałów. Teren osiedla jest ogrodzony, co podkreśla jego kameralny charakter i zapewnia poczucie prywatności.
Ogrody Kochanowskiego to propozycja dla osób, które chcą kupić mieszkanie gotowe na lata – w dobrej lokalizacji, z własną przestrzenią na zewnątrz i realną jakością wykonania.
Mieszkanie znajduje się w inwestycji Ogrody Kochanowskiego, w której znajdują się w sprzedaży jeszcze 4 podobne nowe mieszkania.
SASS ZRBPHU Ryszard Sass
Strona internetowa inwestycjiAdres biura sprzedaży:
ul. Tadeusza Kuźmińskiego 3/U5 23-400 Biłgoraj




