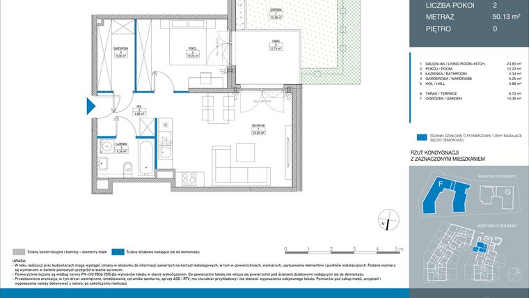
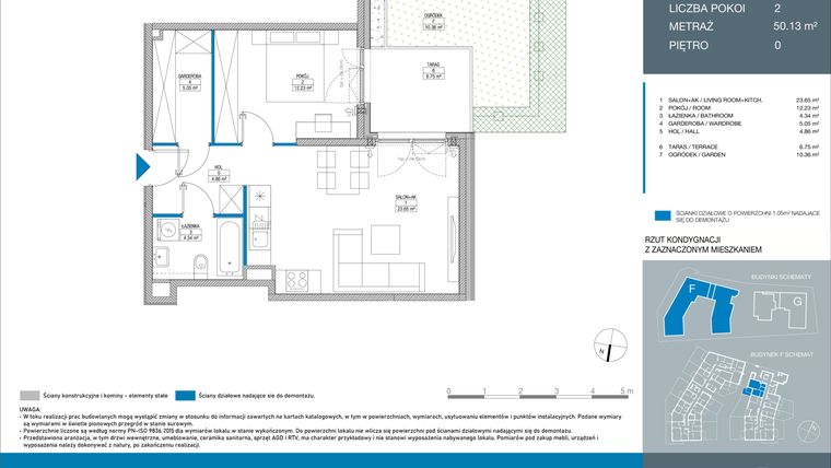
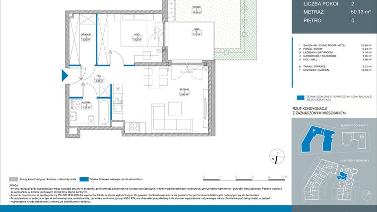
Mieszkanie na sprzedaż 2 pokoje o powierzchni 50,13 m² numer FB0006
Inwestycja:
Spokojny Mokotów etap IIDeweloper:
YIT Development Sp. z o.o.
Inwestycja:
Spokojny Mokotów etap IIDeweloper:
YIT Development Sp. z o.o.Warszawa, Mokotów, Siekierki, ul. Marzycieli
Warszawa, Mokotów, Siekierki, ul. Marzycieli
Oddanie
4 kw. 2026
Ilość pokoi
2 pokoje
Metraż
50,13 m²
Piętro
Parter
Kuchnia
otwarta kuchnia
Wysokość
od 260 do 280 cm wysokości
Poziomy
1 poziom
Oznaczenie oferty
FB0006

Raport o deweloperze
Poznaj dewelopera bliżej! Pobierz raport, w którym znajdziesz kluczowe informacje o firmie, jej doświadczeniu, nagrodach oraz aktualnych i zrealizowanych inwestycjach.
Budynek i otoczenie
Miejsca postojowe | |
|---|---|
Komórki lokatorskie | dostępne |
Standard wykończenia | standard deweloperski |
Realizacja inwestycji | oddanie do użytkowania w 4 kw. 2026 roku |
Udogodnienia | plac zabaw, monitoring, usługi w budynku, winda, siłownia plenerowa, miejsce do ładowania samochodów elektrycznych |
Przyroda | informacja u dewelopera |
Charakterystyka energetyczna nieruchomości | informacja u dewelopera |
Rezerwacja i finanse
Rodzaj własności | Odrębna własność z własnością gruntu |
|---|---|
Wysokość czynszu | informacja u dewelopera |
Warunki rezerwacji | Informacja u dewelopera |
Zabezpieczenie środków | Informacja u dewelopera |

Zdjęcia z budowy i widok 3D
Zobacz na jakim etapie budowy jest ta inwestycja
Lokalizacja inwestycji
Przystanek Tramwajowy - 2143 m
Przystanek Autobusowy - 249 m
Dojazd do centrum: pokaż
W pobliżu 1 km od tej inwestycji znajdują się:
11 kawiarni i restauracji, 16 sklepów, 7 obiektów sportowych, 2 placówki medyczne, 12 placówek edukacyjnych, 21 placów zabaw
Przeczytaj więcej o lokalizacji
Na położonym w lewobrzeżnej części stolicy Mokotowie mieszka ok. 219 tys. osób, co sprawia, że jest to najludniejsza spośród warszawskich dzielnic. Mimo dużej liczby mieszkańców, obszar o powierzchni ok. 35 km2 nie należy do zatłoczonych, bowiem zabudowa jest zróżnicowana. Mokotów słynie z luksusowych apartamentowców, jak: Apartamenty przy Królikarni, Rezydencja Merliniego czy Osiedle Eco Park. Występują tutaj zarówno otoczone zielenią wille, jak i wielkie blokowiska na osiedlach: Stegny, Służew i Domaniewska. Dawny Służewiec Przemysłowy zagospodarowany jest na rzecz centrów handlowo-usługowych, jak Galeria Mokotów lub biurowo-biznesowych typu: GTC, TOP 2000, Zepter, Curtis Plaza. Funkcję rekreacyjną pełnią liczne parki, skwery i zieleńce oraz rezerwat Jezioro Czerniakowskie. Niezwykle bogata jest oferta kulturalna: 18 teatrów, 10 muzeów, 5 kin oraz 15 galerii sztuki. W dzielnicy kursuje metro, a główne arterie to: most Siekierkowski, Wisłostrada, Al. Niepodległości i ul. Puławska.
Opis oferty
Nowe 2-pokojowe mieszkanie na sprzedaż o powierzchni 50,13 m² znajduje się w nowo wybudowanej inwestycji deweloperskiej Spokojny Mokotów etap II na Siekierkach, ul. Marzycieli (5.2 km od centrum Warszawy).
Inwestycja została zrealizowana przez YIT Development Sp. z o.o.
Cała inwestycja składa się z 2 budynków, w których łącznie znajduje się 120 nowych mieszkań.
Na sprzedaż pozostaje 66 ofert o powierzchni od 27 do 81 m².
W budynkach są 4 kondygnacje naziemne oraz 1 kondygnacja podziemna.
Inwestycja Spokojny Mokotów etap II jest w trakcie budowy z planowanym na 4 kw. 2026 roku terminem oddania do użytkowania.
Nowe mieszkanie o oznaczeniu FB0006 znajduje się na parterze i jest 1-poziomowe. Pomieszczenia mają od 260 do 280 centymetrów wysokości. W mieszkaniu znajdują się 2 pokoje.
Dla przyszłych mieszkańców Spokojny Mokotów etap II deweloper przewidział miejsca postojowe podziemne.
Dzięki temu przyszli właściciele nie będą musieli poszukiwać wolnej przestrzeni parkingowej. Dodatkowo, miejsce postojowe w garażu podziemnym zabezpiecza przed niekorzystnymi warunkami atmosferycznymi.
Opis Inwestycji
Spokojny Mokotów to inwestycja największego fińskiego dewelopera – YIT.
Osiedle Spokojny Mokotów jest idealne dla osób, dla których odpoczynek nie ogranicza się tylko do czterech ścian. Na terenie osiedla powstaną dedykowane strefy: rekreacji, relaksu oraz strefa społeczna. W każdej ze stref możesz realizować się w zależności od potrzeb. Relaks na hamaku w cieniu drzew, ruch na świeżym powietrzu, a może wspólne sadzenie warzyw w ogródku sąsiedzkim? Wybór należy do Ciebie.
Mimo, że inwestycja zlokalizowana jest w dzielnicy znajdującej się blisko centrum, możesz liczyć tu na spokój oraz ciszę. Budynki na terenie osiedla, tak samo jak te okoliczne nie przekraczają swoją wysokością 4 kondygnacji. Panuje tu sielska atmosfera.
W YIT dbamy o to, aby mieszkańcy naszych osiedli codziennie mogli cieszyć się swoim otoczeniem. Przy budowie naszych inwestycji korzystamy z naszych fińskich korzeni, zgodnie z którymi projektując zachowujemy minimalizm oraz wysokiej jakości materiały. Spokojny Mokotów nie jest wyjątkiem. W przypadku tego projektu zdecydowaliśmy się na pokrycie całej elewacji budynków elegancką płytką klinkierową.
Aktualnie w sprzedaży znajdują się 2 budynki:
- w jednym 43 lokali mieszkalnych, a w drugim 77.
.
Mieszkanie znajduje się w inwestycji Spokojny Mokotów etap II, w której znajduje się w sprzedaży jeszcze 37 podobnych nowych mieszkań.
YIT Development Sp. z o.o.
Strona internetowa inwestycjiAdres biura sprzedaży:
ul. Marzycieli 6, 02-757 WarszawaGodziny otwarcia biura sprzedaży:
- Poniedziałek: 10:00 - 18:00
- Wtorek: 10:00 - 18:00
- Środa: 10:00 - 18:00
- Czwartek: 10:00 - 18:00
- Piątek: 10:00 - 18:00
- Sobota: 10:00 - 15:00





