Dom na sprzedaż 5 pokoi o powierzchni 200,49 m² numer 2
Inwestycja:
Nordic Bemowo DomyDeweloper:
YIT Development Sp. z o.o.
Inwestycja:
Nordic Bemowo DomyDeweloper:
YIT Development Sp. z o.o.Warszawa, Bemowo, Chrzanów, ul. Batalionów Chłopskich
Warszawa, Bemowo, Chrzanów, ul. Batalionów Chłopskich
Termin oddania
2 kw. 2026
Ilość pokoi
5 pokoi
Metraż
200,49 m²
Powierzchnie dodatkowe
Taras, Ogródek
Kuchnia
otwarta kuchnia
Wysokość pomieszczeń
od 260 do 280 cm wysokości
Ilość kondygnacji
3 poziomy
Oznaczenie oferty
2

Raport o deweloperze
Poznaj dewelopera bliżej! Pobierz raport, w którym znajdziesz kluczowe informacje o firmie, jej doświadczeniu, nagrodach oraz aktualnych i zrealizowanych inwestycjach.
Budynek i otoczenie
Miejsca postojowe | |
|---|---|
Garaże | garaż jednostanowiskowy |
Standard wykończenia | standard deweloperski |
Realizacja inwestycji | oddanie do użytkowania w 2 kw. 2026 roku |
Udogodnienia | informacja u dewelopera |
Przyroda | informacja u dewelopera |
Charakterystyka energetyczna nieruchomości | informacja u dewelopera |
Rezerwacja i finanse
Rodzaj własności | Odrębna własność z własnością gruntu |
|---|---|
Wysokość czynszu | informacja u dewelopera |
Warunki rezerwacji | Informacja u dewelopera |
Zabezpieczenie środków | Informacja u dewelopera |

Zdjęcia z budowy i widok 3D
Zobacz na jakim etapie budowy jest ta inwestycja
Lokalizacja inwestycji
Metro - Bemowo - 1689 m
Przystanek Tramwajowy - 863 m
Przystanek Autobusowy - 82 m
Dojazd do centrum: pokaż
W pobliżu 1 km od tej inwestycji znajdują się:
33 kawiarnie i restauracje, 39 sklepów, 34 obiekty sportowe, 7 placówek medycznych, 34 placówki edukacyjne, 49 placów zabaw
Przeczytaj więcej o lokalizacji
Rozciągająca się u zachodnich granic Warszawy dzielnica Bemowo to miejsce zamieszkania ok. 116 tys. ludzi. Zabudowa mieszkaniowa jest dość zróżnicowana. Do architektury z okresu międzywojennego należą: skupisko domów jednorodzinnych Boernerowo oraz fragment miasta-ogrodu Stare Jelonki. Wysokie bloki występują na osiedlach: Lazurowa, Jelonki, Górczewska czy Nowe Bemowo. Z kolei Groty, Górce i Chrzanów to tereny, na których obecnie rozwija się nowoczesne budownictwo. Charakterystycznymi miejscami Bemowa są obiekty wojskowe lub lotnicze: zabytkowe forty (Fort Radiowo, Fort Bema, Fort Blizne), Lotnisko Babice, Wojskowe Zakłady Lotnicze oraz Wojskowa Akademia Techniczna. Na lotnisku organizowane są widowiska i koncerty o charakterze masowym, zaś zieloną strefę dzielnicy stanowi Las Bemowski. Dogodny dojazd do centrum umożliwiają: dobrze rozwinięta sieć dróg, linie autobusowe i tramwajowe oraz II linia metra. Do najważniejszych arterii należą ulice: Połczyńska, Górczewska oraz Powstańców Śląskich.
Opis oferty
Nowy 5-pokojowy dom szeregowy na sprzedaż o powierzchni 200,49 m² znajduje się w nowo wybudowanej inwestycji deweloperskiej Nordic Bemowo Domy na Chrzanowie, ul. Batalionów Chłopskich (8.1 km od centrum Warszawy).
Inwestycja została zrealizowana przez YIT Development Sp. z o.o.
Cała inwestycja składa się z 9 nowych domów.
Inwestycja Nordic Bemowo Domy jest w trakcie budowy z planowanym na 2 kw. 2026 roku terminem oddania do użytkowania.
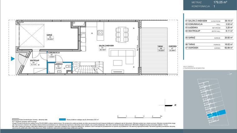
Nowy dom szeregowy o oznaczeniu 2 , składa się z 3 kondygnacji bez poddasza, nie posiada podpiwniczenia. Wysokość pomieszczeń wynosi od 260 do 280 cm. Dom ma garaż 1 stanowiskowy.
W domu szeregowym numer 2 znajduje się się 5 pokoi.
Do domu przynależą taras, ogródek.
Dla przyszłych mieszkańców Nordic Bemowo Domy deweloper przewidział miejsca postojowe naziemne
Opis Inwestycji
Kameralny budynek
Pow. dodatkowe
Nordic Bemowo Domy to inwestycja największego fińskiego dewelopera – YIT.
Ten wyjątkowy projekt obejmuje budowę 9 kameralnych domów w zabudowie szeregowej. Każdy z nich będzie posiadał 3-kondygnacje i powierzchnie 179 m2. Domy charakteryzuje wyjątkowa architektura, bogata zieleń oraz mnóstwo detali, które tworzą spójną całość.
Budynki powstaną przy ul. Batalionów Chłopskich na Bemowie. Inwestycja będzie położona między dwiema stacjami metra M2 – Lazurowej oraz Chrzanów, które aktualnie są w budowie. Dzięki nim mieszkańcy osiedla będą mogli sprawnie przemieszczać się po mieście nawet w godzinach szczytu.
Wszystko to sprawia, że Nordic Bemowo Domy są jedynym takim projektem w okolicy.
Dom znajduje się w inwestycji Nordic Bemowo Domy, w której znajduje się w sprzedaży jeszcze 7 podobnych nowych domów.
YIT Development Sp. z o.o.
Strona internetowa inwestycjiAdres biura sprzedaży:
ul. Orlińskiego, 01-315 Warszawa




