Dom na sprzedaż 3 pokoje o powierzchni 162,51 m² numer 10a
Inwestycja:
Leszczyńskiego 25Deweloper:
Weisenburger Development Sp. z o. o.
Inwestycja:
Leszczyńskiego 25Deweloper:
Weisenburger Development Sp. z o. o.Warszawa, Ursus, Gołąbki, ul. Leszczyńskiego 25
Warszawa, Ursus, Gołąbki, ul. Leszczyńskiego 25
Termin oddania
1 kw. 2027
Ilość pokoi
3 pokoje
Metraż
162,51 m²
Piętro
Parter
Kuchnia
otwarta kuchnia
Wysokość pomieszczeń
od 260 do 280 cm wysokości
Ilość kondygnacji
3 poziomy w tym poddasze
Oznaczenie oferty
10a

Raport o deweloperze
Poznaj dewelopera bliżej! Pobierz raport, w którym znajdziesz kluczowe informacje o firmie, jej doświadczeniu, nagrodach oraz aktualnych i zrealizowanych inwestycjach.
Budynek i otoczenie
Miejsca postojowe | |
|---|---|
Standard wykończenia | standard deweloperski Ogrzewanie pompa ciepła, podłogowe |
Realizacja inwestycji | rozpoczęcie budowy w 2 kw. 2025 roku, planowane oddanie do użytkowania w 1 kw. 2027 roku |
Udogodnienia | pompa ciepła, rekuperacja, teren ogrodzony |
Przyroda | informacja u dewelopera |
Charakterystyka energetyczna nieruchomości | informacja u dewelopera |
Rezerwacja i finanse
Rodzaj własności | Odrębna własność z własnością gruntu |
|---|---|
Wysokość czynszu | informacja u dewelopera |
Warunki rezerwacji | Informacja u dewelopera |
Zabezpieczenie środków | Informacja u dewelopera |
Zdjęcia z budowy
Zobacz na jakim etapie budowy jest ta inwestycja
Lokalizacja inwestycji
Stacja kolejowa - Warszawa Gołąbki - 728 m
Przystanek Autobusowy - 234 m
Dojazd do centrum: pokaż
W pobliżu 1 km od tej inwestycji znajdują się:
4 sklepy, 26 obiektów sportowych, 10 placówek edukacyjnych, 12 placów zabaw
Przeczytaj więcej o lokalizacji
Ursus położony jest w zachodniej części Warszawy i należy do najmniejszych dzielnic miasta, zajmując obszar o powierzchni ok. 9,4 km2. Rejon znany dawniej jako ośrodek przemysłu z zakładami mechanicznymi i cegielnią, dziś pełni przede wszystkim funkcje mieszkaniowe. Dzielnicę zamieszkuje obecnie ok. 55 tys. osób, a nowe budynki mieszkalne powstają na odrolnionych terenach Skoroszy oraz na postindustrialnym obszarze Szamot. Niska zabudowa domów jednorodzinnych dominuje w Gołąbkach, zaś wysokie bloki występują na osiedlu Niedźwiadek oraz na Skoroszach. W dzielnicy znajdują się 3 centra handlowe: Factory Ursus, Skorosze oraz Galeria Gawra, a także siedziba firmy Oriflame. Tereny miejskiej zieleni to parki: Czechowicki, Hassów i Achera. Odległość do centrum miasta wynosi 9 km, toteż najszybciej można tam dojechać pociągami Szybkiej Kolei Miejskiej i Warszawskiej Kolei Dojazdowej. Ursus położony jest u zbiegu międzynarodowych arterii: Trasy poznańskiej E-30 i Trasy katowickiej E-67.
Opis oferty
Nowy 3-pokojowy dom szeregowy na sprzedaż o powierzchni 162,51 m² znajduje się w nowo budowanej inwestycji deweloperskiej Leszczyńskiego 25 na Gołąbkach, ul. Leszczyńskiego 25 (11 km od centrum Warszawy).
Inwestycja jest realizowana przez Weisenburger Development Sp. z o. o.
Cała inwestycja składa się z 32 nowych domów.
Inwestycja Leszczyńskiego 25 jest w trakcie budowy z planowanym na 1 kw. 2027 roku terminem oddania do użytkowania.
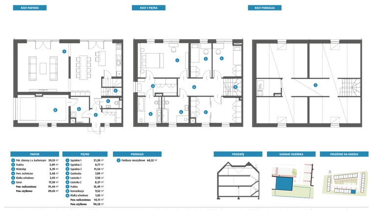
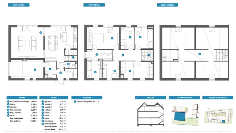
Nowy dom szeregowy o oznaczeniu 10a , składa się z 3 kondygnacji w tym poddasza, nie posiada podpiwniczenia. Wysokość pomieszczeń wynosi od 260 do 280 cm.
W domu szeregowym numer 10a znajdują się się 3 pokoje.
Dla przyszłych mieszkańców Leszczyńskiego 25 deweloper przewidział miejsca postojowe naziemne
Opis Inwestycji
Tereny zielone
KOMFORT POD MIASTEM
Kameralne Osiedle Leszczyńskiego 25 w sercu zielonych Gołąbków to doskonałe miejsce dla osób ceniących spokój oraz wygodę. Okolica pełna jest tras spacerowych, rowerowych i niskiej zabudowy willowej, co tworzy przyjazny klimat sprzyjający codziennemu relaksowi.
Jednocześnie lokalizacja zapewnia szybki dostęp do Centrum Warszawy:
• 12-minutowy spacer do stacji PKP, z której pociągi Kolei Mazowieckich w niespełna 20 minut dowiozą Państwa na Dworzec Warszawa Śródmieście.
• 5 minut jazdy samochodem do Węzła Warszawa Zachód, zapewniającego wygodną komunikację w każdym kierunku – autostradą A2, trasą S8 lub obwodnicą S2.
• A już w 2026 roku, w 6 minut jazdy dotrą Państwo do nowej stacji metra Karolin.
NOWOCZESNOŚĆ W DOSKONAŁYM WYDANIU
Na osiedlu powstaną jedynie 32 domy o powierzchniach (wraz z poddaszem) od 86 m² do 120 m².
Przemyślana architektura osiedla harmonijnie wpisuje się w willowy krajobraz okolicy, łącząc nowoczesny design z funkcjonalnością. Centralnym punktem osiedla będzie zielony skwer, dostępny wyłącznie dla mieszkańców i ich gości. Zostanie on wyposażony w miejsca do rekreacji i integracji, oświetlenie oraz ogrodzenie, zapewniające komfort i bezpieczeństwo.
Każdy dom posiadać będzie własny ogródek oraz dedykowane miejsca postojowe, dzięki czemu mieszkańcy będą mogli cieszyć się niezależnością i wygodą każdego dnia.
ROZGOŚĆ SIĘ, JESTEŚ U SIEBIE W DOMU
Projektując Osiedle Leszczyńskiego 25, postawiliśmy na funkcjonalność oraz komfort dla całej rodziny. Domy oferują:
• Pompę ciepła wraz z ogrzewaniem podłogowym i rekuperacją w cenie.
• Przestronny salon z kuchnią lub aneksem kuchennym – miejsce idealne na rodzinne obiady, wieczory filmowe czy wspólne święta.
• Nawet 4 sypialnie oraz 2 łazienki, zapewniające prywatność i wygodę każdemu domownikowi.
• Naturalne światło i przemyślane układy pomieszczeń, które sprzyjają zarówno relaksowi, jak i pracy zdalnej czy nauce.
DOŚWIADCZONY DEWELOPER
Osiedle Leszczyńskiego 25 to projekt realizowany przez doświadczonego, niemieckiego dewelopera WEISENBURGER, który od niemal 70 lat tworzy domy i mieszkania najwyższej jakości w Niemczech, Rumunii, a teraz także w Polsce. Rocznie oddaje klucze do ponad 3 tysięcy mieszkań, co stanowi najlepszą rekomendację dla przyszłych mieszkańców.
GOTOWE JUŻ W 2026
Rozpoczęcie budowy planujemy na przełom pierwszego i drugiego kwartału przyszłego roku, a jej zakończenie na koniec wakacji 2026 roku. Już teraz możecie Państwo zaplanować przeprowadzkę do swojego wymarzonego domu i otworzyć nowy rozdział w swoim życiu.
Biuro sprzedaży mieści się przy ulicy Wspólnej 70 (budynek Park Avenue) i jest czynne od poniedziałku do piątku w godzinach 9:00–17:00.
W celu umówienia spotkania prosimy o kontakt z naszym doradcą sprzedaży.
Dom znajduje się w inwestycji Leszczyńskiego 25, w której znajduje się w sprzedaży jeszcze 27 podobnych nowych domów.
Weisenburger Development Sp. z o. o.
Strona internetowa inwestycjiAdres biura sprzedaży:
ul. Wspólna 70 (budynek Park Avenue), 00-687 WarszawaGodziny otwarcia biura sprzedaży:
- Poniedziałek: 09:00 - 17:00
- Wtorek: 09:00 - 17:00
- Środa: 09:00 - 17:00
- Czwartek: 09:00 - 17:00
- Piątek: 09:00 - 17:00





