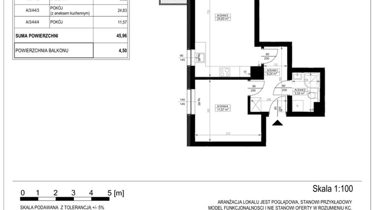
Mieszkanie na sprzedaż 2 pokoje o powierzchni 45,96 m² numer A-3-44
Inwestycja:
Zamieszkaj na Rudawskiej 5Deweloper:
RT Deweloper Sp. z o.o.
Inwestycja:
Zamieszkaj na Rudawskiej 5Deweloper:
RT Deweloper Sp. z o.o.Wrocław, Psie Pole, Poświętne, ul. Rudawska
Wrocław, Psie Pole, Poświętne, ul. Rudawska
Termin oddania
Gotowe
Ilość pokoi
2 pokoje
Metraż
45,96 m²
Piętro
3 piętro
Kuchnia
otwarta kuchnia
Wysokość pomieszczeń
od 260 do 282 cm wysokości
Ilość poziomów
1 poziom
Oznaczenie oferty
A-3-44

Raport o deweloperze
Poznaj dewelopera bliżej! Pobierz raport, w którym znajdziesz kluczowe informacje o firmie, jej doświadczeniu, nagrodach oraz aktualnych i zrealizowanych inwestycjach.
Budynek i otoczenie
Miejsca postojowe | |
|---|---|
Standard wykończenia | standard deweloperski |
Realizacja inwestycji | rozpoczęcie budowy w 3 kw. 2023 roku, inwestycja została oddana do użytkowania w 3 kw. 2025 roku |
Udogodnienia | plac zabaw, monitoring, teren ogrodzony, winda |
Przyroda | w okolicy inwestycji znajduje się park |
Charakterystyka energetyczna nieruchomości |
|
Rezerwacja i finanse
Rodzaj własności | Odrębna własność z własnością gruntu |
|---|---|
Wysokość czynszu | informacja u dewelopera |
Warunki rezerwacji | Informacja u dewelopera |
Zabezpieczenie środków | Informacja u dewelopera |
Zdjęcia z budowy
Zobacz na jakim etapie budowy jest ta inwestycja
Lokalizacja inwestycji
Stacja kolejowa - Wrocław Różanka - 2930 m
Przystanek Tramwajowy - 715 m
Przystanek Autobusowy - 278 m
Dojazd do centrum: pokaż
W pobliżu 1 km od tej inwestycji znajdują się:
8 kawiarni i restauracji, 17 sklepów, 13 obiektów sportowych, 10 placówek medycznych, 5 placówek edukacyjnych, 17 placów zabaw
Przeczytaj więcej o lokalizacji
Psie Pole to wrocławskie osiedle rozciągające się w północnej części miasta. Zamieszkuje je ponad 93 tysiące mieszkańców, a jego obszar liczy prawie 100 km2. Zabudowę tworzą liczne osiedla domów jednorodzinnych i willi oraz osiedla mieszkaniowe. W południowej części osiedla Psie Pole znajduje się duży zespół przemysłowy. Na obrzeżach zaś osiedle otaczają tereny zielone w tym lasy: rędziński, osobowicki czy sołtysowicki. W centralnej części znajduje się siedziba Wyższej Szkoły Oficerskiej Wojsk Lądowych. Zachodnią część Psiego Pola ze wschodnią łączy największa arteria tego osiedla: ulica Jana Kasprowicza. Przebiega tędy również odcinek obwodnicy śródmiejskiej oraz droga E-67. Osiedle jest dobrze skomunikowane dzięki dogodnym połączeniom autobusowym i tramwajowym (w szczególności centrum z innymi ważnymi punktami Wrocławia).
Opis oferty
Nowe 2-pokojowe mieszkanie na sprzedaż o powierzchni 45,96 m² znajduje się w nowo budowanej inwestycji deweloperskiej Zamieszkaj na Rudawskiej 5 na Poświętnem, ul. Rudawska (5.2 km od centrum Wrocławia).
Inwestycja jest realizowana przez RT Deweloper Sp. z o.o.
Cała inwestycja składa się z 1 budynku, w którym łącznie znajduje się 98 nowych mieszkań.
Na sprzedaż pozostaje 29 ofert o powierzchni od 36 do 61 m².
W budynku jest 5 kondygnacji naziemnych oraz 1 kondygnacja podziemna.
Inwestycja Zamieszkaj na Rudawskiej 5 została wybudowana i oddana do użytkowania w 3 kw. 2025 roku.
Nowe mieszkanie o oznaczeniu A-3-44 znajduje się na 3 piętrze i jest 1-poziomowe. Pomieszczenia mają od 260 do 282 centymetrów wysokości. W mieszkaniu znajdują się 2 pokoje.
Dla przyszłych mieszkańców Zamieszkaj na Rudawskiej 5 deweloper przewidział miejsca postojowe podziemne, miejsca postojowe naziemne.
Dzięki temu przyszli właściciele nie będą musieli poszukiwać wolnej przestrzeni parkingowej. Dodatkowo, miejsce postojowe w garażu podziemnym zabezpiecza przed niekorzystnymi warunkami atmosferycznymi.
Opis Inwestycji
Okazyjna cena
Zapraszamy Cię do odkrycia naszej najnowszej inwestycji – Rudawska 5. To kontynuacja sukcesu naszych wcześniejszych projektów.
Przyjdź i przekonaj się sam, dlaczego Rudawska 5 to idealne miejsce do zamieszkania
Mieszkanie znajduje się w inwestycji Zamieszkaj na Rudawskiej 5, w której znajduje się w sprzedaży jeszcze 20 podobnych nowych mieszkań.
RT Deweloper Sp. z o.o.
Strona internetowa inwestycjiAdres biura sprzedaży:
ul. Pakosławska 42, Wrocław (przy budowie)Godziny otwarcia biura sprzedaży:
- Poniedziałek: 09:00 - 17:00
- Wtorek: 09:00 - 17:00
- Środa: 09:00 - 17:00
- Czwartek: 09:00 - 17:00
- Piątek: 09:00 - 16:00





