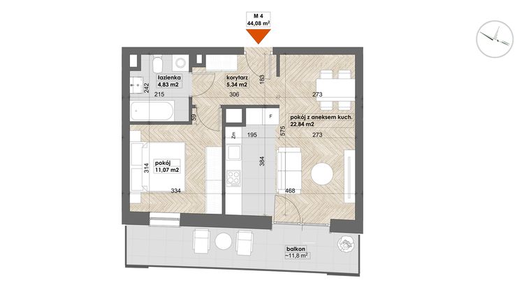
Mieszkanie na sprzedaż 2 pokoje o powierzchni 44,08 m² numer 4
Inwestycja:
Apartamenty ŚródmieścieDeweloper:
PPUH Kombinat Budowlany Sp. z o.o.
Inwestycja:
Apartamenty ŚródmieścieDeweloper:
PPUH Kombinat Budowlany Sp. z o.o.Białystok, Centrum, ul. Bohaterów Getta 14
Białystok, Centrum, ul. Bohaterów Getta 14
Termin oddania
1 kw. 2027
Ilość pokoi
2 pokoje
Metraż
44,08 m²
Piętro
1 piętro
Wysokość pomieszczeń
od 260 do 280 cm wysokości
Ilość poziomów
1 poziom
Oznaczenie oferty
4

Raport o deweloperze
Poznaj dewelopera bliżej! Pobierz raport, w którym znajdziesz kluczowe informacje o firmie, jej doświadczeniu, nagrodach oraz aktualnych i zrealizowanych inwestycjach.
Budynek i otoczenie
Miejsca postojowe | |
|---|---|
Komórki lokatorskie | dostępne (26): przypisane do niektórych mieszkań; od 0,99 do 10,54 m2 |
Standard wykończenia | standard deweloperski Ogrzewanie miejskie |
Realizacja inwestycji | rozpoczęcie budowy w 4 kw. 2025 roku, planowane oddanie do użytkowania w 1 kw. 2027 roku |
Udogodnienia | winda, rowerownia, usługi w budynku |
Przyroda | informacja u dewelopera |
Charakterystyka energetyczna nieruchomości | informacja u dewelopera |
Rezerwacja i finanse
Rodzaj własności | Odrębna własność z własnością gruntu |
|---|---|
Wysokość czynszu | informacja u dewelopera |
Warunki rezerwacji | tygodniowa bezpłatna rezerwacja |
Zabezpieczenie środków | Zamknięty mieszkaniowy rachunek powierniczy |
Zdjęcia z budowy
Zobacz na jakim etapie budowy jest ta inwestycja
Lokalizacja inwestycji
Stacja kolejowa - Białystok - 1163 m
Przystanek Autobusowy - 107 m
Dojazd do centrum: pokaż
W pobliżu 1 km od tej inwestycji znajdują się:
117 kawiarni i restauracji, 77 sklepów, 31 obiektów sportowych, 32 placówki medyczne, 60 placówek edukacyjnych, 34 place zabaw
Przeczytaj więcej o lokalizacji
Białystok to miasto położone w północno-wschodniej Polsce nad rzeką Białą. Jest to stolica województwa podlaskiego. Białystok jest perłą Podlasia, w której znajdują się liczne zabytki, takie jak Ratusz Miejski, zbrojownia hetmańska czy katedra. Zabudowa Białegostoku jest charakterystyczna dla polskich miast - przeważają tu osiedla mieszkaniowe, a na przedmieściach zabudowa jednorodzinna. W mieście znajduję się wiele parków miejskich. Białystok to także największy węzeł komunikacyjny północno-wschodniej Polski. Przez miasto przebiega europejska linia kolejowa Warszawa-Tallin. Miasto posiada bezpośrednie połączenia kolejowe z Warszawą, Olsztynem, Gdańskiem i Poznaniem. Rozwinięty transport autobusowy to zasługa głównie PKS Białystok, które obsługuje zarówno linie lokalne jak i międzymiastowe. Przez miasto przebiega również droga ekspresowa E67, która krzyżuję się z drogą krajową nr 19.
Opis oferty
Nowe 2-pokojowe mieszkanie na sprzedaż o powierzchni 44,08 m² znajduje się w nowo budowanej inwestycji deweloperskiej Apartamenty Śródmieście W Centrum, ul. Bohaterów Getta 14 (1.3 km od centrum Białegostoku).
Inwestycja jest realizowana przez PPUH Kombinat Budowlany Sp. z o.o.
Cała inwestycja składa się z 1 budynku, w którym łącznie znajdują się 63 nowe mieszkania.
Na sprzedaż pozostają 32 oferty o powierzchni od 39 do 85 m².
W budynku jest 7 kondygnacji naziemnych oraz 2 kondygnacje podziemne.
Inwestycja Apartamenty Śródmieście jest w trakcie budowy z planowanym na 1 kw. 2027 roku terminem oddania do użytkowania.
Nowe mieszkanie o oznaczeniu 4 znajduje się na 1 piętrze i jest 1-poziomowe. Pomieszczenia mają od 260 do 280 centymetrów wysokości. W mieszkaniu znajdują się 2 pokoje.
Do mieszkania przewidziano możliwość zakupu komórki lokatorskiej, którą można zagospodarować na spiżarnię, warsztat czy składzik.
Dla przyszłych mieszkańców Apartamenty Śródmieście deweloper przewidział miejsca postojowe podziemne.
Dzięki temu przyszli właściciele nie będą musieli poszukiwać wolnej przestrzeni parkingowej. Dodatkowo, miejsce postojowe w garażu podziemnym zabezpiecza przed niekorzystnymi warunkami atmosferycznymi.
Opis Inwestycji
Tereny zielone
Apartamenty Śródmieście przy ulicy Bohaterów Getta 14 to nowoczesny, sześciopiętrowy budynek w wyjątkowej lokalizacji – zaledwie krok od ścisłego centrum Białegostoku. Bliskość Galerii Jurowieckiej, basenu przy ul. Włókienniczej, licznych restauracji, kawiarni, siłowni, parków, skwerów i instytucji kultury sprawia, że wszystko, co najlepsze w mieście, jest tu na wyciągnięcie ręki.
Projekt harmonijnie wpisuje się w charakter okolicy, a jednocześnie wyróżnia się dzięki nowoczesnym akcentom – elewacji wentylowanej z płyt HPL imitujących drewno oraz ozdobnym elementom lameli na balkonach. Kameralny charakter inwestycji podkreśla niewielka liczba lokali – jedynie 63 mieszkania – a komfort mieszkańców zapewniają cichobieżne windy oraz podziemny parking.
Mieszkanie znajduje się w inwestycji Apartamenty Śródmieście, w której znajduje się w sprzedaży jeszcze 5 podobnych nowych mieszkań.
PPUH Kombinat Budowlany Sp. z o.o.
Strona internetowa inwestycjiAdres biura sprzedaży:
ul. Legionowa 14/16, 15-099 BiałystokGodziny otwarcia biura sprzedaży:
- Poniedziałek: 07:00 - 16:00
- Wtorek: 07:00 - 16:00
- Środa: 07:00 - 16:00
- Czwartek: 07:00 - 16:00
- Piątek: 07:00 - 16:00





