Apartament na sprzedaż 2 pokoje o powierzchni 24,35 m² numer M23
Inwestycja:
Stegna Forest 2Deweloper:
Platforma Mieszkaniowa
Inwestycja:
Stegna Forest 2Deweloper:
Platforma Mieszkaniowapomorskie, nowodworski, Stegna, ul. Grunwaldzka
pomorskie, nowodworski, Stegna, ul. Grunwaldzka
Termin oddania
2 kw. 2026
Ilość pokoi
2 pokoje
Metraż
24,35 m²
Piętro
2 piętro
Wysokość pomieszczeń
od 260 do 280 cm wysokości
Ilość poziomów
1 poziom
Oznaczenie oferty
M23

Raport o deweloperze
Poznaj dewelopera bliżej! Pobierz raport, w którym znajdziesz kluczowe informacje o firmie, jej doświadczeniu, nagrodach oraz aktualnych i zrealizowanych inwestycjach.
Budynek i otoczenie
Miejsca postojowe | |
|---|---|
Standard wykończenia | standard deweloperski |
Realizacja inwestycji | oddanie do użytkowania w 2 kw. 2026 roku |
Udogodnienia | informacja u dewelopera |
Przyroda | informacja u dewelopera |
Charakterystyka energetyczna nieruchomości | informacja u dewelopera |
Rezerwacja i finanse
Rodzaj własności | Odrębna własność z własnością gruntu |
|---|---|
Wysokość czynszu | informacja u dewelopera |
Warunki rezerwacji | Informacja u dewelopera |
Zabezpieczenie środków | Informacja u dewelopera |
Zdjęcia z budowy
Zobacz na jakim etapie budowy jest ta inwestycja
Lokalizacja inwestycji
Stacja kolejowa - Stegna PKS - 360 m
Przystanek Autobusowy - 343 m
Dojazd do centrum Gdańska: pokaż
W pobliżu 1 km od tej inwestycji znajdują się:
9 kawiarni i restauracji, 10 sklepów, 4 obiekty sportowe, 1 placówka medyczna, 5 placówek edukacyjnych, 3 place zabaw
Przeczytaj więcej o lokalizacji
Duża wieś w północnej Polsce, położona w województwie pomorskim, w powiecie nowodworskim, w gminie Stegna. Położona na Żuławach Wiślanych, nad Zatoką Gdańską, w rejonie Mierzei Wiślanej. Wieś rybacka, kąpielisko morskie i lokalny węzeł drogowy (skrzyżowanie dróg wojewódzkich: nr 501 i nr 502). Miejscowość jest siedzibą gminy Stegna. Według danych z 2007 r. sołectwo Stegna zamieszkiwało 2321 osób. Sołectwo obejmuje tylko Stegnę i obszar o powierzchni 1644 ha. W latach 1975-1998 miejscowość położona była w województwie elbląskim. W 2013 oddano do użytku prywatne lądowisko wielofunkcyjne Stegna.
Opis oferty
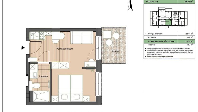
Nowy 2-pokojowy apartament na sprzedaż o powierzchni 24,35 m² znajduje się w nowo wybudowanej inwestycji deweloperskiej Stegna Forest 2 w Stegnie, ul. Grunwaldzka (11.4 km od Gdańska).
Sprzedaż prowadzi Platforma Mieszkaniowa.
Cała inwestycja składa się z 1 budynku, w którym łącznie znajdują się 23 nowe apartamenty.
Na sprzedaż pozostaje 11 ofert o powierzchni od 21 do 26 m².
W budynku są 4 kondygnacje naziemne oraz 1 kondygnacja podziemna.
Inwestycja Stegna Forest 2 jest w trakcie budowy z planowanym na 2 kw. 2026 roku terminem oddania do użytkowania.
Nowy apartament o oznaczeniu M23 znajduje się na 2 piętrze i jest 1-poziomowy. Pomieszczenia mają od 260 do 280 centymetrów wysokości. W apartamencie znajdują się 2 pokoje.
Dla przyszłych mieszkańców Stegna Forest 2 deweloper przewidział miejsca postojowe podziemne.
Dzięki temu przyszli właściciele nie będą musieli poszukiwać wolnej przestrzeni parkingowej. Dodatkowo, miejsce postojowe w garażu podziemnym zabezpiecza przed niekorzystnymi warunkami atmosferycznymi.
Apartament znajduje się w inwestycji Stegna Forest 2, w której znajduje się w sprzedaży jeszcze 10 podobnych nowych apartamentów.





