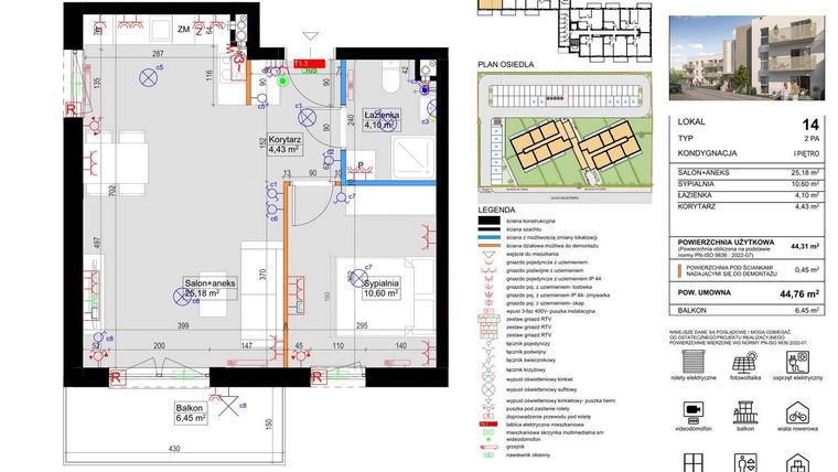
Mieszkanie na sprzedaż 2 pokoje o powierzchni 44,31 m² numer 14
Inwestycja:
Harmony AntoninekDeweloper:
Platforma Mieszkaniowa
Inwestycja:
Harmony AntoninekDeweloper:
Platforma MieszkaniowaPoznań, Nowe Miasto, Antoninek-Zieliniec-Kobylepole, ul. Władymira
Poznań, Nowe Miasto, Antoninek-Zieliniec-Kobylepole, ul. Władymira
Termin oddania
2 kw. 2026
Ilość pokoi
2 pokoje
Metraż
44,31 m²
Piętro
1 piętro
Kuchnia
otwarta kuchnia
Wysokość pomieszczeń
od 260 do 280 cm wysokości
Ilość poziomów
1 poziom
Oznaczenie oferty
14

Raport o deweloperze
Poznaj dewelopera bliżej! Pobierz raport, w którym znajdziesz kluczowe informacje o firmie, jej doświadczeniu, nagrodach oraz aktualnych i zrealizowanych inwestycjach.
Budynek i otoczenie
Miejsca postojowe | |
|---|---|
Standard wykończenia | standard deweloperski |
Realizacja inwestycji | rozpoczęcie budowy w 3 kw. 2024 roku, planowane oddanie do użytkowania w 2 kw. 2026 roku |
Udogodnienia | teren ogrodzony, winda |
Przyroda | informacja u dewelopera |
Charakterystyka energetyczna nieruchomości | informacja u dewelopera |
Rezerwacja i finanse
Rodzaj własności | Odrębna własność z własnością gruntu |
|---|---|
Wysokość czynszu | informacja u dewelopera |
Warunki rezerwacji | Informacja u dewelopera |
Zabezpieczenie środków | Informacja u dewelopera |
Zdjęcia z budowy
Zobacz na jakim etapie budowy jest ta inwestycja
Lokalizacja inwestycji
Stacja kolejowa - Poznań Antoninek - 778 m
Przystanek Tramwajowy - 819 m
Przystanek Autobusowy - 675 m
Dojazd do centrum: pokaż
W pobliżu 1 km od tej inwestycji znajdują się:
4 kawiarnie i restauracje, 12 sklepów, 11 obiektów sportowych, 6 placówek medycznych, 10 placówek edukacyjnych, 6 placów zabaw
Przeczytaj więcej o lokalizacji
Nowe Miasto to najstarsza część Poznania, którą ze wschodu na zachód przecina linia kolejowa a z północy na południe ul. Bolesława Krzywoustego. Dzielnica ma powierzchnię ponad 100 km kw na której mieszka 136 tys. mieszkańców. Dzielnicę przecinają na południu i północy drogi krajowe i europejskie E30, S11 i 92 a w odległości 7 km znajduje się Port Lotniczy Poznań-Ławica. Najbardziej atrakcyjnym pod względem przyrodniczym punktem dzielnicy jest Jezioro Maltańskie z ogrodem zoologicznym i Parkiem Tysiąclecia. Od wschodu dzielnicę pokrywają lasy miejskie. W odległości 1 km od granic dzielnicy znaleźć można Wyższą Szkołę Psychologii Społecznej, Uniwersytet im. Adama Mickiewicza, Politechnikę Poznańską czy Wyższą Szkołę Umiejętności Społecznych. W samej dzielnicy i w promieniu 500 metrów znajdują się szpitale Szpital-Przychodnia Celsus, Wielospecjalistyczny Szpital Miejski, ZOZ Poznań-Nowe Miasto, Ortopedyczno-Rehabilitacyjny Szpital Kliniczny czy Specjalistyczny Zespół Opieki Zdrowotnej.
Opis oferty
Nowe 2-pokojowe mieszkanie na sprzedaż o powierzchni 44,31 m² znajduje się w nowo budowanej inwestycji deweloperskiej Harmony Antoninek na Antoninku-Zielińcu-Kobylepolu, ul. Władymira (6.1 km od centrum Poznania).
Sprzedaż prowadzi Platforma Mieszkaniowa.
Cała inwestycja składa się z 1 budynku, w którym łącznie znajduje się 35 nowych mieszkań.
Na sprzedaż pozostaje 30 ofert o powierzchni od 29 do 56 m².
W budynku są 3 kondygnacje naziemne. Budynek nie posiada kondygnacji podziemnych.
Inwestycja Harmony Antoninek jest w trakcie budowy z planowanym na 2 kw. 2026 roku terminem oddania do użytkowania.
Nowe mieszkanie o oznaczeniu 14 znajduje się na 1 piętrze i jest 1-poziomowe. Pomieszczenia mają od 260 do 280 centymetrów wysokości. W mieszkaniu znajdują się 2 pokoje.
Dla przyszłych mieszkańców Harmony Antoninek deweloper przewidział miejsca postojowe naziemne.
Dzięki temu przyszli właściciele nie będą musieli poszukiwać wolnej przestrzeni parkingowej.
Opis Inwestycji
Harmony Antoninek to unikalne osiedle mieszkaniowe, które łączy nowoczesność z kojącą bliskością przyrody. Kameralny charakter inwestycji, wysoki standard wykończenia i starannie dobrane rozwiązania architektoniczne sprawiają, że jest to miejsce, w którym codzienność staje się przyjemnością, a dom – prawdziwym azylem.
Przestrzeń zaprojektowana z myślą o Tobie
W ramach inwestycji powstał jeden, elegancki budynek mieszkalny o trzech kondygnacjach, mieszczący 35 funkcjonalnych lokali o powierzchni od 28,5 do 73,5 m² – stworzonych z myślą o singlach, rodzinach, parach i wszystkich, dla których liczy się jakość, wygoda i wysoki standard.
Większość mieszkań ma metraż od 40 do 45 m², co czyni je idealnym wyborem dla tych, którzy cenią balans między wygodą a kameralnością. Utrzymanie tej równowagi sprawia, że osiedle zapewnia prywatność i spokój, będąc przytulnym miejscem do życia i wypoczynku.
Bezpieczeństwo i prywatność
Inwestycja została zaprojektowana z myślą o komforcie i spokoju mieszkańców. Teren osiedla zostanie ogrodzony, co zapewnia prywatność, a brama wjazdowa otwierana telefonem – nowoczesną i wygodną kontrolę dostępu. Dla osób ceniących tradycyjne rozwiązania oferujemy możliwość zamówienia pilota.
Ogród spokoju
Mieszkania na parterze oferują prywatne ogródki, subtelnie oddzielone panelami z siatki oraz żywopłotem, tworząc idealną przestrzeń do wypoczynku wśród zieleni. Tarasy, starannie wykończone kostką betonową lub płytą chodnikową, to doskonałe miejsce na poranną kawę lub wieczorny relaks.
Funkcjonalność w detalach
Na osiedlu zadbano o każdy szczegół. Winda zapewnia wygodny dostęp na wszystkie kondygnacje, a oświetlenie balkonów i tarasów podkreśla nowoczesny charakter inwestycji i zapewnia komfort po zmroku. W standardzie każdego mieszkania znajdują się zewnętrzne rolety elektryczne, które zwiększają wygodę oraz bezpieczeństwo.
Komfortowa codzienność
Stojaki na rowery przy wejściu oraz zadaszona wiata rowerowa czynią osiedle przyjaznym dla aktywnych mieszkańców. Zadbano również o infrastrukturę – powstanie chodnik łączący ul. Świętej Kingi z ul. Dobromiły, który ułatwi codzienne przemieszczanie się.
Harmony Antoninek to więcej niż mieszkania – to przemyślana przestrzeń życiowa, która oferuje wytchnienie od miejskiego zgiełku, bez konieczności rezygnacji z jego udogodnień. Bliskość natury, funkcjonalność i nowoczesna architektura sprawiają, że jest to idealne miejsce dla tych, którzy pragną żyć w harmonii – ze sobą, z miastem i z przyrodą.
Twoje miejsce do życia.
Mieszkanie znajduje się w inwestycji Harmony Antoninek, w której znajduje się w sprzedaży jeszcze 16 podobnych nowych mieszkań.





