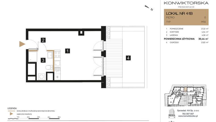
Lokal użytkowy na sprzedaż 1 pokój o powierzchni 30,44 m² numer 41B
Inwestycja:
Konwiktorska ResidenceDeweloper:
Mostostal S.A.
Inwestycja:
Konwiktorska ResidenceDeweloper:
Mostostal S.A.Warszawa, Śródmieście, Nowe Miasto, ul. Konwiktorska 4
Warszawa, Śródmieście, Nowe Miasto, ul. Konwiktorska 4
Termin oddania
2 kw. 2026
Ilość pokoi
1 pokój
Metraż
30,44 m²
Piętro
Parter
Powierzchnie dodatkowe
Ogródek
Wysokość pomieszczeń
od 260 do 280 cm wysokości
Ilość poziomów
1 poziom
Oznaczenie oferty
41B

Raport o deweloperze
Poznaj dewelopera bliżej! Pobierz raport, w którym znajdziesz kluczowe informacje o firmie, jej doświadczeniu, nagrodach oraz aktualnych i zrealizowanych inwestycjach.
Budynek i otoczenie
Miejsca postojowe | |
|---|---|
Standard wykończenia | standard deweloperski |
Realizacja inwestycji | oddanie do użytkowania w 2 kw. 2026 roku |
Udogodnienia | usługi w budynku, winda, inteligentny dom |
Przyroda | informacja u dewelopera |
Charakterystyka energetyczna nieruchomości | informacja u dewelopera |
Rezerwacja i finanse
Rodzaj własności | Odrębna własność z własnością gruntu |
|---|---|
Wysokość czynszu | informacja u dewelopera |
Warunki rezerwacji | Informacja u dewelopera |
Zabezpieczenie środków | Informacja u dewelopera |
Zdjęcia z budowy
Zobacz na jakim etapie budowy jest ta inwestycja
Lokalizacja inwestycji
Metro - Dworzec Gdański - 687 m
Przystanek Tramwajowy - 314 m
Przystanek Autobusowy - 63 m
Dojazd do centrum: pokaż
W pobliżu 1 km od tej inwestycji znajdują się:
127 kawiarni i restauracji, 54 sklepy, 62 obiekty sportowe, 37 placówek medycznych, 76 placówek edukacyjnych, 31 placów zabaw
Przeczytaj więcej o lokalizacji
Śródmieście to centralna i zarazem najbardziej reprezentacyjna dzielnica Warszawy. Jego powierzchnia wynosi 15,57 km2, a mieszka w nim 117 tysięcy osób. Znajdują się tu najważniejsze stołeczne zabytki, jak Zamek Królewski czy Pałac Kultury i Nauki. To także tutaj stoi Pałac Prezydencki i główne urzędy państwowe, w tym Sejm i Urząd Rady Ministrów. Obok nich wznoszą się biurowce, hotele, apartamentowce, a także najważniejsze instytucje oświatowe i kulturalne stolicy, wśród których znajduje się Teatr Wielki i Muzeum Narodowe. Na Śródmieściu znajduje się hala sportowo-widowiskowa Torwar i jedna z największych galerii handlowych w Europie – Arkadia. W dzielnicy można znaleźć 8 parków, w tym Park Łazienkowski. Śródmieście jest połączone ze wschodnią częścią miasta 4 mostami. Jest przy tym świetnie skomunikowane z resztą Warszawy – są tu trzy stacje metra i kursuje ok. 30 linii komunikacji miejskiej. Ponadto mieści się tu Dworzec Warszawa Centralna i stacja PKP Powiśle. Biegną tędy 4 drogi wojewódzkie.
Opis oferty
K4-A-LU-41B
Nowy lokal użytkowy na sprzedaż o powierzchni 30,44 m² znajduje się w nowo wybudowanej inwestycji deweloperskiej Konwiktorska Residence na Nowym Mieście, ul. Konwiktorska 4 (2.9 km od centrum Warszawy).
Inwestycja została zrealizowana przez Mostostal S.A.
Cała inwestycja składa się z 1 budynku, w którym łącznie znajdują się 2 nowy lokale użytkowe.
Budynek posiada od 5 do 7 kondygnacji naziemnych oraz 1 kondygnację podziemną.
Inwestycja Konwiktorska Residence jest w trakcie budowy z planowanym na 2 kw. 2026 roku terminem oddania do użytkowania.
Lokal użytkowy o oznaczeniu 41B znajduje się na parterze budynku, a wysokość pomieszczeń wynosi od 260 do 280 cm.
Dla przyszłych właścicieli Mostostal S.A. przewidział: miejsca postojowe podziemne.





