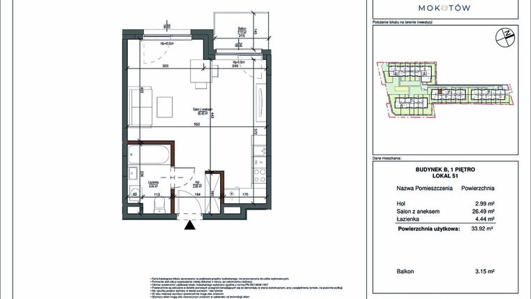
Mieszkanie na sprzedaż 1 pokój o powierzchni 33,92 m² numer 51
Inwestycja:
Aura Mokotów IIDeweloper:
Mill-Yon Sp. z o.o.
Inwestycja:
Aura Mokotów IIDeweloper:
Mill-Yon Sp. z o.o.Warszawa, Mokotów, Siekierki, ul. Bluszczańska 5-17
Warszawa, Mokotów, Siekierki, ul. Bluszczańska 5-17
Termin oddania
Gotowe
Ilość pokoi
1 pokój
Metraż
33,92 m²
Piętro
1 piętro
Powierzchnie dodatkowe
Balkon
Kuchnia
otwarta kuchnia
Wysokość pomieszczeń
od 260 do 280 cm wysokości
Ilość poziomów
1 poziom
Oznaczenie oferty
51

Raport o deweloperze
Poznaj dewelopera bliżej! Pobierz raport, w którym znajdziesz kluczowe informacje o firmie, jej doświadczeniu, nagrodach oraz aktualnych i zrealizowanych inwestycjach.
Budynek i otoczenie
Miejsca postojowe | |
|---|---|
Komórki lokatorskie | dostępne |
Standard wykończenia | standard deweloperski |
Realizacja inwestycji | rozpoczęcie budowy w 2 kw. 2024 roku, inwestycja została oddana do użytkowania w 1 kw. 2025 roku |
Udogodnienia | plac zabaw, monitoring, teren ogrodzony, winda |
Przyroda | w okolicy inwestycji znajduje się jezioro |
Charakterystyka energetyczna nieruchomości |
|
Rezerwacja i finanse
Rodzaj własności | Odrębna własność z własnością gruntu |
|---|---|
Wysokość czynszu | informacja u dewelopera |
Warunki rezerwacji | umowa rezerwacyjna |
Zabezpieczenie środków | Otwarty mieszkaniowy rachunek powierniczy |
Zdjęcia z budowy
Zobacz na jakim etapie budowy jest ta inwestycja
Lokalizacja inwestycji
Przystanek Tramwajowy - 1531 m
Przystanek Autobusowy - 418 m
Dojazd do centrum: pokaż
W pobliżu 1 km od tej inwestycji znajdują się:
20 kawiarni i restauracji, 28 sklepów, 12 obiektów sportowych, 4 placówki medyczne, 17 placówek edukacyjnych, 31 placów zabaw
Przeczytaj więcej o lokalizacji
Idealne mieszkanie – blisko Centrum Warszawy Mokotów w okolicach ulicy Bluszczańskiej zmienił się nie do poznania. Nowoczesna infrastruktura miejska gwarantuje doskonałą komunikację z pozostałymi częściami miasta. Bliskie sąsiedztwo zapewnia duży wybór usług, a także dostęp do przedszkoli i szkół. Zbudowana właśnie Aleja Polski Walczącej umożliwia świetny dojazd do ulic Czerniakowskiej i Gagarina oraz Trasy Siekierkowskiej, a nowe przystanki autobusowe ułatwiają dojazd komunikacją miejską. Wkrótce Na środkowym pasie alei zrealizowana zostanie linia tramwajowa. ul. Bluszczańska – w zielonej części Mokotowa Tuż obok rozciągają się nadwiślańskie tereny zielone. To jedno z niewielu miejsc Warszawy łączące bliskość centrum i natury. Niedzielna przejażdżka rowerem to czysta przyjemność, zwłaszcza że do Łazienek Królewskich jest stąd 10 minut. W 15 minut znajdziemy się na nowym bulwarze naprzeciw Stadionu Narodowego.
Na położonym w lewobrzeżnej części stolicy Mokotowie mieszka ok. 219 tys. osób, co sprawia, że jest to najludniejsza spośród warszawskich dzielnic. Mimo dużej liczby mieszkańców, obszar o powierzchni ok. 35 km2 nie należy do zatłoczonych, bowiem zabudowa jest zróżnicowana. Mokotów słynie z luksusowych apartamentowców, jak: Apartamenty przy Królikarni, Rezydencja Merliniego czy Osiedle Eco Park. Występują tutaj zarówno otoczone zielenią wille, jak i wielkie blokowiska na osiedlach: Stegny, Służew i Domaniewska. Dawny Służewiec Przemysłowy zagospodarowany jest na rzecz centrów handlowo-usługowych, jak Galeria Mokotów lub biurowo-biznesowych typu: GTC, TOP 2000, Zepter, Curtis Plaza. Funkcję rekreacyjną pełnią liczne parki, skwery i zieleńce oraz rezerwat Jezioro Czerniakowskie. Niezwykle bogata jest oferta kulturalna: 18 teatrów, 10 muzeów, 5 kin oraz 15 galerii sztuki. W dzielnicy kursuje metro, a główne arterie to: most Siekierkowski, Wisłostrada, Al. Niepodległości i ul. Puławska.
Opis oferty
Nowe 1-pokojowe mieszkanie na sprzedaż o powierzchni 33,92 m² znajduje się w nowo budowanej inwestycji deweloperskiej Aura Mokotów II na Siekierkach, ul. Bluszczańska 5-17 (4.6 km od centrum Warszawy).
Inwestycja jest realizowana przez Mill-Yon Sp. z o.o.
Cała inwestycja składa się z 9 budynków, w których łącznie znajdują się 334 nowe mieszkania.
Na sprzedaż pozostaje 41 ofert o powierzchni od 33 do 127 m².
W budynkach są 3 kondygnacje naziemne oraz 1 kondygnacja podziemna.
Inwestycja Aura Mokotów II została wybudowana i oddana do użytkowania w 1 kw. 2025 roku.
Nowe mieszkanie o oznaczeniu 51 znajduje się na 1 piętrze i jest 1-poziomowe. Pomieszczenia mają od 260 do 280 centymetrów wysokości. W mieszkaniu znajduje się 1 pokój.
Dla przyszłych mieszkańców Aura Mokotów II deweloper przewidział miejsca postojowe podziemne.
Dzięki temu przyszli właściciele nie będą musieli poszukiwać wolnej przestrzeni parkingowej. Dodatkowo, miejsce postojowe w garażu podziemnym zabezpiecza przed niekorzystnymi warunkami atmosferycznymi.
Opis Inwestycji
Okazyjna cena
Pow. dodatkowe
AURA MOKOTÓW Miejsce dla Ciebie
Wyjątkowa lokalizacja
Doskonałe miejsce w nadwiślańskiej części Mokotowa, przy ulicy Bluszczańskiej na warszawskim Mokotowie, powstające z myślą o tych, którzy potrzebują spokoju w mieście.
Minimalizm i wygoda – to główne założenia tego nietuzinkowego projektu. Nowoczesny sznyt doskonale wpasowuje się w krajobraz Mokotowa, a jego piękno tkwi w prostocie oraz funkcjonalności. Duże okna, przestronne balkony, szklane balustrady, nadają inwestycji lekkości i elegancji.
Cała inwestycja będzie składać się z dwóch etapów
Aura Mokotów
Pięć trzykondygnacyjnych budynków, a w nich 186 apartamentów o powierzchniach od 24 do 116 m2. W ofercie znajdują się zarówno kawalerki, mieszkania dwu- i trzypokojowe, jak i 4-pokojowe apartamenty.
Wszystkie mieszkania posiadają przestronne balkony, a te na parterze ogródki o powierzchni nawet 150 m2. Na terenie osiedla znajduje się plac zabaw dla dzieci, który dla komfortu wszystkich mieszkańców, osłania pas zieleni.
Aura Mokotów II
Cztery budynki trzykondygnacyjne, w których zaprojektowano 148 mieszkań 1-4- pokojowych, o powierzchni 33 m2 do 127 m2. Wszystkie mieszkania wyposażone będą w balkony lub ogródki, a te na ostatnim piętrze w wyjątkowe tarasy.
Szklane balustrady, duże okna z dodatkowym obniżeniem, cegła klinkierowa w strefie balkonu w połączeniu z prostą formą architektoniczną, stanowi o elegancji tego projektu.
Mieszkanie znajduje się w inwestycji Aura Mokotów II, w której znajduje się w sprzedaży jeszcze 8 podobnych nowych mieszkań.
Mill-Yon Sp. z o.o.
Strona internetowa inwestycjiAdres biura sprzedaży:
ul. Bluszczańska 17 lok. 11, Warszawa - na terenie osiedla Aura Mokotów IGodziny otwarcia biura sprzedaży:
- Poniedziałek: 10:00 - 18:00
- Wtorek: 10:00 - 18:00
- Środa: 10:00 - 18:00
- Czwartek: 10:00 - 18:00
- Piątek: 10:00 - 18:00
- Sobota: 10:00 - 14:00
Artykuły powiązane:
:format(jpg)/articles/gallery/image/9455/dzielnice-luksusu-warszawa.jpg)
Dzielnice luksusu w Polsce
W 2025 roku luksusowe apartamenty w Polsce przestają być kojarzone wyłącznie z prestiżem dzielnic takich jak Powiśle w Warszawie czy Salwator w Krakowie. Inwestycji premium przybywa w nowych, szybko zyskujących na wartości lokalizacjach. Coraz więcej miast kreuje przyciągające wymagających nabywców enklawy, oferujące standard ultrapremium. Apartamenty za kilka milionów złotych nie są już tylko domeną stolicy. Dziś o luksusie decydują nie sam metraż i standard wykończenia, ale unikalny klimat dzielnicy. Widać wyraźny trend: ekskluzywne nieruchomości pojawiają się tam, gdzie jeszcze niedawno dominowała zabudowa średniego standardu.
06 sierpnia 2025
Marcin Moneta
:format(jpg)/articles/gallery/image/6970/widok-z-mieszkania_a51930.jpg)
Mieszkanie z widokiem
Góry, morze, jezioro a może park? Jaki widok z okna marzy się Wam najbardziej? Warto odpowiedzieć sobie na to pytanie szukając wymarzonego mieszkania. Bowiem to, co widzimy za szybą, wpływa na nasze samopoczucie i sposób postrzegania świata. Jakie widoki za oknem są najbardziej pożądane? Jak krajobraz wpływa na naszą psychikę? Sprawdź w naszym artykule.
16 maja 2023
Marlena Rzepniewska





