Dom na sprzedaż 4 pokoje o powierzchni 62,96 m² - numer A8.2575 000 zł9 133 zł/m2Estymowana rata kredytu: 2 908 zł
Estymowana rata kredytu: 2 908 zł
Inwestycja:
HEJ! BaniochaDeweloper:
JDM Deweloper Sp. z o.o.
Inwestycja:
HEJ! BaniochaDeweloper:
JDM Deweloper Sp. z o.o.piaseczyński, Baniocha, ul. Spokojna
piaseczyński, Baniocha, ul. Spokojna
:format(jpg)/properties/planimagepage/image/1183738/f830df.png)
:format(jpg)/offers/offer/None/main_image/hej-baniocha_261632.jpg)
1 zdjęcie
Termin oddania
1 kw. 2026
Ilość pokoi
4 pokoje
Metraż
62,96 m²
Piętro
1 piętro
Powierzchnie dodatkowe
Balkon
Kuchnia
otwarta kuchnia
Wysokość pomieszczeń
280 cm wysokości
Ilość kondygnacji
1 poziom
Oznaczenie oferty
A8.2

Raport o deweloperze
Poznaj dewelopera bliżej! Pobierz raport, w którym znajdziesz kluczowe informacje o firmie, jej doświadczeniu, nagrodach oraz aktualnych i zrealizowanych inwestycjach.
Budynek i otoczenie
Miejsca postojowe
- miejsca postojowe naziemne
Standard wykończenia
standard deweloperski
Konstrukcja budynku
cegła silikatowa
Ogrzewanie
gazowe, podłogowe
Realizacja inwestycji
Udogodnienia
Przyroda
Charakterystyka energetyczna nieruchomości
- Jednostkowa wielkość emisji CO2 (E CO2): ECO2= 0 t CO2/(m2 * rok)
- Wskaźnik rocznego zapotrzebowania na energię końcową (EK): EK= 0 kWh/(m2 * rok)
- Wskaźnik rocznego zapotrzebowania na nieodnawialną energię pierwotną (EP): EP= 0 kWh/(m2 * rok)
- Wskaźnik rocznego zapotrzebowania na energię użytkową (EU): EU= 0 kWh/(m2 * rok)
Rezerwacja i finanse
Rodzaj własności
Wysokość czynszu
Warunki rezerwacji
Zabezpieczenie środków
Zdjęcia z budowy
Zobacz na jakim etapie budowy jest ta inwestycja
Lokalizacja inwestycji
Przystanek Autobusowy - 309 m
Dojazd do centrum Warszawy: pokaż
W pobliżu 1 km od tej inwestycji znajdują się:
2 obiekty sportowe, 2 place zabaw
Przeczytaj więcej o lokalizacji
Baniocha to prężnie rozwijająca się miejscowość, usytuowana niedaleko Warszawy, pomiędzy Konstancinem-Jeziorną, Piasecznem a Górą Kalwarią, co sprawia, że jest atrakcyjnym miejscem dla osób poszukujących spokoju i bliskości natury przy zachowaniu dogodnego dostępu do miejskich udogodnień. Otoczona lasami i malowniczymi stawami, Baniocha oferuje mieszkańcom możliwość obcowania z przyrodą, jednocześnie zapewniając szybki dojazd do stolicy. 45 minut do Centrum Warszawy, 2 minuty do Centrum Handlowego Glinianka, 20 minut do Designer Outlet, 10 minut do Centrum Handlowego Stara Papiernia, 1 minuta Szkoła Podstawowa, Kościół, stadion piłkarski, 1 min przystanek autobusowy, 15 minut SKM w Piaseczni.
Powiat piaseczyński znajduje się w środkowej części województwa mazowieckiego i należy do najbogatszych oraz najintensywniej rozwijających się powiatów w Polsce. W jego obrębie znajdują się miasta: Piaseczno, Konstancin-Jeziorna, Góra Kalwaria, Tarczyn oraz 223 wsie. Obszar o powierzchni 621 km2 przecinają liczne rzeki, m.in. Wisła, Jeziorka, Czarna, Utrata, a w ich dolinach występują łąki i torfowiska. Znaczne połacie terenu zajmują lasy, np. Chojnowskie, zaś pejzaż urozmaicają stawy, zalewy i wydmy. Warunki naturalne sprzyjają turystce i rekreacji, toteż w powiecie znajdują się liczne obiekty i kluby sportowe, tereny do jazdy konnej, kąpielisko Zalesie Górne oraz dobrze rozwinięta baza noclegowa i gastronomiczna. Dominuje niska zabudowa mieszkaniowa i usługowo-handlowa, a do obiektów zabytkowych należą m.in. Zamek w Czersku, wille i dwory. Ważne arterie to trasa E77 oraz drogi krajowe: nr 79 i nr 50. Do stolicy kursuje stąd 18 linii autobusowych warszawskiej komunikacji miejskiej.
Opis oferty
Nowy 4-pokojowy dom bliźniak na sprzedaż o powierzchni 62,96 m² znajduje się w nowo budowanej inwestycji deweloperskiej HEJ! Baniocha w Baniosze, ul. Spokojna (10.1 km od Warszawy).
Inwestycja jest realizowana przez JDM Deweloper Sp. z o.o.
Cała inwestycja składa się z 26 nowych domów.
Inwestycja HEJ! Baniocha jest w trakcie budowy z planowanym na 1 kw. 2026 roku terminem oddania do użytkowania.
Nowy dom bliźniak o oznaczeniu A8.2 , składa się z 1 kondygnacji bez poddasza, nie posiada podpiwniczenia. Wysokość pomieszczeń wynosi 280 cm.
W domu bliźniaku numer A8.2 znajdują się się 4 pokoje.
Do domu przynależy balkon o powierzchni 3,72 m².
Dla przyszłych mieszkańców HEJ! Baniocha deweloper przewidział miejsca postojowe naziemne
Cena ofertowa domu wynosi 575 000 zł (9 133 zł/m²).
Opis Inwestycji
Pow. dodatkowe
Domy w otoczeniu stawów.
Hej Baniocha to osiedle, które sprawi, że zakochasz się w swoim nowym domu. Otoczone malowniczymi stawami, domy zostały stworzone z myślą o komforcie i niezależności – wszystko to w atrakcyjnej cenie.
Każdy szczegół w tej inwestycji został starannie dopracowany. Domy wyposażone są w klimatyzację, ogrzewanie podłogowe i urokliwy kominek.
• 176 lokali
• Metraże 55-79 m2
• Klimatyzacja, kominek i ogrzewanie podłogowe
• Miejsca postojowe w cenie lokalu
Przedstawiamy 7 typy lokali w Hej Baniocha.
Znajdź dom dla siebie i swojej rodziny.
XS+ ( 55m2)
XS ( 57m2)
S+ ( 60 m2)
S ( 65 m2 )
M+ ( 70 m2 )
M ( 75 m2)
L ( 79 m2 )
XS+
Największą zaletą domu typu XS+ jest otwarta strefa dzienna z wyjściem do własnego ogrodu, gdzie można cieszyć się spokojem w otoczeniu natury, z dala od miejskiego zgiełku. Na parterze znajduje się przestronny salon połączony z funkcjonalnym aneksem kuchennym z miejscem na duży stół, dwa przestronne pokoje oraz łazienka z wygodną wanną. Dom typu XS+ to doskonała opcja zarówno dla rodziny, jak i singla, dostępna w bardzo przystępnej cenie. Ta kompaktowa przestrzeń może wkrótce stać się Twoim wymarzonym miejscem do życia!
XS
Co wyróżnia lokal typu XS? Przede wszystkim jasna, otwarta strefa dzienna z wyjściem na duży balkon, gdzie można delektować się spokojem i naturą, z dala od miejskiego hałasu. Lokal, usytuowany na pierwszym piętrze, oferuje przestronny salon z nowoczesnym aneksem kuchennym, dwa przestronne pokoje oraz łazienkę z komfortową wanną. Lokal typu XS to idealna opcja zarówno dla rodziny, jak i singla, dostępna w bardzo przystępnej cenie. Ta kompaktowa przestrzeń może stać się Twoim wymarzonym miejscem do życia!
S+
Dom typu S+ oferuje wyjątkowe połączenie komfortu i przestrzeni. Na parterze znajdziesz kuchnię połączoną z salonem, tworzącą otwartą przestrzeń idealną do wspólnego spędzania czasu. Dwie sypialnie zapewniają wygodne miejsce do odpoczynku, a dodatkowy pokój można wykorzystać jako gabinet lub garderobę, w zależności od potrzeb. Funkcjonalna łazienka została zaprojektowana z myślą o komforcie użytkowania. Do lokalu przynależy również duży ogród, co czyni go idealnym wyborem dla osób ceniących wygodę i przestrzeń w domowym zaciszu.
S
Lokal typu S, usytuowany na piętrze, to idealne połączenie przestrzeni i funkcjonalności. Oferuje kuchnię połączoną z salonem, z którego prowadzi wyjście na balkon, będące naturalnym przedłużeniem strefy dziennej. W lokalu znajdują się dwie komfortowe sypialnie oraz dodatkowy pokój, który można przekształcić w gabinet lub garderobę, w zależności od potrzeb. Przestronna łazienka zapewnia codzienny komfort, a całość jest doskonałym wyborem dla tych, którzy poszukują przestrzeni do pracy i relaksu.
M+
Dom typu M+ został stworzony z myślą o rodzinie 4-5 osobowej. Mieszkanie, zlokalizowane na parterze, posiada bezpośrednie wyjście do prywatnego ogrodu, co jest doskonałym atutem. Parter obejmuje otwartą przestrzeń dzienną z salonem i kuchnią, w której zmieści się duży stół. W drugiej części domu znajdują się trzy sypialnie oraz ergonomiczna łazienka, wyposażona w wygodną wannę. W wiatrołapie przewidziano miejsce na pojemne szafy, co zapewnia dodatkową funkcjonalność. To wszystko gwarantuje komfort, którego potrzebujesz Ty i Twoja rodzina!
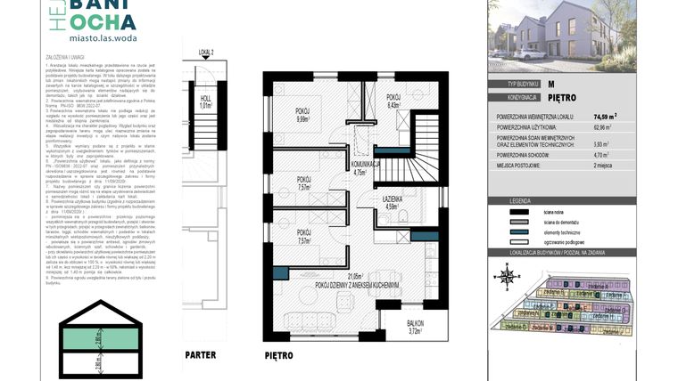
M
Dom typu M, choć kompaktowy, oferuje wyjątkową funkcjonalność. Mieszkanie zostało zaprojektowane na jednym poziomie, a do lokalu prowadzi wewnętrzna klatka schodowa, gdyż znajduje się ono na piętrze. Otwarta przestrzeń dzienna obejmuje przestronny salon z wyjściem na balkon oraz kuchnię. W drugiej części domu znajdują się trzy sypialnie oraz ergonomiczna łazienka, w której zmieści się wygodna wanna. W wiatrołapie przewidziano miejsce na pojemne szafy, co zwiększa komfort użytkowania. To przestrzeń stworzona z myślą o wygodzie Twojej rodziny!
L+
Dom typu L+ to doskonały wybór dla tych, którzy poszukują dużej przestrzeni. Lokal znajduje się na dwóch poziomach, co zapewnia dodatkową prywatność i funkcjonalność. Na parterze znajduje się przestronny salon z funkcjonalnym aneksem kuchennym, wiatrołap z miejscem na szafę oraz toaleta z pomieszczeniem gospodarczym. Na piętrze zlokalizowane są trzy sypialnie i funkcjonalna łazienka z wygodną wanną. Dodatkowym atutem jest duży ogród, idealny do relaksu. Wszystko zostało zaplanowane tak, abyś mógł cieszyć się wygodą i niezależnością w otoczeniu natury.
Dom znajduje się w inwestycji HEJ! Baniocha.
Kup ten dom na kredyt
Symulacja miesięcznej raty kredytowej
Wkład własny
Większość banków wymaga wkładu własnego na poziomie 20% ceny nieruchomości
%
zł
Okres kredytowania
Rata miesięczna jest zależna od długości okresu kredytowania
Kalkulator wylicza orientacyjną ratę Twojego kredytu przy założeniu, że średnie oprocentowanie kredytu wraz z WIBOR i marżą banku wynosi 6.5% (oprocentowanie stałe w okresie 5 lat).
Twoja miesięczna rata kredytu
2 908 zł
Kalkulacja raty kredytowej została oparta o estymowaną cenę nieruchomości (575 000 zł) na podstawie ostatnich danych od dewelopera i naszych danych analitycznych
Adres biura sprzedaży:
ul. Puławska 45/1, 05-500 PiasecznoGodziny otwarcia biura sprzedaży:
- Poniedziałek: 08:00 - 17:00
- Wtorek: 08:00 - 17:00
- Środa: 08:00 - 17:00
- Czwartek: 08:00 - 17:00
- Piątek: 08:00 - 17:00
sob.: 10:00 – 16:00 (po uprzednim umówieniu spotkania)





