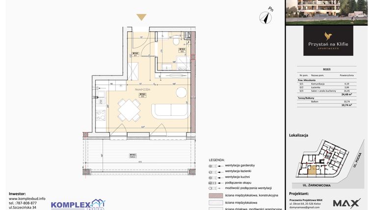
Mieszkanie na sprzedaż 1 pokój o powierzchni 24,42 m² numer M19
Inwestycja:
Przystań na KlifieDeweloper:
Komplexbud
Inwestycja:
Przystań na KlifieDeweloper:
Komplexbudpucki, Jastrzębia Góra, ul. Pucka
pucki, Jastrzębia Góra, ul. Pucka
Termin oddania
2 kw. 2026
Ilość pokoi
1 pokój
Metraż
24,42 m²
Piętro
2 piętro
Kuchnia
otwarta kuchnia
Wysokość pomieszczeń
250 cm wysokości
Ilość poziomów
1 poziom
Oznaczenie oferty
M19

Raport o deweloperze
Poznaj dewelopera bliżej! Pobierz raport, w którym znajdziesz kluczowe informacje o firmie, jej doświadczeniu, nagrodach oraz aktualnych i zrealizowanych inwestycjach.
Budynek i otoczenie
Miejsca postojowe | |
|---|---|
Komórki lokatorskie | dostępne |
Standard wykończenia | standard deweloperski |
Realizacja inwestycji | rozpoczęcie budowy w 4 kw. 2024 roku, planowane oddanie do użytkowania w 2 kw. 2026 roku |
Udogodnienia | usługi w budynku, winda, rowerownia, wózkarnia, miejsce do ładowania samochodów elektrycznych, rekuperacja, paczkomat, plac zabaw, monitoring, teren ogrodzony, basen |
Przyroda | w okolicy inwestycji znajduje się park, morze, rezerwat przyrody |
Charakterystyka energetyczna nieruchomości | informacja u dewelopera |
Rezerwacja i finanse
Rodzaj własności | Odrębna własność z własnością gruntu |
|---|---|
Wysokość czynszu | informacja u dewelopera |
Warunki rezerwacji | Informacja u dewelopera |
Zabezpieczenie środków | Informacja u dewelopera |
Zdjęcia z budowy
Zobacz na jakim etapie budowy jest ta inwestycja
Lokalizacja inwestycji
Przystanek Autobusowy - 64 m
Dojazd do centrum Władysławowa: pokaż
W pobliżu 1 km od tej inwestycji znajdują się:
11 kawiarni i restauracji, 4 sklepy, 7 obiektów sportowych, 1 placówka medyczna, 2 placówki edukacyjne, 1 plac zabaw
Przeczytaj więcej o lokalizacji
Jastrzębia Góra to popularny kurort położony w województwie pomorskim i najbardziej wysunięta na północ miejscowość. Zlokalizowana na Pobrzeżu Gdańskim, w północno-zachodnim krańcu Pobrzeża Kaszubskiego, od wschodu graniczy z sołectwem Rozewie, od południa z sołectwem Tupadły, od zachodu - przy samym wybrzeżu - z sołectwem Ostrowo. Wyróżnikiem Jastrzębiej Góry jest umiejscowienie na wysokim (32.8 m n.p.m.), klifowym brzegu Morza Bałtyckiego. Swoją nazwę z kolei Jastrzębia Góra zawdzięcza wzniesieniu, nad którym osiedlały się Jastrzębie. Pierwsza zabudowa mieszkalna pojawiła się w Jastrzębiej Górze w latach 20 XX wieku, w okresie międzywojnia miejscowość zyskała status kurortu turystycznego.
Opis oferty
Nowe 1-pokojowe mieszkanie na sprzedaż o powierzchni 24,42 m² znajduje się w nowo budowanej inwestycji deweloperskiej Przystań na Klifie w Jastrzębiej Górze, ul. Pucka (5.5 km od Władysławowa).
Inwestycja jest realizowana przez Komplexbud.
Cała inwestycja składa się z 1 budynku, w którym łącznie znajduje się 37 nowych mieszkań.
Na sprzedaż pozostaje 37 ofert o powierzchni od 22 do 73 m².
W budynku jest 5 kondygnacji naziemnych oraz 1 kondygnacja podziemna.
Inwestycja Przystań na Klifie jest w trakcie budowy z planowanym na 2 kw. 2026 roku terminem oddania do użytkowania.
Nowe mieszkanie o oznaczeniu M19 znajduje się na 2 piętrze i jest 1-poziomowe. Pomieszczenia mają 250 centymetrów wysokości. W mieszkaniu znajduje się 1 pokój.
Dla przyszłych mieszkańców Przystań na Klifie deweloper przewidział miejsca postojowe podziemne.
Dzięki temu przyszli właściciele nie będą musieli poszukiwać wolnej przestrzeni parkingowej. Dodatkowo, miejsce postojowe w garażu podziemnym zabezpiecza przed niekorzystnymi warunkami atmosferycznymi.
Opis Inwestycji
PRZYSTAŃ NA KLIFIE to kameralne, ekskluzywne apartamenty zlokalizowane w jednej z piękniejszych miejscowości o wyjątkowo korzystnym mikroklimacie, który zapewnia nie tylko dobre warunki do odpoczynku ale również do tego by podleczyć swój organizm, czy wpłynąć dobroczynnie na jego funkcjonowanie, położone niedaleko czystej, dużej piaszczystej plaży. Lokalizacja w ścisłym centrum Jastrzębiej Góry zapewnia łatwy dostęp do atrakcyjnego życia nadmorskiego. W kameralnym budynku znajdują się apartamenty o różnych układach i metrażach – każdy tu znajdzie coś dla siebie.
- podziemny garaż
- tarasy, ogrody, widoki na morze
- wiata grillowa
- chillout room
- basen na dachu
ATRAKCJE JASTRZĘBIEJ GÓRY
- GWIAZDA PÓŁNOCY
- LATARNIA MORSKA ROZEWIE
- JASTRZĘBSKI KLIF
- NADMORSKI PARK KRAJOBRAZOWY
- LICZNE ZABYTKI
- LISI JAR
- PROMENADA ŚWIATOWIDA
- LOTY WIDOKOWE
- KOŚCIÓŁ IGNACEGO LOYOLI
Mieszkanie znajduje się w inwestycji Przystań na Klifie, w której znajduje się w sprzedaży jeszcze 5 podobnych nowych mieszkań.





