Dom na sprzedaż 3 pokoje o powierzchni 168 m² numer Z
Inwestycja:
Dom w Cañada de la Leña - 38051820Deweloper:
Homiia
Inwestycja:
Dom w Cañada de la Leña - 38051820Deweloper:
HomiiaMurcja, Abanilla, C. Sta. Fe
Murcja, Abanilla, C. Sta. Fe
Termin oddania
Gotowe
Ilość pokoi
3 pokoje
Metraż
168 m²
Piętro
Parter
Powierzchnie dodatkowe
Taras
Kuchnia
otwarta kuchnia
Wysokość pomieszczeń
od 260 do 280 cm wysokości
Ilość kondygnacji
1 poziom
Oznaczenie oferty
Z
Odległość od lotniska
55 km
Odległość od morza
48 km
Budynek i otoczenie
Miejsca postojowe | |
|---|---|
Standard wykończenia | standard deweloperski podwyższony |
Realizacja inwestycji | rozpoczęcie budowy w 1 kw. 2025 roku, inwestycja została oddana do użytkowania w 3 kw. 2025 roku |
Udogodnienia | informacja u dewelopera |
Przyroda | w okolicy inwestycji znajduje się góry |
Charakterystyka energetyczna nieruchomości | informacja u dewelopera |
Rezerwacja i finanse
Rodzaj własności | Odrębna własność z własnością gruntu |
|---|---|
Wysokość czynszu | informacja u dewelopera |
Warunki rezerwacji | Informacja u dewelopera |
Zabezpieczenie środków | Otwarty mieszkaniowy rachunek powierniczy i gwarancję ubezpieczeniową |
Zdjęcia z budowy
Zobacz na jakim etapie budowy jest ta inwestycja
Lokalizacja inwestycji
Opis oferty
Nowy 3-pokojowy dom wolnostojący na sprzedaż o powierzchni 168 m² znajduje się w nowo budowanej inwestycji deweloperskiej Dom w Cañada de la Leña - 38051820 w Abanilla (51.4 km od centrum Murcji).
Sprzedaż prowadzi Homiia.
Cała inwestycja składa się z 1 nowych domów.
Inwestycja Dom w Cañada de la Leña - 38051820 została wybudowana i oddana do użytkowania w 3 kw. 2025 roku.
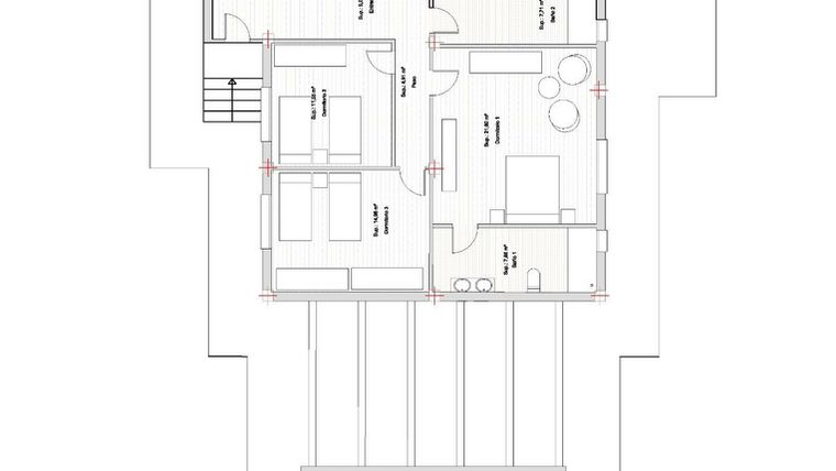
Nowy dom wolnostojący o oznaczeniu Z , składa się z 1 kondygnacji bez poddasza, nie posiada podpiwniczenia. Wysokość pomieszczeń wynosi od 260 do 280 cm.
W domu wolnostojącym numer Z znajdują się się 3 pokoje.
Do domu przynależy taras o powierzchni 17,73 m².
Dla przyszłych mieszkańców Dom w Cañada de la Leña - 38051820 deweloper przewidział miejsca postojowe naziemne
Opis Inwestycji
Kameralny budynek
Pow. dodatkowe
Odkryj tę oszałamiającą nową willę, położoną na dużej prywatnej działce o powierzchni 5000 m² w urokliwym miasteczku Abanilla, w prowincji Murcia. Ta nowoczesna, parterowa nieruchomość łączy w sobie wygodę współczesnego designu ze spokojem uprzywilejowanego naturalnego środowiska. Otoczona winnicami i górami, nieruchomość ta oferuje spektakularne widoki i niezrównaną prywatność, tworząc idealne miejsce na wypoczynek dla osób poszukujących zrelaksowanego stylu życia w kontakcie z naturą. Abanilla, położona między Sierras de Barinas, Espada i Quibas, słynie z naturalnego piękna i bogatej historii. Zaledwie 15 minut od Fortuny, słynącej z naturalnych kąpielisk termalnych i niecałą godzinę od plaż Costa Blanca, ta lokalizacja oferuje idealne połączenie spokoju i łatwego dostępu do wszystkich niezbędnych udogodnień.
Wnętrze willi zostało zaprojektowane tak, aby zmaksymalizować naturalne światło i zapewnić funkcjonalny układ łączący elegancję i wygodę. Połączenie wysokiej jakości materiałów i nowoczesnych wykończeń tworzy wyrafinowaną i przyjazną atmosferę: - Otwarty salon z jadalnią: Przestronny i otwarty plan, z dużymi oknami, które zapewniają naturalne światło i niezakłócony widok. Bezpośrednie połączenie z tarasem i basenem, tworząc idealną harmonię między wnętrzem a zewnętrzem. Wykończenia w neutralnych tonach i naturalnych materiałach, które zapewniają ciepło i wyrafinowanie. - W pełni wyposażona kuchnia amerykańska: Nowoczesna kuchnia z centralną wyspą i wysokiej jakości blatami z kamionki porcelanowej. Najnowocześniejsze zintegrowane urządzenia, w tym piekarnik, kuchenka mikrofalowa, płyta indukcyjna i okap. Szafki ścienne i dolne z systemami cichego zamykania i cichego otwierania dla wygody. Zoptymalizowana przestrzeń do przechowywania, aby zachować estetykę uporządkowaną i funkcjonalną. - Przestronne i wypełnione światłem sypialnie: 3 sypialnie z wbudowanymi szafami, białymi lakierowanymi drzwiami i wysokiej jakości wykończeniami. Sypialnia główna z garderobą i łazienką, oferująca prywatność i wygodę. Duże okna umożliwiające bezpośredni dostęp do ogrodu i basenu z sypialni. Elektryczne rolety i niezależny system klimatyzacji dla każdej sypialni - Nowoczesne łazienki, 2 kompletne łazienki i toaleta dla gości. Prysznice deszczowe z ekranami prysznicowymi
Dom znajduje się w inwestycji Dom w Cañada de la Leña - 38051820.
Homiia
Strona internetowa inwestycjiAdres biura sprzedaży:
Avenida Alfonso 10 el Sabio 1 2D, Alicante, SpainGodziny otwarcia biura sprzedaży:
- Poniedziałek: 10:00 - 18:00
- Wtorek: 10:00 - 18:00
- Środa: 10:00 - 18:00
- Czwartek: 10:00 - 18:00
- Piątek: 10:00 - 18:00





